Vuokrataan toimistotilat - Kaarina
Rauhalinnantie 31, Voivala, 20780 Kaarina #10819365
Toimisto/työtilaa Kaarinassa
Osoite
Rauhalinnantie 31, 20780 Kaarina
Tilatyyppi
Toimistotilaa
610 m2
Pysäköinti
Pihalla
Muuta
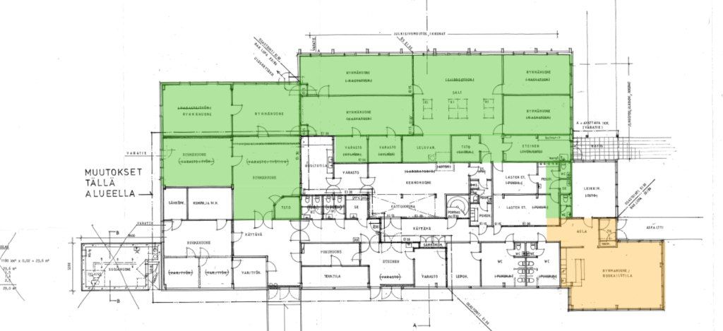
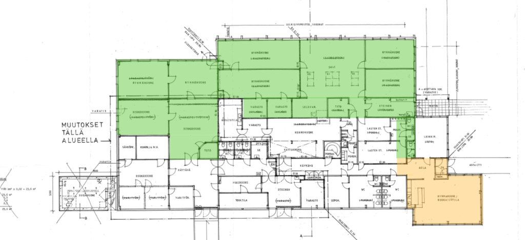
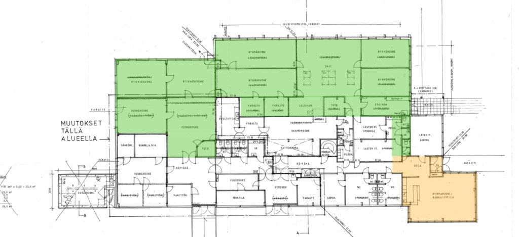
Vuokrattavana Kaarinassa osoitteessa Rauhalinnantie 31 noin 610 m² siistiä toimisto-, liike-, myymälä- tai toimitilaa (kaava KTY-1).
Tila on osa suurempaa kokonaisuutta ja vuokrattava alue on rajattu pohjakuvassa vihreällä. Nykyisessä käytössä oleva keittiö, joka on merkitty keltaisella, on toiveena pitää yhteiskäytössä, mutta tästä voidaan neuvotella tarpeen mukaan.
Pohjakuvasta poiketen osa väliseinistä saattaa olla eri paikoilla.
Tilassa on kaksi wc:tä ja suihku. Tilat ovat muunneltavissa ja rajattavissa käyttäjän tarpeiden mukaan, ja laajemmatkin muutostyöt ovat mahdollisia.
Siistit ja hyvin hoidetut tilat soveltuvat erinomaisesti toimisto- tai työtilaksi.
Pihalla on pysäköintimahdollisuus. Kohteessa on maalämpö, ja energiaremontti valmistui vuonna 2022. Suurempia remontteja ei ole suunnitteilla lähitulevaisuudessa.
Vuokrasopimuksen aloitusajankohta on sovittavissa nopeallakin aikataululla.
Vuokra alkaen 7,5 â¬/m2 +alv.
Tervetuloa tutustumaan, varaathan välittäjältä oman esittelyaikasi.
Voit kysyä meiltä myös muita sopivia vaihtoehtoja, kauttamme löydät juuri Teidän tarpeisiinne sopivat tilat. Palvelumme on tilanhakijalle veloitukseton!
Tila on osa suurempaa kokonaisuutta ja vuokrattava alue on rajattu pohjakuvassa vihreällä. Nykyisessä käytössä oleva keittiö, joka on merkitty keltaisella, on toiveena pitää yhteiskäytössä, mutta tästä voidaan neuvotella tarpeen mukaan.
Pohjakuvasta poiketen osa väliseinistä saattaa olla eri paikoilla.
Tilassa on kaksi wc:tä ja suihku. Tilat ovat muunneltavissa ja rajattavissa käyttäjän tarpeiden mukaan, ja laajemmatkin muutostyöt ovat mahdollisia.
Siistit ja hyvin hoidetut tilat soveltuvat erinomaisesti toimisto- tai työtilaksi.
Pihalla on pysäköintimahdollisuus. Kohteessa on maalämpö, ja energiaremontti valmistui vuonna 2022. Suurempia remontteja ei ole suunnitteilla lähitulevaisuudessa.
Vuokrasopimuksen aloitusajankohta on sovittavissa nopeallakin aikataululla.
Vuokra alkaen 7,5 â¬/m2 +alv.
Tervetuloa tutustumaan, varaathan välittäjältä oman esittelyaikasi.
Voit kysyä meiltä myös muita sopivia vaihtoehtoja, kauttamme löydät juuri Teidän tarpeisiinne sopivat tilat. Palvelumme on tilanhakijalle veloitukseton!
Vapautuu
Kysy
Kerros
katutaso
Ota yhteyttä
Tuloskiinteistöt Oy
Kauppiaskatu 11 C 23, 20100 Turku
Näytä puhelinnumero
(02) 274 3500
Ritva Nuotio
Commercial Real Estate Advisor LKV, KED
Näytä puhelinnumero
+358 50 5261 744
Karoliina Eklund
Leasing Support Specialist
Näytä puhelinnumero
+358 40 017 8999
Pyydä lisätietoa
