Vuokrataan toimistotilat, muut tilat - Helsinki
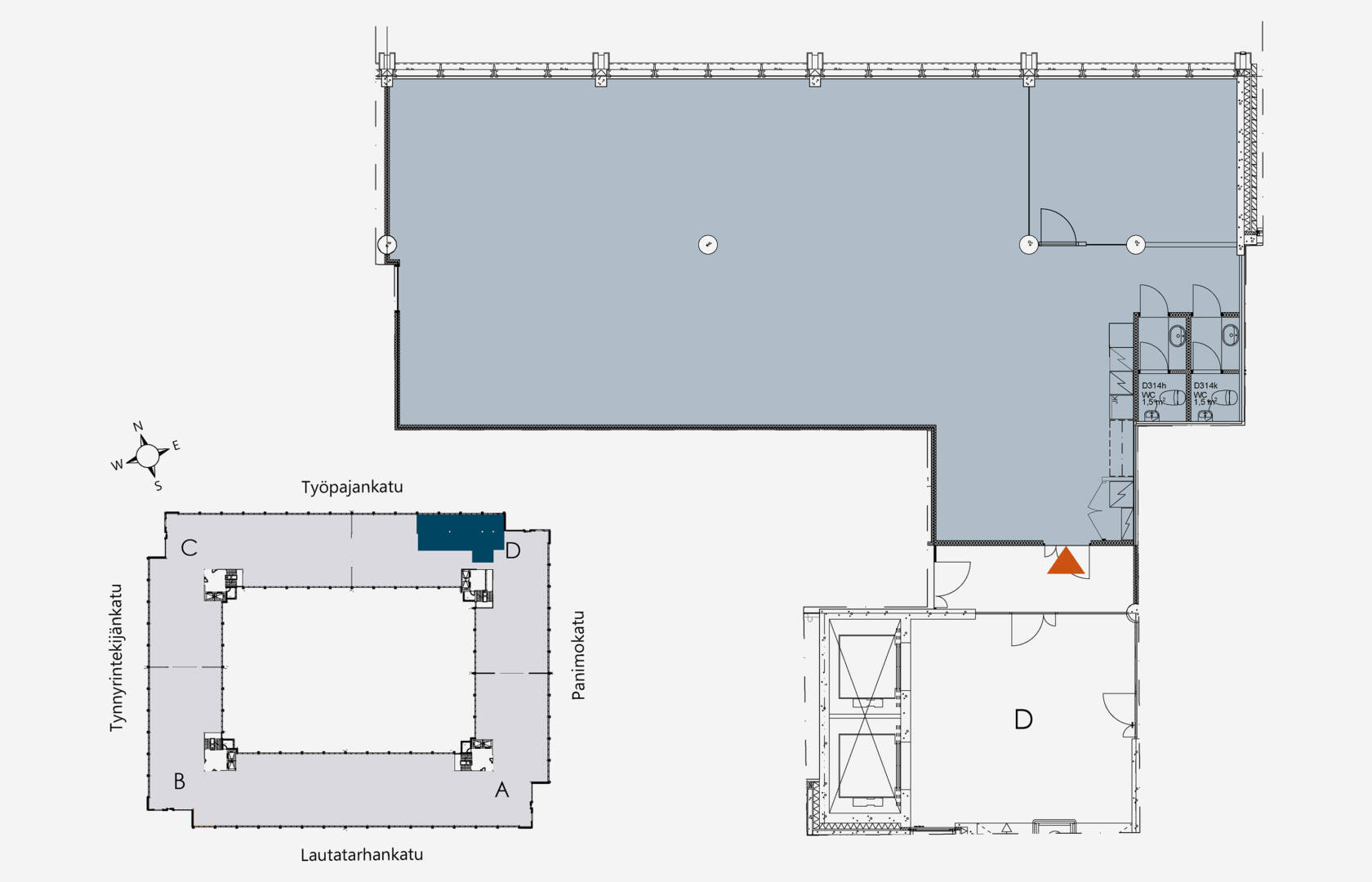
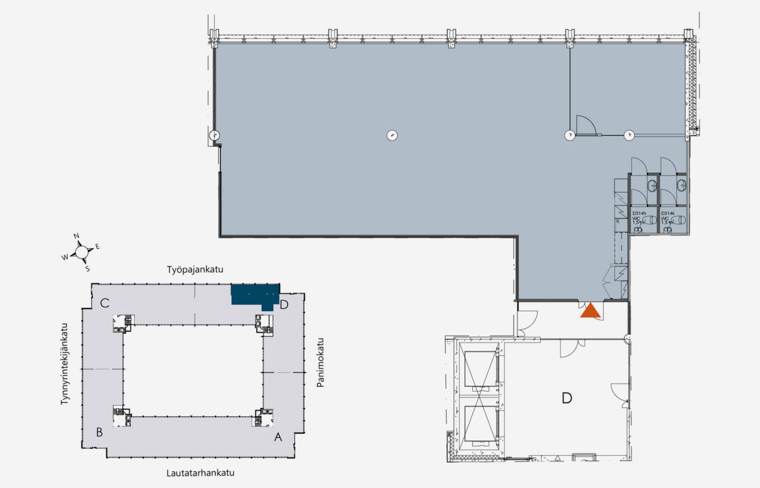
Trooli, Työpajankatu 9, Kalasatama, 00580 Helsinki #10819342
Korkeatasoinen 202 m² toimisto historiallisessa miljöössä Kalasatamassa.
Osoite
Työpajankatu 9, 00580 Helsinki
Tilatyyppi
Toimistotilaa
202 m2
Muuta tilaa
8,5 m2
Yhteensä
210,5 m2
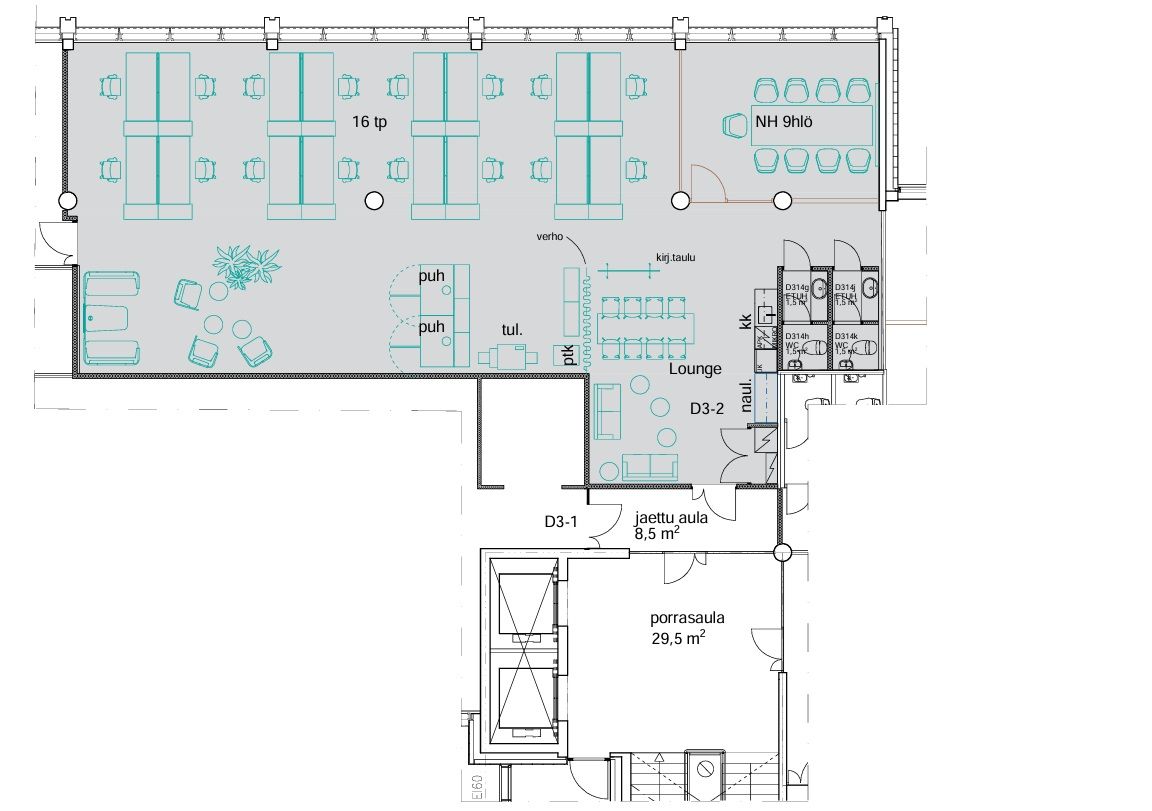
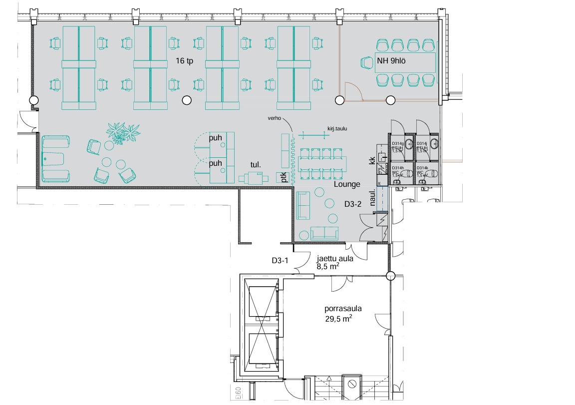
Pohjapiirros
Kiinteistö
Tämä hiljattain kokonaan remontoitu, neliöiltään tehokas toimistotila sijaitsee Troolin D-rapussa. Tämän toimiston valoisaan avotilaan mahtuu työskentelemään 10-27 henkeä, lisäksi tilassa on neuvotteluhuone 8 hengelle. Keittiö + loungetila sijaitsevat sisäänkäynnin yhteydessä.
Ikkunat avautuvat pohjoiseen kadulle.
Tilassa on datakaapelointi talojakamosta vuokratilaan; kuitukaapelointi (4 yksimuoto + 4monimuoto) ja tilan sisäinen kaapelointi CAT6- kaapelointi.
Historiallinen miljöö, joka on täynnä trendikkäitä kohtaamisalueita ja viihtyisiä lounaspaikkoja, kuten Teurastamon alueen ravintolat.
- Siistiä, uudenveroista tilaa
- Hyvät kulkuyhteydet, mm. Kalasataman metroasema lähellä
- Aulapalvelu
- Laadukas henkilöstöravintola
- Vuokrattavia neuvottelutiloja
- Auditorio
- Kuntosali
- Vuokrattavat saunatilat
- kauppakeskus Redi lähellä
Ikkunat avautuvat pohjoiseen kadulle.
Tilassa on datakaapelointi talojakamosta vuokratilaan; kuitukaapelointi (4 yksimuoto + 4monimuoto) ja tilan sisäinen kaapelointi CAT6- kaapelointi.
Historiallinen miljöö, joka on täynnä trendikkäitä kohtaamisalueita ja viihtyisiä lounaspaikkoja, kuten Teurastamon alueen ravintolat.
- Siistiä, uudenveroista tilaa
- Hyvät kulkuyhteydet, mm. Kalasataman metroasema lähellä
- Aulapalvelu
- Laadukas henkilöstöravintola
- Vuokrattavia neuvottelutiloja
- Auditorio
- Kuntosali
- Vuokrattavat saunatilat
- kauppakeskus Redi lähellä
Sijainti
Kalasatama
Pysäköinti
Autohalli ja pihapaikkoja
Palvelut
Alueella monipuoliset ravintola- ja kulttuuripalvelut
Kulkuyhteydet
Metroasema 500 m, Raitiovaunupysäkki 500 m, Bussipysäkki alle 100 m, Juna-asema 2,9 km, Lentoasema 16,6 km
Vapautuu
Heti
Rakennusvuosi
2002
Kerros
3
Energiatehokkuusluokka
Ei lain edellyttämää energiatodistusta
Näkyvällä paikalla
Hissi
Ota yhteyttä
ScanReal Oy LKV
Opus Business Park
Hitsaajankatu 24
00810 Helsinki
info@scanreal.fi
Puh:
Näytä puhelinnumero
020 730 8830
Sopivat toimitilat yhdellä otolla!
Kartoitamme toimitilatarpeesi ja etsimme yrityksellesi parhaiten sopivat vapaat toimitilat. Koska vuokranantajat maksavat palvelumme, on tämä yrityksellesi veloituksetonta.
OTA YHTEYTTÄ - SOVI NÄYTTÖ!
Kaikki kohteemme eivät ole netissä, kerro tilatarpeesi niin kartoitamme vaihtoehdot.
Palvelumme on tilanhakijalle ilmainen
Pyydä lisätietoa
