Vuokrataan tuotantotilat, varastotilat - Helsinki
Mekaanikonkatu 19, Herttoniemi, 00880 Helsinki #10819286
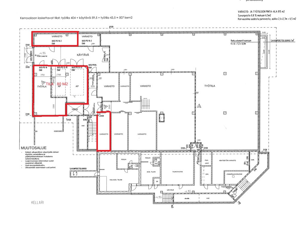
Vuokrataan Herttoniemessä siistiä kellaritilaa n. 80 m2 varastoksi tai pientuotantoon. Ks. pohjakuva.
Erinomaiset liikenneyhteydet julkisilla.
Yhteystiedot: p. 045 261 6555/Mika tai 020 7290 710
Lisää kohteita: www.premises.fi
Kohteella ei ole lain edellyttämää energiatodistusta.Kerros: kellari
Osoite
Mekaanikonkatu 19, 00880 Helsinki
Tilatyyppi
Tuotantotilaa
80 m2
Varastotilaa
80 m2
Yhteensä
80 m2
Kulkuyhteydet
Bussit ja Metro
Ota yhteyttä
CRE PREMISES
Puh. Näytä puhelinnumero 020 7290 710
Vantaankoskentie 14
01670 VANTAA
Pyydä lisätietoa
