Vuokrataan toimistotilat - Jyväskylä
Vapaudenkatu 57, Keskusta, 40100 Jyväskylä #10819258
Vuokrataan toimistotilaa Jyväskylän keskustasta
Osoite
Vapaudenkatu 57, 40100 Jyväskylä
Tilatyyppi
Toimistotilaa
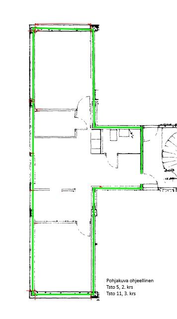
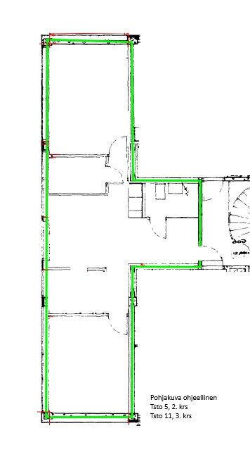
66 m2
Muuta
Vuokrataan siisti läpitalon valoisa toimistotila Vapaudenkadulta. Oma keittiö ja wc/kph, hyvät säilytystilat. Sijainti 2. kerroksessa, hissillinen talo. Vieressä toimii mm. Omenahotelli. Hyvät julkiset liikenneyhteydet ja kauppakeskus Sokkarin P-talo vieressä. Vapautuu sopimuksen mukaan. Soita ja sovi esittelyaika!
Vapautuu
Kysy
Kerros
2
Ota yhteyttä
Infonia Oy
Kauppakatu 18 A, 40100 Jyväskylä
Näytä puhelinnumero
+358503523143
Katja Shemeikka
Pyydä lisätietoa
