Vuokrataan toimistotilat - Helsinki
Työpajankatu 9, Kalasatama, 00580 Helsinki #10819049
Rakennuksen kuvaus:
Uudistuva Trooli on toimistokortteli palveluja ja yhteisöllisyyttä arvostavalle. Troolin sydän on sen korttelipiha, joka tullaan uudistamaan vihreäksi ja vehreäksi kohtaamispaikaksi. Uudistettu on jo yhteiskäyttöiset suihkut, kuntosali sekä pyöräparkki, jossa on pyörähuoltomahdollisuus. Kuntosali sisältyy kohteessa toimistovuokraan. Troolin palveluihin lukeutuu myös aulapalvelu, ravintola, catering ja mm. autopesupalvelu sekä hieroja. Kohteelta on vain lyhyt kävelymatka metroasemalle. LEED Gold -sertifioitu.
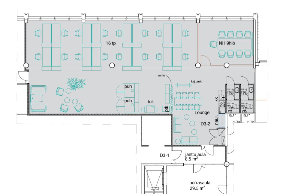
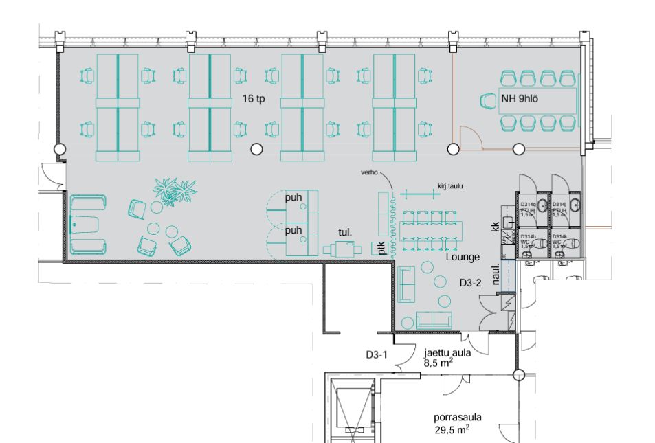
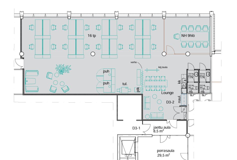
Tilan kuvaus:
Vapaata modernia toimistotilaa kolmannessa kerroksessa. Erittäin siisti ja tyylikäs toimistokiinteistö, jonka tilat taipuvat erityisesti tehokkaiksi avotoimistoiksi sekä myös huoneisiin.
Kerros: 3
