Vuokrataan toimistotilat, työtilat - Helsinki
Pohjoinen Rautatiekatu 19 B C 25, Etu-Töölö, 00100 Helsinki #10819046
Hieno toimistohuoneisto vuokrattavana Helsingin Kampissa!
Osoite
Pohjoinen Rautatiekatu 19 B C 25, 00100 Helsinki
Tilatyyppi
Toimistotilaa
132,2 m2
Työtilaa
132,2 m2
Yhteensä
132,2 m2
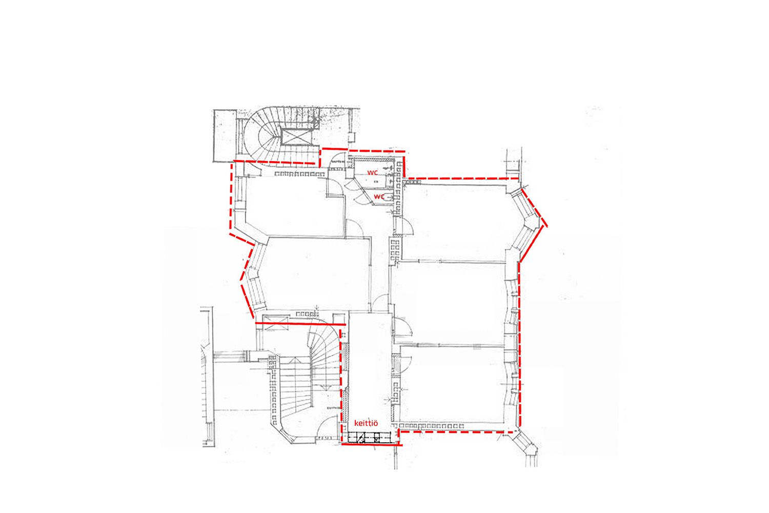
Pohjapiirros
Vuokra
2'999 €/kk, alv-vapaa
Vuokraan sisältyy lämpö
Muuta
Vuokrattavana valoisa ja hyvien kaupunkinäköalojen toimistohuoneisto aivan Kampin kupeesta.
Huoneiston on pinta-alaltaan 132,2 m² ja se käsittää 5 erikokoista toimistohuonetta, keittiön ja kaksi wc-tilaa, josta toisessa wc-tilassa lisäksi suihku. Tila sijaitsee 3. kerroksessa ja talossa on hissi. Huoneisto on kauttaaltaan pintaremontoitu ja korkeat ikkunat päästävät huoneistoon runsaasti luonnonvaloa, luoden inspiroivan työympäristön. Ikkunasta suora näkymä Tennispalatsin suuntaan.
Hyvällä sijainnilla, aivan metron ja Kampin bussiterminaalin tuntumassa sekä pyöräilyn pääväylä Baanan varrella.
Taloyhtiössä ei ole autopaikkoja vuokrattavana, mutta lähistöllä on kadunvarsipysäköintipaikkoja.
Tule viihtymään hienossa miljöössä Helsingin keskustaan!
Kohdetiedot
Sijainti
Katuosoite: Pohjoinen Rautatiekatu 19B C 25, 00100 Helsinki
Kaupunginosa: Kamppi/Etu-Töölö
Ympäristö: Asuntoja, toimistoja, Tennispalatsi, Kampin keskus, Etu-Töölö
Rakennus/huoneisto
Pinta-alat: Noin 132,2 m²
Huoneistoselitelmä: Toimistotila
Kunto, varusteet ja palvelut: Erittäin tasokas toimistohuoneisto, 5 huonetta, wc, wc + suihkutila ja keittiö. Helsingin keskustan kaikki palvelut lyhyen kävelymatkan päässä
Vapautuminen: Heti vapaa
Vuokrahinta
Kuukausivuokra: 2’999 €/kk, alv-vapaa
Vesimaksu: Kulutuksen mukaan
Sähkö: Vuokralainen tekee oman sähkösopimuksen
Lämmitys: Sisältyy vuokraan
Muut ehdot: Minimisopimuskausi 12 kk, vakuus 3 kk:n vuokraa vastaava summa, luottotietojen on oltava kunnossa
Huoneiston on pinta-alaltaan 132,2 m² ja se käsittää 5 erikokoista toimistohuonetta, keittiön ja kaksi wc-tilaa, josta toisessa wc-tilassa lisäksi suihku. Tila sijaitsee 3. kerroksessa ja talossa on hissi. Huoneisto on kauttaaltaan pintaremontoitu ja korkeat ikkunat päästävät huoneistoon runsaasti luonnonvaloa, luoden inspiroivan työympäristön. Ikkunasta suora näkymä Tennispalatsin suuntaan.
Hyvällä sijainnilla, aivan metron ja Kampin bussiterminaalin tuntumassa sekä pyöräilyn pääväylä Baanan varrella.
Taloyhtiössä ei ole autopaikkoja vuokrattavana, mutta lähistöllä on kadunvarsipysäköintipaikkoja.
Tule viihtymään hienossa miljöössä Helsingin keskustaan!
Kohdetiedot
Sijainti
Katuosoite: Pohjoinen Rautatiekatu 19B C 25, 00100 Helsinki
Kaupunginosa: Kamppi/Etu-Töölö
Ympäristö: Asuntoja, toimistoja, Tennispalatsi, Kampin keskus, Etu-Töölö
Rakennus/huoneisto
Pinta-alat: Noin 132,2 m²
Huoneistoselitelmä: Toimistotila
Kunto, varusteet ja palvelut: Erittäin tasokas toimistohuoneisto, 5 huonetta, wc, wc + suihkutila ja keittiö. Helsingin keskustan kaikki palvelut lyhyen kävelymatkan päässä
Vapautuminen: Heti vapaa
Vuokrahinta
Kuukausivuokra: 2’999 €/kk, alv-vapaa
Vesimaksu: Kulutuksen mukaan
Sähkö: Vuokralainen tekee oman sähkösopimuksen
Lämmitys: Sisältyy vuokraan
Muut ehdot: Minimisopimuskausi 12 kk, vakuus 3 kk:n vuokraa vastaava summa, luottotietojen on oltava kunnossa
Vapautuu
Heti
Kerros
3
Huoneiden lukumäärä
5
Näkyvällä paikalla
Ota yhteyttä
Tilat.fi
KTM, LKV Antti Soivio
Näytä puhelinnumero
0400 446 553
OTM, LKV Riikka Tuominen
Näytä puhelinnumero
0400 551 790
KTM, LKV Maria-Sofia Puhakka
Näytä puhelinnumero
0400-150330
Yrityksen virallinen nimi: LKV Toimitilaa.fi Oy. Toimitilojen välitykseen erikoistunut yritys.
http://www.tilat.fiPyydä lisätietoa
