Videoesittely
Vuokrataan toimistotilat - Tampere
Kanslerinrinne 1, Keskusta, 33100 Tampere #10819023
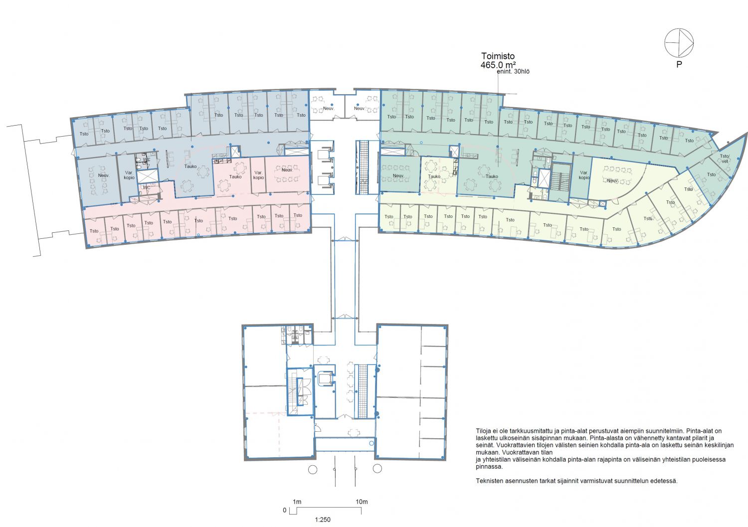
Vuokrattavana ainutlaatuinen toimitila Tampereen ydinkeskustassa, viidennessä kerroksessa upea noin 465 m²:n tila. Tämä yrityksellesi erinomainen tila sijaitsee aivan Nokia Areenan vieressä, loistavien kulkuyhteyksien varrella – raitiovaunupysäkille ja rautatieasemalle on vain noin 500 metrin kävelymatka. Keskustan monipuoliset palvelut, kuten ravintolat, kahvilat ja kaupat, ovat aivan lähellä.
Osoite
Kanslerinrinne 1, 33100 Tampere
Tilatyyppi
Toimistotilaa
465 m2
Vapautuu
Heti
Kerros
5
Ota yhteyttä
Pyydä lisätietoa
