Vuokrataan toimistotilat - Helsinki
Urho Kekkosen katu 3-7, Kamppi, 00100 Helsinki #10818998
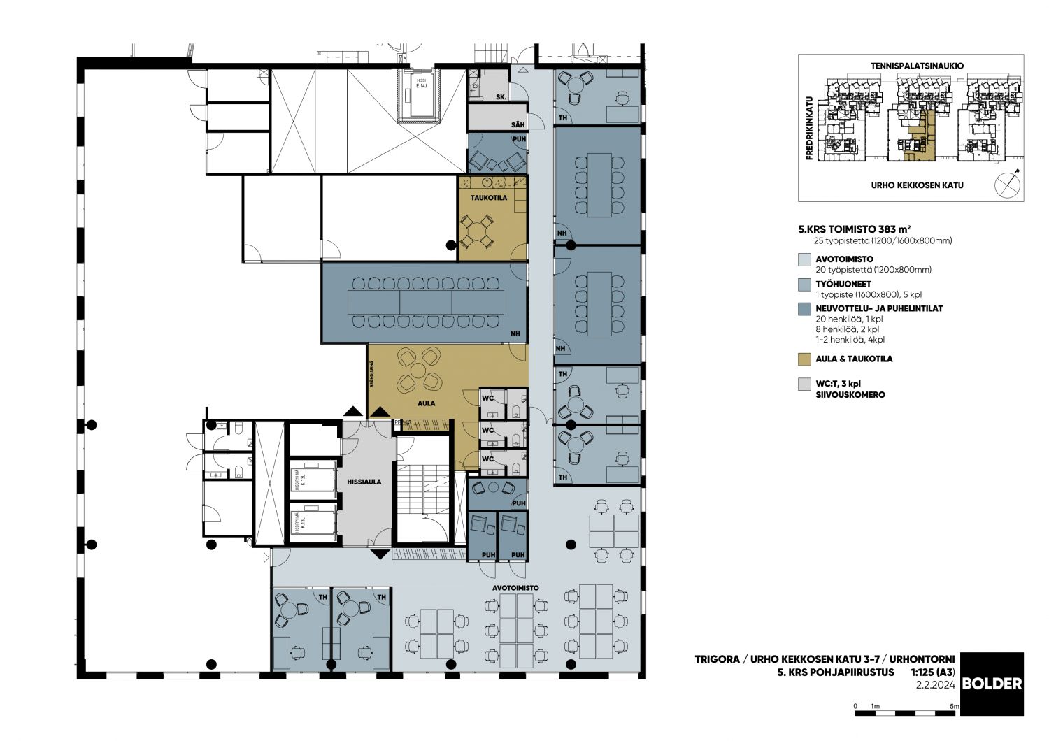
Laadukas n. 383 m2 toimisto paraatipaikalla aivan Kampin sydämessä. Tilassa on tällä hetkellä erikokoisia neuvotteluhuoneita, toimistohuoneita sekä avotoimistoa. Vapaana oleva kerros on kokonaisuudessaan 735m2, joka voidaan jakaa kahdelle toimijalle. Koko ja ehdotettu pohja on esimerkki, näitä voidaan muokata juuri teidän tarpeidenne mukaisesti. Tila sijaitsee Urhontornin 5. kerroksessa. Tila sijaitsee Urhontornin 5. kerroksessa.
Urhontorni on osa Kampin kauppakeskuksen yhteydessä sijaitsevaa toimistorakennuskokonaisuutta Trigoraa. Trigora on rakennettu 2005, toimistotilaa kolmessa tornissa on yhteensä 12 000 m² ja kokonaisuuden on suunnitellut Pekka Helin. Torneista on suora yhteys kauppakeskukseen, joten kattavat palvelut, ravintolamaailma, kaupat, julkiset kulkuvälineet ja parkkihallit välittömässä läheisyydessä.
Tervetuloa tutustumaan paikan päälle - ideoidaan yhdessä, kuinka tila palvelisi juuri teidän tarpeitanne!
