Vuokrataan toimistotilat - Helsinki
Urho Kekkosen katu 3-7, Kamppi, 00100 Helsinki #10818984
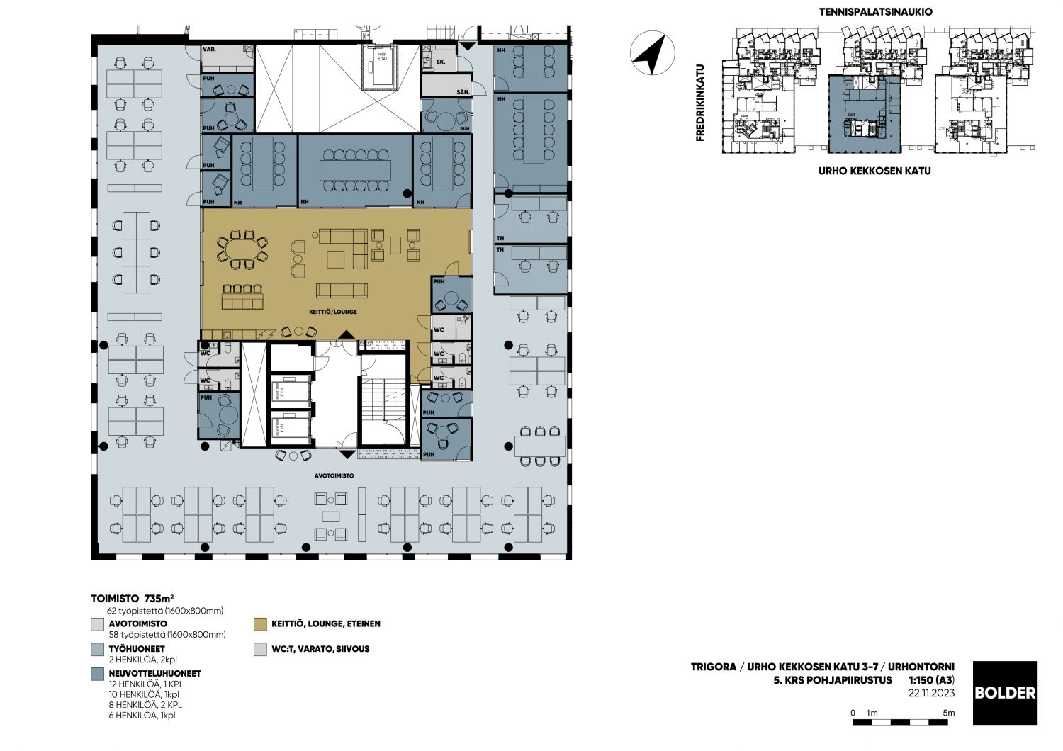
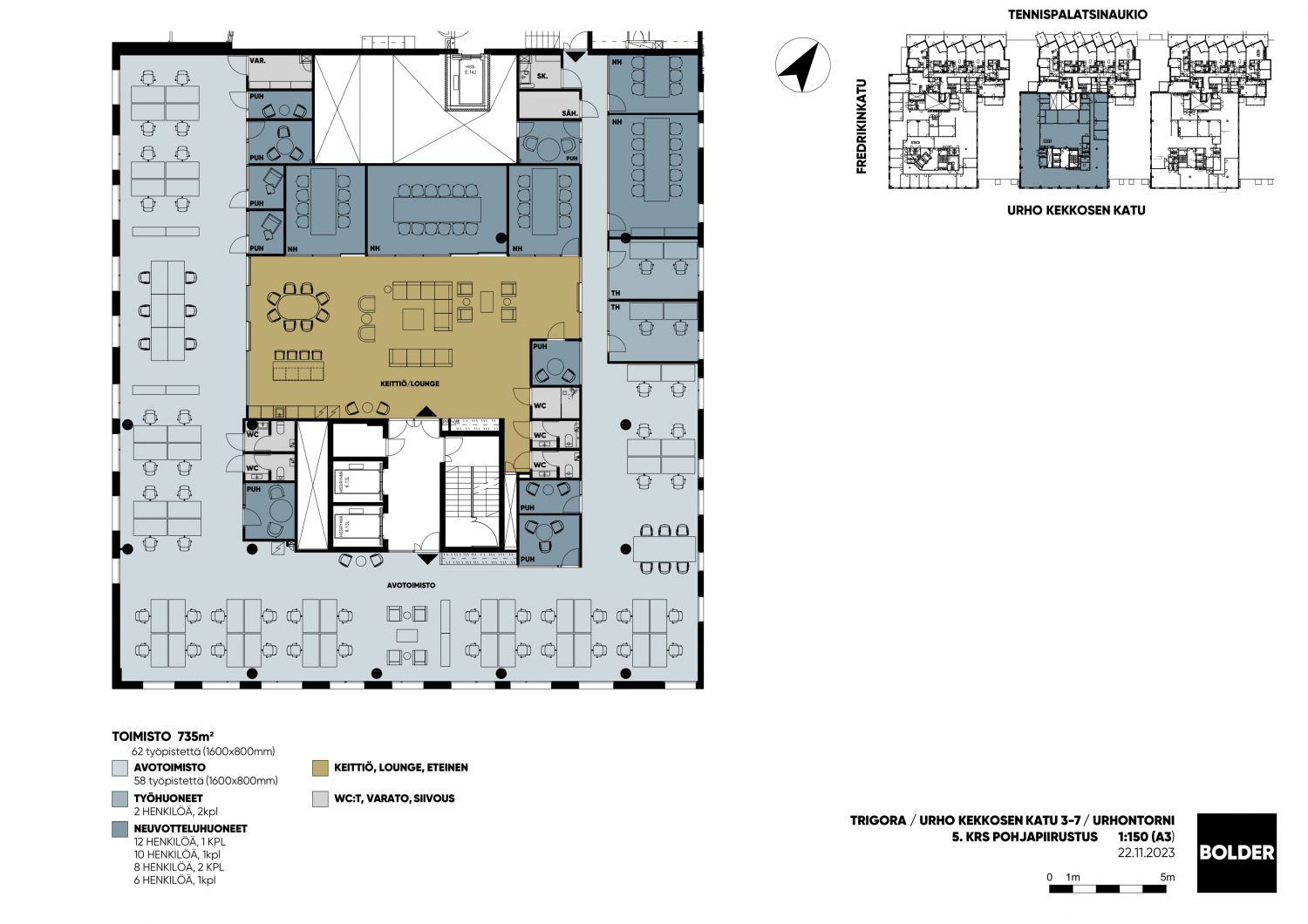
Laadukasta toimistotilaa paraatipaikalla aivan Kampin sydämessä. Hyväkuntoiset tilat ovat muuttovalmiit, mutta tarvittaessa voidaan tehdä muutoksia juuri teidän tarpeisiinne. Tilat sijaitsevat Urhontornissa ja koostuvat useammasta kerroksesta.
Arkkitehti SAFA Pekka Helinin suunnittelema Trigora on moderni toimistotalo erinomaisella sijainnilla Kampissa. Rakennuksen kolme tornia ovat yhteydessä Kampin kauppakeskukseen, joten lukuisat palvelut löytyvät saman katon alta. Trigora tarjoaa tasokkaita ja valoisia toimitiloja, jotka ovat joustavasti muunneltavissa tulevia käyttäjiä varten. Torniosan kerrokset on suunniteltu soveltumaan hyvin 1-3:lle toimijalle.
Trigoraan on vaivatonta saapua eri puolilta pääkaupunkiseutua, niin julkisilla kulkuneuvoilla kuin omalla autolla. Metro, ratikka ja usean eri bussilinjan pysäkit sijaitsevat rakennuksen välittömässä läheisyydessä ja Kampin pysäköintilaitos palvelee autolla kulkevia. Helsingin päärautatieasema on alle 10 minuutin kävelymatkan päässä, mikä tekee saapumisesta mutkatonta myös kauempaa tuleville. Pyörällä saapuville on käytössä kiinteistön oma pyöräparkki.
Lue lisää: www.trigora.fi
Tervetuloa tutustumaan paikan päälle - ideoidaan yhdessä, kuinka tila palvelisi juuri teidän tarpeitanne.
