Vuokrataan toimistotilat - Helsinki
Karvaamokuja 2 a-b, Pitäjänmäki, 00380 Helsinki #10818949
VUOKRATTAVA TILA
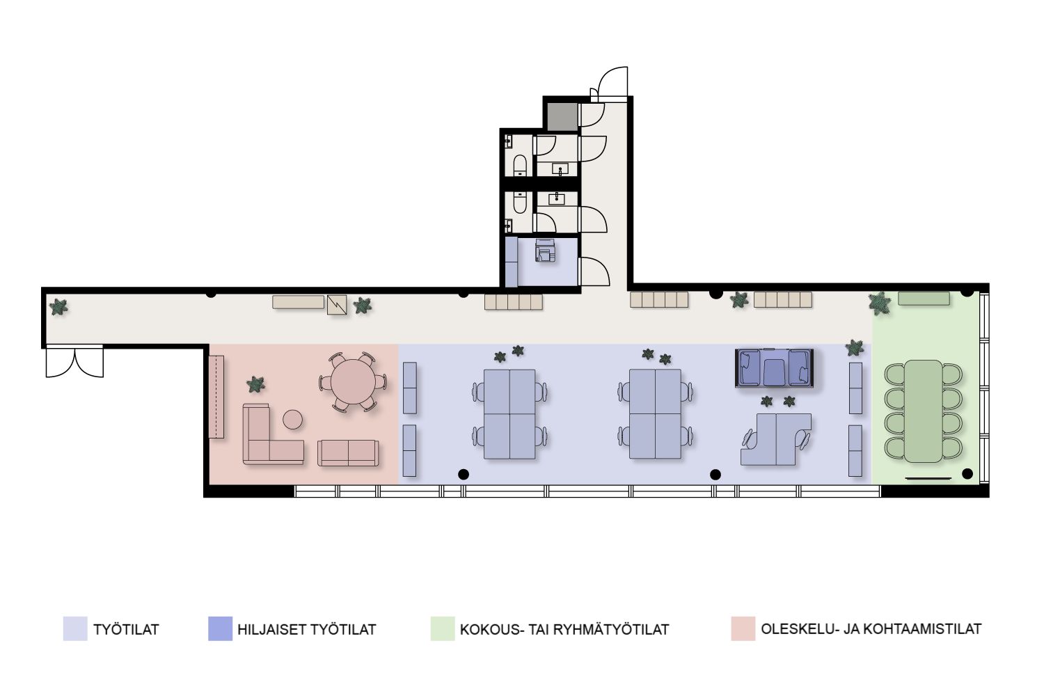
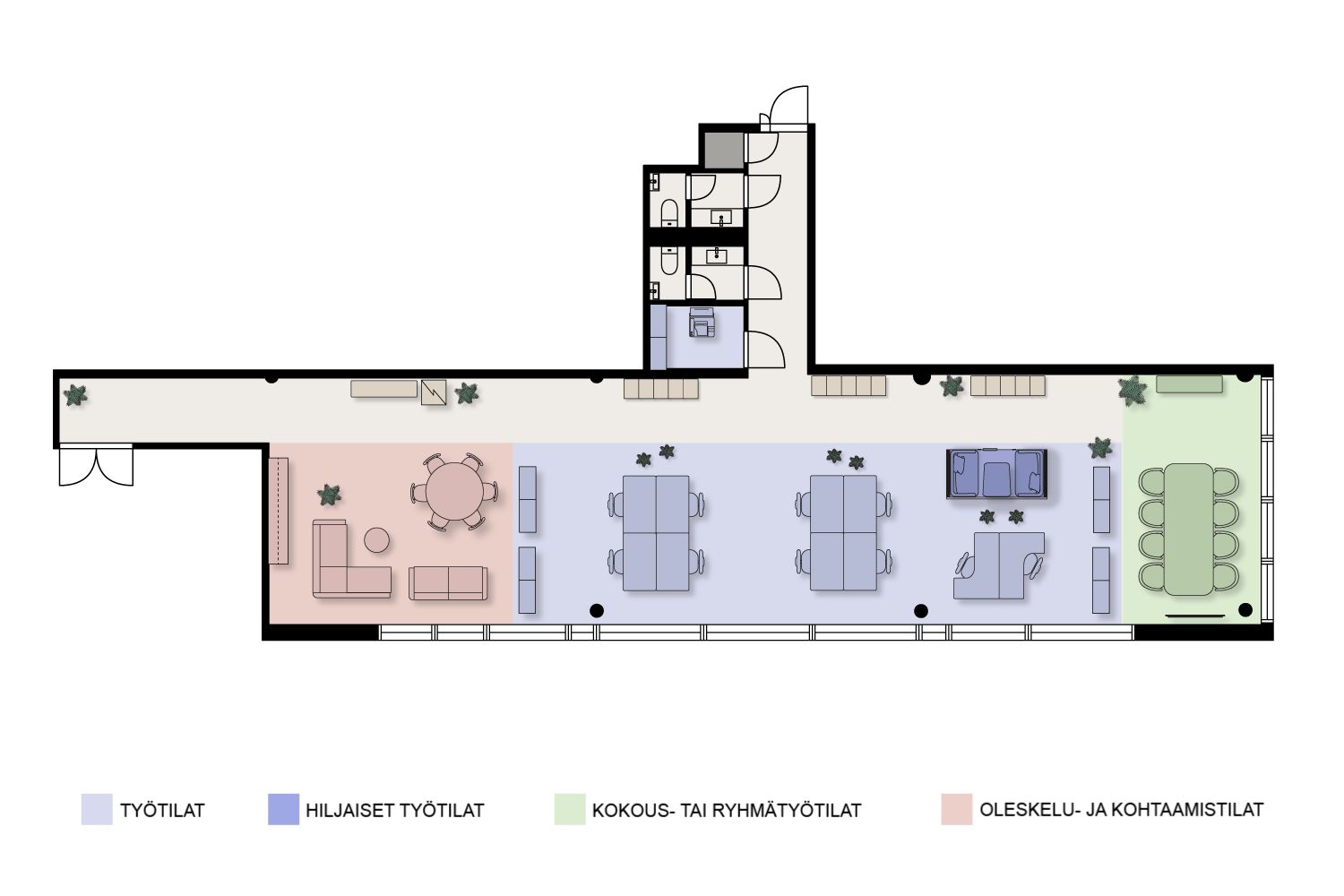
Tämä 188,5 m²:n moderni toimitila on täysin muokattavissa vastaamaan yrityksesi tarpeita. Tilassa yhdistyvät joustavuus ja tehokkuus, mikä mahdollistaa inspiroivan työympäristön luomisen.
SIJAINTI
The Front sijaitsee Pitäjänmäen parhaalla paikalla, vain 3 minuutin kävelymatkan päässä Haagan liikenneympyrästä. Lähimmälle bussipysäkille on 2 minuutin ja pikaratikkapysäkille 5 minuutin matka. Huopalahden juna-asemalle kävelee reilussa 10 minuutissa. Erinomaiset julkisen liikenteen yhteydet tekevät työmatkoista vaivattomia.
KIINTEISTÖ
The Front on täyden palvelun toimitilakonsepti, joka täyttää kaikki modernin työelämän tarpeet. Kiinteistössä on tarjolla muun muassa laadukas aulapalvelu, siivouspalvelut, lounasravintola Food Garden, oma leipomo-kahvila Frontyard Cafe sekä lahjatavaraliike Front Finds. Vapaasti varattavissa oleva neuvottelukeskus tarjoilutilauksineen ja monipuoliset hyvinvointipalvelut, kuten rentouttavat päähieronnat ja virkistävät aktiviteetit, tukevat työssä jaksamista.
The Front asettaa vastuullisuuden eturiviin kaikessa toiminnassa. Kiinteistöllä on LEED Platinum -ympäristösertifikaatti, joka on korkein mahdollinen tunnustus kestävän rakentamisen ja ympäristöystävällisten toimitilojen osalta. Sähköautojen latauspisteet ja erinomaiset julkisen liikenteen yhteydet tukevat kestävää liikkumista.
Tervetuloa tutustumaan The Frontiin ja löytämään yrityksellenne täydellinen toimitila!
Colliers Finland Oy
Jussi Järvinen
Head of Leasing, Office and Retail
Näytä puhelinnumero
+358400421464
