Vuokrataan toimistotilat - Helsinki
Urho Kekkosen katu 3-7, Kamppi, 00100 Helsinki #10818940
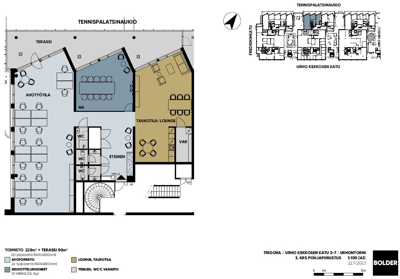
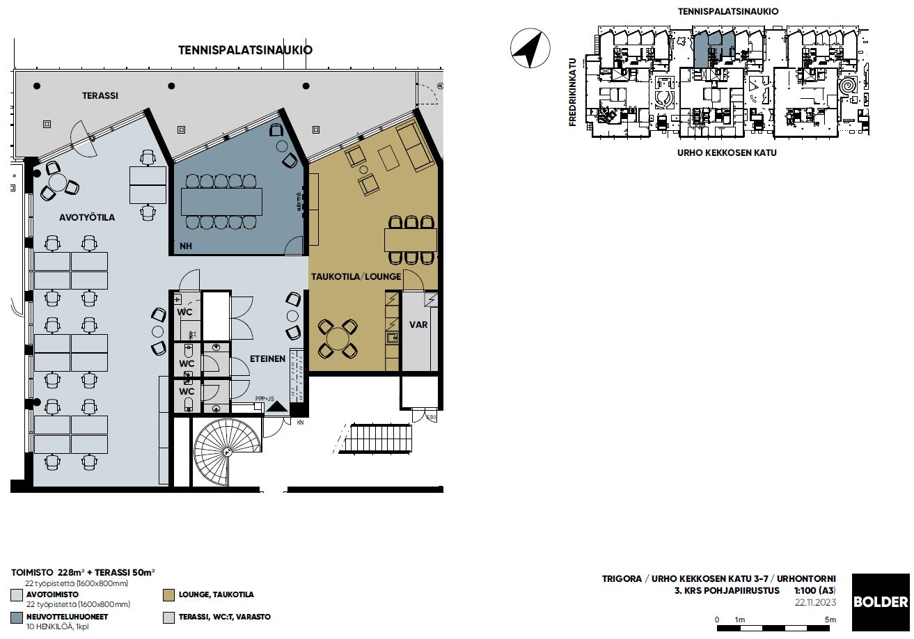
Laadukas 228 m2 toimisto paraatipaikalla aivan Kampin sydämessä. Tilaan saa hyvin sovitettua niin avotyötilaa, neuvotteluhuoneen kuin hyvänkokoisen lounge-alueen tulevan vuokralaisen toiveiden mukaisesti. Toimistotilan yhteydessä myös 50 m2 terassi, josta avautuu näkymät Tennispalatsinaukiolle. Tila sijaitsee Urhontornin 3. kerroksessa.
Kampintorni on osa Kampin kauppakeskuksen yhteydessä sijaitsevaa toimistorakennuskokonaisuutta Trigoraa. Trigora on rakennettu 2005, toimistotilaa kolmessa tornissa on yhteensä 12 000 m² ja kokonaisuuden on suunnitellut Pekka Helin. Torneista on suora yhteys kauppakeskukseen, joten kattavat palvelut, ravintolamaailma, kaupat, julkiset kulkuvälineet ja parkkihallit välittömässä läheisyydessä.
Tervetuloa tutustumaan paikan päälle - ideoidaan yhdessä, kuinka tila palvelisi juuri teidän tarpeitanne!
