Vuokrataan toimistotilat - Helsinki
Konepajankuja 1, Vallila, 00510 Helsinki #10818928
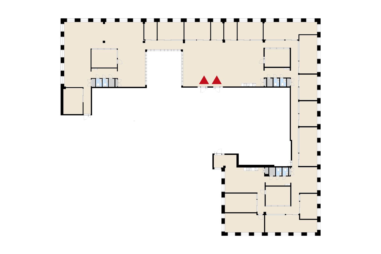
Vapaana kuudennen kerroksen moderni ja tilava toimisto, joka kattaa lähes koko kerroksen. Avarassa tilassa yhdistyvät avotila, erikokoiset työ- ja neuvotteluhuoneet sekä omat wc- ja keittiötilat, jotka tukevat sujuvaa arkea. Suuret ikkunat tuovat runsaasti luonnonvaloa ja avautuvat jokaiseen ilmansuuntaan, tarjoten inspiroivat näkymät kaupungin ylle.
Fredriksberg A sijaitsee Vallilan Konepajan alueella, arvostetussa ja vilkkaassa yrityskeskittymässä, jonne on helppo saapua erinomaisilla kulkuyhteyksillä. Keväällä 2018 valmistunut kiinteistö tarjoaa nykyaikaiset puitteet ja on suunniteltu BREEAM Excellent -ympäristöjärjestelmän periaatteiden mukaisesti. Materiaalivalinnoissa on painotettu kestävyyttä ja vastuullisuutta, mikä tekee rakennuksesta ekologisesti ja laadullisesti kestävän valinnan.
Fredriksbergillä on laaja palvelutarjonta vuokralaisille: aulapalvelu, vuokrattavat kokous- ja neuvottelutilat, co-workingtilat sekä ravintola- ja cateringpalvelut pitävät huolen, että työskentely on sujuvaa joka päivä. Autoilijoille kiinteistöstä löytyy lämmitetty pysäköintihalli ja työmatkapyöräilijöille suihkulliset sosiaalitilat ja polkupyöräsäilytys.
Katso lisätiedot: www.fredriksberga.fi
