Vuokrataan toimistotilat, muut tilat - Oulu
Nuottasaarentie 5, Limingantulli, 90400 Oulu #10818919
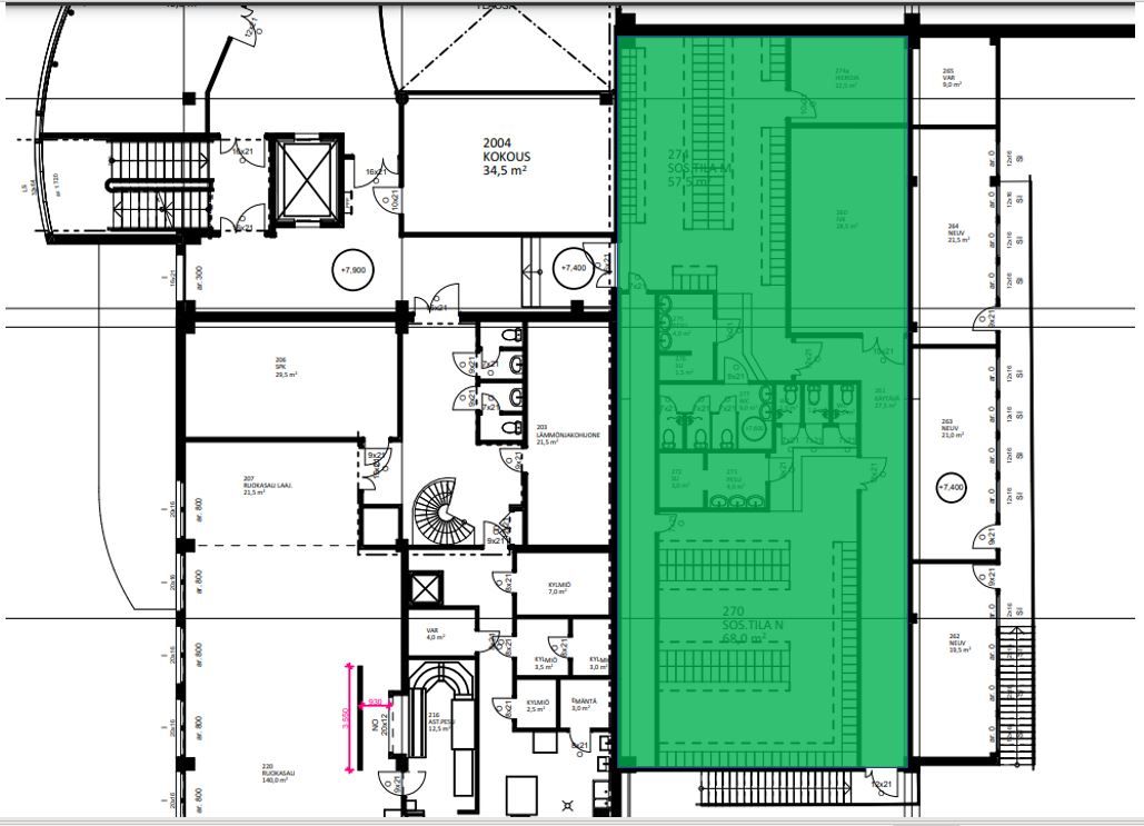
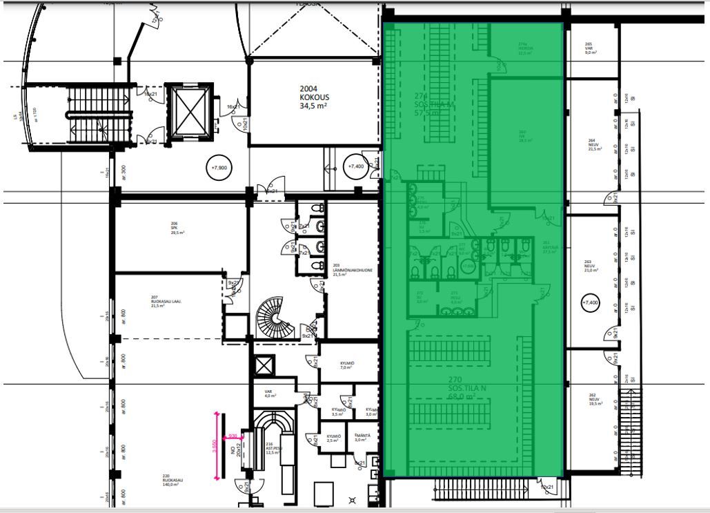
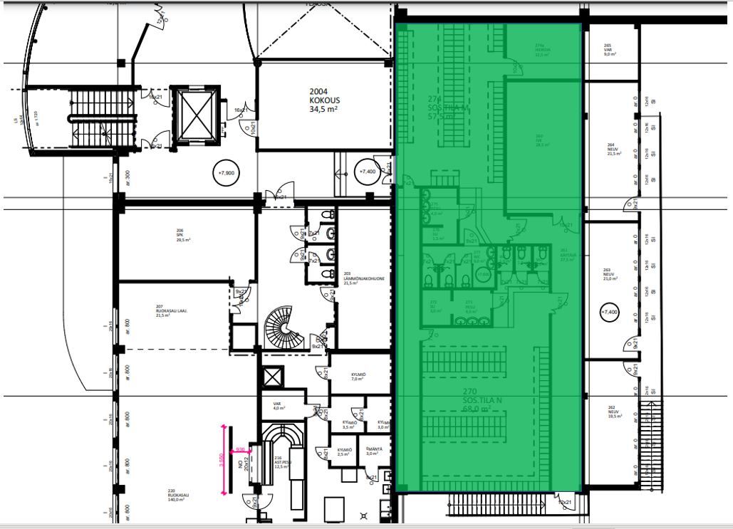
Vuokrattavana 2 krs sosiaalitilat Limingantullissa, Nuottasaarentie 5 Oulu kohteessa.
Osoite
Nuottasaarentie 5, 90400 Oulu
Tilatyyppi
Toimistotilaa
197 m2
Muuta tilaa
197 m2
Yhteensä
197 m2
Palvelut
Lounasravintola
Vapautuu
Kysy
Kerros
2
Ota yhteyttä
Pyydä lisätietoa
