Vuokrataan varastotilat - Oulu
Voudintie 2, Limingantulli, 90400 Oulu #10818866
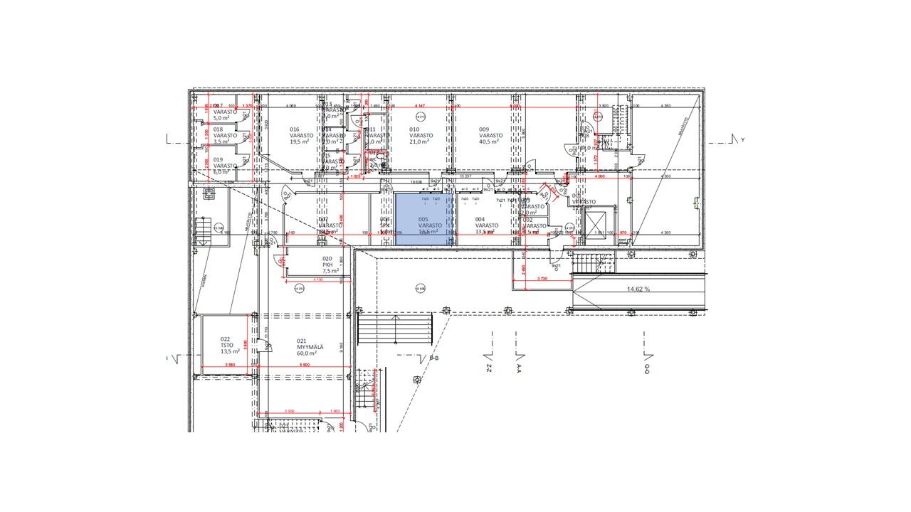
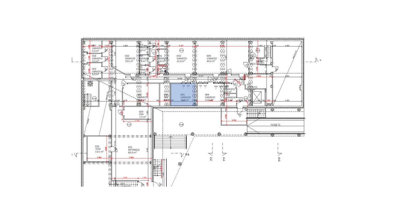
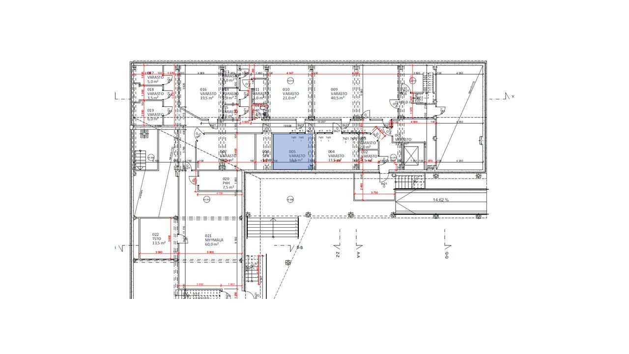
Vuokrataan monikäyttöistä pienvarastotilaa Oulun Limingantullista!
Pienvarastojen koot vaihtelevat 2,5 neliöstä 20 neliöön ja ne soveltuvat erinomaisesti esimerkiksi yrityksen tavaran varastointiin tai harrastevälineiden säilytykseen.
Kiinteistö jossa varastot sijaitsevat, on hyvien kulkuyhteyksien varrella. Varastotilojen vuokrat ovat kilpailukykyiset ja sopimuksen kesto on neuvoteltavissa.
Ota yhteyttä!
Osoite
Voudintie 2, 90400 Oulu
Tilatyyppi
Varastotilaa
14 m2
Vapautuu
Kysy
Ota yhteyttä
Pyydä lisätietoa
