Vuokrataan toimistotilat - Kuopio
Volttikatu 4, Savilahti, 70700 Kuopio #10818856
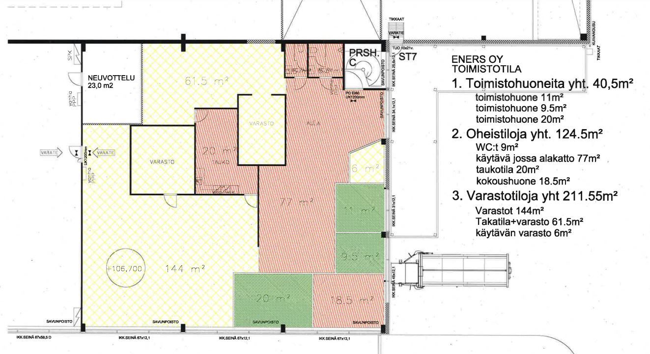
Kohteessa Volttikatu 4 Kuopio vapaana toimistotilaa yhteensä 40,5 neliötä. Tilat sijaitsevat toisessa kerroksessa.
Osoite
Volttikatu 4, 70700 Kuopio
Tilatyyppi
Toimistotilaa
40 m2
Pysäköinti
Autopaikka - Halli, Autopaikka - Piha
Vapautuu
Kysy
Kerros
2
Ota yhteyttä
Pyydä lisätietoa
