Vuokrataan liiketilat - Raahe
Ollinkalliontie 3, Koivuluoto, 92100 Raahe #10818806
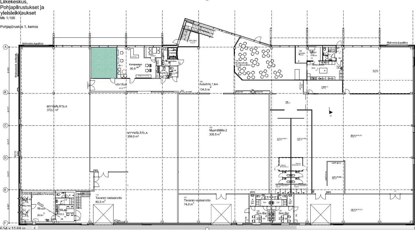
Vapautumassa siisti 1. kerroksen 30,7m2 liiketila.
Kauppakeskus Masto sijaitsee Oulu-Kokkola -valtatien ja Raahen ydinkeskustan välissä Koivuluodon kaupunginosassa. Maston lähinaapureina ovat muun muassa Raahen Ammattiopisto, Hesburger, Neste, Teboil sekä Raahen uimahalli, liikuntahalli ja jäähalli. Lähialue on luontainen asiointipaikka myös päivittäis- ja kulutustavarakaupan asiakasvirroille, ennen kaikkea viereisellä tontilla sijaitsevan Raahen K-Citymarketin ja kaupungin ainoan Alkon ansiosta.
Maston kaupallinen tarjonta on yhdistelmä erikoisliikkeitä ja hyvinvointipalveluja sekä ravintolaelämyksiä koko perheelle. Maston katutasossa toimii mm. Raahen suurin ja monipuolisin kuntokeskus Sisu, Musti ja Mirri sekä suosittu pizzeria Manu. Lisäksi yläkerrassa on kymmenkunta vuokrattavaa toimitilaa, jotka ovat pääosin toimistokäytössä. Maston pihassa on runsaasti paikoitustilaa asiakkaille.
Masto on paraatipaikalla Raahen vilkkaasti liikennöidyn sisääntuloväylän Kokkolantien varrella. Arkisin Kokkolantietä käyttää keskimäärin yli 5 000 ajoneuvoa. Vastaavasti Vaasa-Oulu -valtatie 8:n ajoneuvomäärä on arkisin n. 10 000, mitattuna Mastoon johtavan Raahen liittymän kohdalla.
Koivuluodon kaupunginosa sijaitsee valtatien ja Raahen keskustan puolivälissä. Masto on kummastakin vain hieman alle kilometrin etäisyydellä. Kaikki Raahen kaupungin keskeiset liikuntapaikat, -palvelut ja -hallit ovat Koivuluodossa.
