Vuokrataan toimistotilat - Helsinki
Ilmalan Asema, Ilmalantori 1, Pasila, 00240 Helsinki #10818553
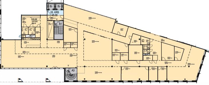
Vuonna 2017 valmistuneesta toimistorakennuksesta tyylikäs ja muuntojoustava 852 m² toimisto kolmannesta kerroksesta.
Osoite
Ilmalantori 1, 00240 Helsinki
Tilatyyppi
Toimistotilaa
852 m2
Pohjapiirros
Kiinteistö
Ilmalantori 1:ssä sijaitseva 852 m² toimistotila tarjoaa modernin ja tehokkaan työympäristön, joka mukautuu yrityksesi tarpeisiin. Kolmannessa kerroksessa sijaitsevassa tilassa yhdistyvät avotilat, erilliset työhuoneet ja neuvottelutilat, mikä mahdollistaa joustavan ja monipuolisen työskentelyn. Suuret ikkunat tuovat runsaasti luonnonvaloa, luoden miellyttävän ja inspiroivan ilmapiirin.
Kiinteistö on valmistunut vuonna 2017 ja edustaa kestävää rakentamista, mistä kertoo myös sen LEED Platinum -ympäristösertifikaatti. Energiatehokkuusluokka B takaa matalat käyttökustannukset, ja rakennuksessa on aurinkopaneelit sekä viherkatto, jotka tukevat vastuullista energiankäyttöä.
Työntekijöiden viihtyvyys on huomioitu monipuolisilla palveluilla. Rakennuksessa on aulapalvelu, ravintola ja kahvila, jotka helpottavat arkea. Lisäksi vuokrattavissa on edustustason BigRoom-tila ylimmässä kerroksessa. Aktiivisille työntekijöille on tarjolla suihku- ja pukeutumistilat sekä pyöräsäilytys.
Kiinteistössä on lämmin pysäköintihalli, jossa on sähköautojen latausmahdollisuus. Ilmalan erinomainen sijainti ja sujuvat julkiset yhteydet tekevät tästä toimitilasta houkuttelevan vaihtoehdon yritykselle, joka arvostaa modernia työympäristöä, kestävyyttä ja hyviä palveluita.
Kiinteistö on valmistunut vuonna 2017 ja edustaa kestävää rakentamista, mistä kertoo myös sen LEED Platinum -ympäristösertifikaatti. Energiatehokkuusluokka B takaa matalat käyttökustannukset, ja rakennuksessa on aurinkopaneelit sekä viherkatto, jotka tukevat vastuullista energiankäyttöä.
Työntekijöiden viihtyvyys on huomioitu monipuolisilla palveluilla. Rakennuksessa on aulapalvelu, ravintola ja kahvila, jotka helpottavat arkea. Lisäksi vuokrattavissa on edustustason BigRoom-tila ylimmässä kerroksessa. Aktiivisille työntekijöille on tarjolla suihku- ja pukeutumistilat sekä pyöräsäilytys.
Kiinteistössä on lämmin pysäköintihalli, jossa on sähköautojen latausmahdollisuus. Ilmalan erinomainen sijainti ja sujuvat julkiset yhteydet tekevät tästä toimitilasta houkuttelevan vaihtoehdon yritykselle, joka arvostaa modernia työympäristöä, kestävyyttä ja hyviä palveluita.
Vapautuu
Heti
Rakennusvuosi
2017
Kerros
3 / 9
Energiatehokkuusluokka
B
Näkyvällä paikalla
Hissi
Ota yhteyttä
ScanReal Oy LKV
Opus Business Park
Hitsaajankatu 24
00810 Helsinki
info@scanreal.fi
Puh:
Näytä puhelinnumero
020 730 8830
Sopivat toimitilat yhdellä otolla!
Kartoitamme toimitilatarpeesi ja etsimme yrityksellesi parhaiten sopivat vapaat toimitilat. Koska vuokranantajat maksavat palvelumme, on tämä yrityksellesi veloituksetonta.
OTA YHTEYTTÄ - SOVI NÄYTTÖ!
Kaikki kohteemme eivät ole netissä, kerro tilatarpeesi niin kartoitamme vaihtoehdot.
Palvelumme on tilanhakijalle ilmainen
Pyydä lisätietoa
