Vuokrataan toimistotilat - Espoo
Metsänpojankuja 1, Pohjois-Tapiola, 02130 Espoo #10818451
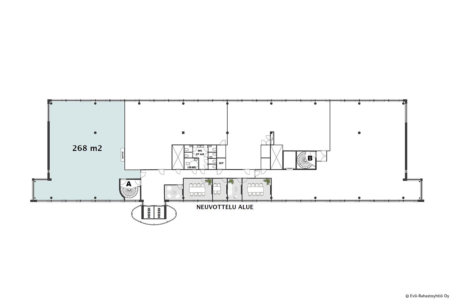
Tuo yrityksesi täysin uudistettuihin toimitiloihin! Maarinportti on v. 2025 remontista valmistuva toimistokohde. Tämä on esimerkki toimistotilasta, johon voi saada n. 24 työpistettä. Tilankäyttöratkaisuun ja materiaalivalintoihin voi vaikuttaa. Käytössä on vuokranantajan tarjoama sisustussuunnittelija. Ota yhteyttä niin kerromme lisää!
Osoite
Metsänpojankuja 1, 02130 Espoo
Tilatyyppi
Toimistotilaa
268 m2
Kiinteistö
MaarinPortti
Pysäköinti
Pysäköintipaikkoja löytyy kiinteistön omasta pysäköintihallista sekä ulkopysäköintialueelta.
Palvelut
Auditorio, henkilöstöravintola, catering, vuokrattavia neuvottelutiloja, aulapalvelu
Muuta
Tilan ominaisuudet: tilassa on ilmastointi, avo-/kombitoimisto
Vapautuu
Uudiskohde, ennakkomarkkinoinnissa
Energiatehokkuusluokka
A
Ota yhteyttä
Evli
Aleksanterinkatu 19, 00100 Helsinki
Näytä puhelinnumero
020 155 8610
Esa Käkelä
Näytä puhelinnumero
09 4766 9406
Jouni Puhakka
Näytä puhelinnumero
050 556 7952
Pyydä lisätietoa
