Vuokrataan toimistotilat, varastotilat, muut tilat - Vantaa
Manttaalitie 5-7, Veromies, 01530 Vantaa #10818379
Manttalitie 5-7, tarjoaa korkealuokkaista logistiikkatilaa Aviapoliksessa, josta erinomaiset liikenneyhteydet Kehä 3:lle ja Tuusulanväylälle.
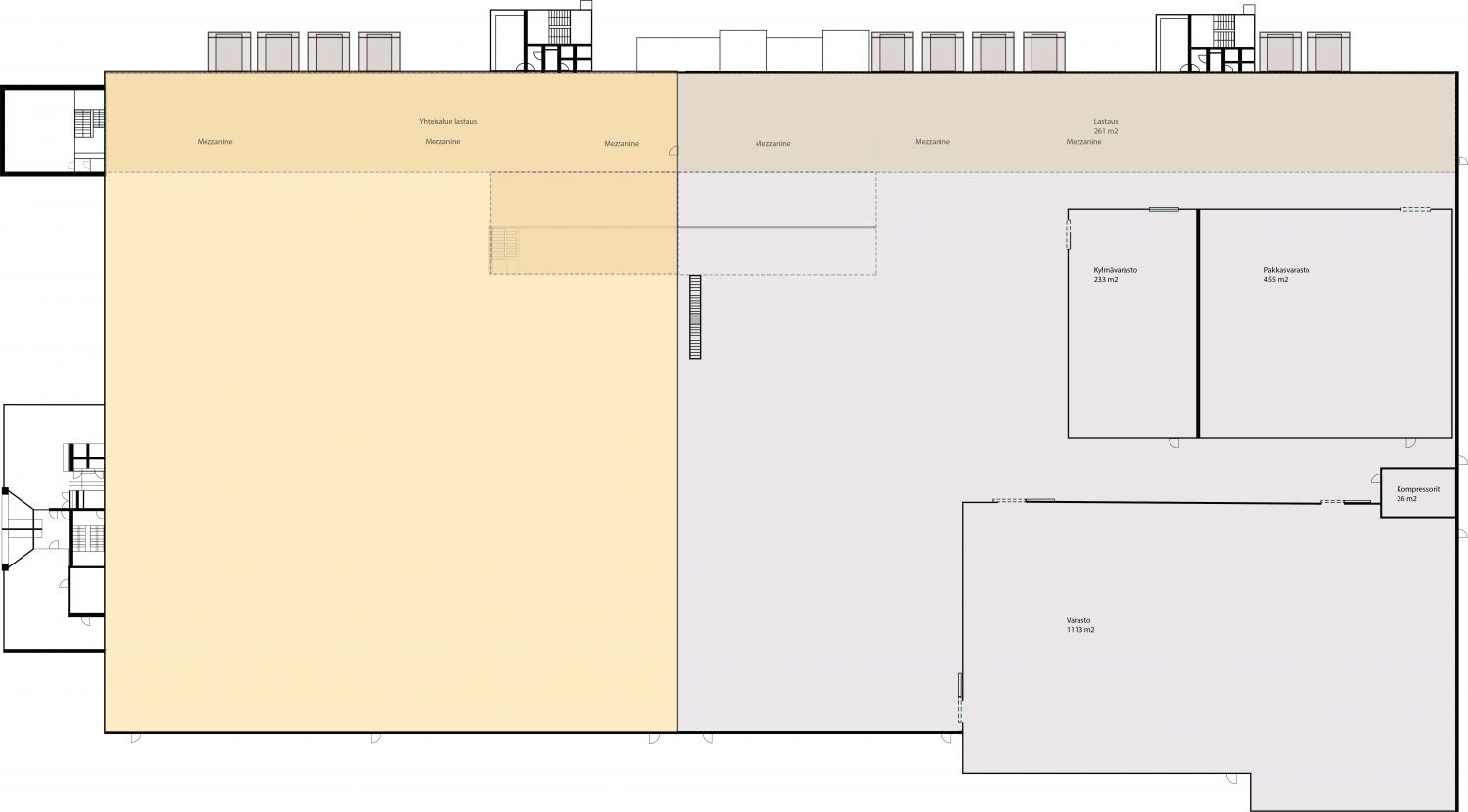
Vuokrattavana varastotilaa (1119 m2 + 2043 m2) + toimistoa (968 m²) + sosiaalitilat (30 m2 + 47 m2) + mesaniiniä. Vuokrattavan tilan korkeus on 10,0 metriä ja varustettu useammalla lastauslaiturilla, mikä mahdollistaa tehokkaan varastoinnin. Tilan lohkoaminen on myös mahdollista jonka lisäksi osa toimistoa ovat remontoitavissa.
Mahdollista vuokrata toimisto- ja sosiaalitiloja aina 1 045 m² asti.
Piha-alue tarjoaa riittävästi tilaa raskaammankin kaluston tarpeisiin, ja laaja pysäköintialue takaa, että henkilökunnan ja vierailijoiden ajoneuvot mahtuvat mukavasti alueelle.
Jos olette kiinnostuneita vuokraamaan tilaa logistiikkatoimintaanne varten, Manttalitien logistiikkakeskus tarjoaa joustavia ratkaisuja, jotka voidaan räätälöidä vastaamaan erilaisia tarpeita.
Lisätietoja tilasta ja sen ominaisuuksista saa ottamalla yhteyttä meihin.
CBRE Finland Oy
Jouko Lehtonen
Head of Industrial & Logistics
Näytä puhelinnumero
+358503621811
Niclas Fredriksson
Advisor Industrial & Logistics
Näytä puhelinnumero
+358440513960
