Vuokrataan toimistotilat - Helsinki
Lindström talo, Lautatarhankatu 6, Kalasatama, 00580 Helsinki #10817983
Laadukas, industrial-henkinen 293 m² toimistotila perinteikkäässä Lindström Talossa
Osoite
Lautatarhankatu 6, 00580 Helsinki
Tilatyyppi
Toimistotilaa
293 m2
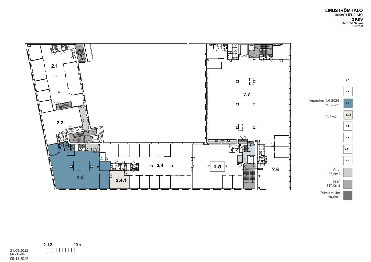
Pohjapiirros
Kiinteistö
Korkea, industrial-henkinen 293 m² kulmatoimisto Lindström Talon alkuperäiseltä puolelta. Tila koostuu suuremmasta, 255 m² kokoisesta toimistosta, sekä viereisestä 38 m² pientoimistosta.
Laadukasta toimistotilaa perinteikkäässä Lindström Talossa. Jykevät tiiliseinät pitävät sisällään yli 11 000 m² valoisaa, täysin modernisoitua ja jäähdytettyä tilaa.
Toimisto sijaitsee hyvien yhteyksien varrella Lindström Talossa, joka tarjoaa monipuoliset palvelut vuokralaisilleen.
- Ilmastointi
- Auditorio
- Henkilöstöravintola
- Vuokrattavia neuvottelutiloja
- Aulapalvelu
- Hallipaikkoja talon alla, vieraspaikat talon sisäpihalla
Laadukasta toimistotilaa perinteikkäässä Lindström Talossa. Jykevät tiiliseinät pitävät sisällään yli 11 000 m² valoisaa, täysin modernisoitua ja jäähdytettyä tilaa.
Toimisto sijaitsee hyvien yhteyksien varrella Lindström Talossa, joka tarjoaa monipuoliset palvelut vuokralaisilleen.
- Ilmastointi
- Auditorio
- Henkilöstöravintola
- Vuokrattavia neuvottelutiloja
- Aulapalvelu
- Hallipaikkoja talon alla, vieraspaikat talon sisäpihalla
Kulkuyhteydet
Metroasema 400 m, Raitiovaunupysäkki 300 m, Bussipysäkki 100 m, Juna-asema 2,5 km, Lentoasema 16 km
Muuta
Ei lain edellyttämää energiatodistusta
Vapautuu
Heti
Kerros
4
Energiatehokkuusluokka
Ei lain edellyttämää energiatodistusta
Näkyvällä paikalla
Hissi
Ota yhteyttä
ScanReal Oy LKV
Opus Business Park
Hitsaajankatu 24
00810 Helsinki
info@scanreal.fi
Puh:
Näytä puhelinnumero
020 730 8830
Sopivat toimitilat yhdellä otolla!
Kartoitamme toimitilatarpeesi ja etsimme yrityksellesi parhaiten sopivat vapaat toimitilat. Koska vuokranantajat maksavat palvelumme, on tämä yrityksellesi veloituksetonta.
OTA YHTEYTTÄ - SOVI NÄYTTÖ!
Kaikki kohteemme eivät ole netissä, kerro tilatarpeesi niin kartoitamme vaihtoehdot.
Palvelumme on tilanhakijalle ilmainen
Pyydä lisätietoa
