Vuokrataan varastotilat - Helsinki
Mekaanikonkatu 5, Herttoniemi, 00880 Helsinki #10817936
Varastotilaa hallikiinteistöstä loistosijainnilla
Osoite
Mekaanikonkatu 5, 00880 Helsinki
Tilatyyppi
Varastotilaa
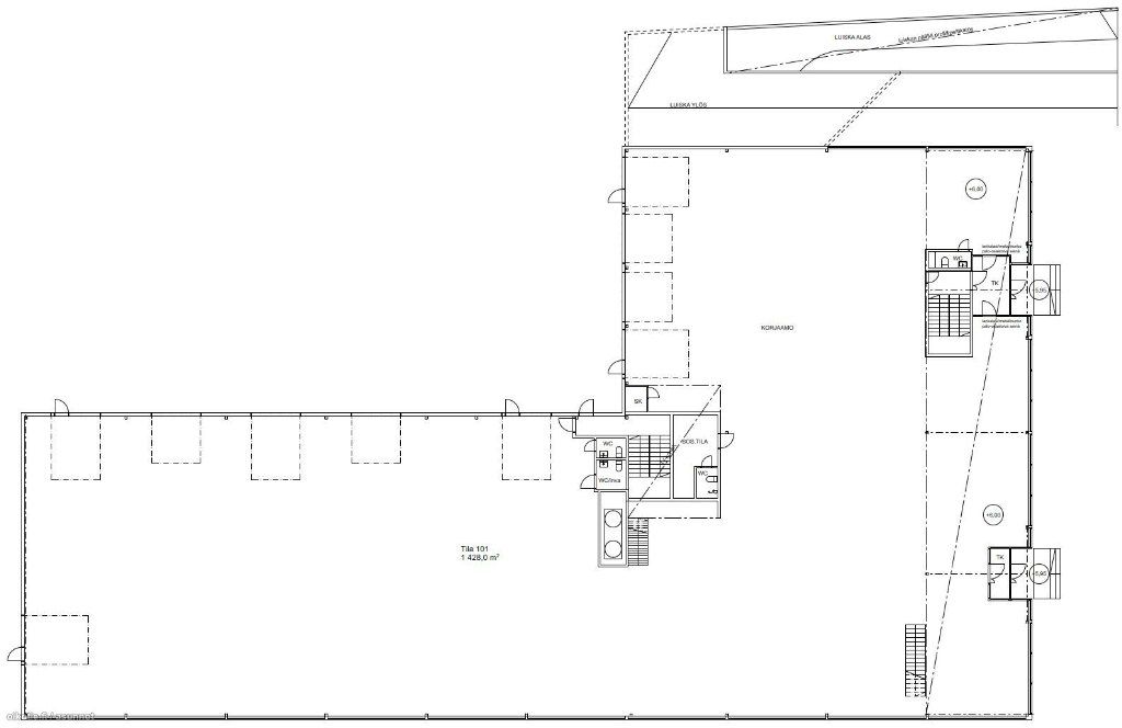
610 m2
Muuta
Vuokrattavana maantason varastotila, jonka pinta-ala on 610 m². Tilassa on 4 x nosto-ovi kooltaan 2,1 x 2,5m, joka helpottaa tavaroiden lastausta ja purkua. Tilan korkeus on 2,7m, soveltuu auton huoltoon pesuun ja teippaukseen esim varastokäytön lisäksi.
Tila sijaitsee vilkkaalla ja näkyvällä paikalla Herttoniemessä, mikä tekee siitä helposti saavutettavan. Pihalla on autopaikkoja saatavilla, joten pysäköinti on vaivatonta.
Tilat ovat muunneltavia, ja omistajalla on valmius kehittää niitä vuokralaisen tarpeiden mukaan.
Tervetuloa tutustumaan, varaathan välittäjältä oman esittelyaikasi. Voit kysyä meiltä myös muita sopivia vaihtoehtoja, kauttamme löydät juuri Teidän tarpeisiinne sopivat tilat. Palvelumme on tilanhakijalle veloitukseton!
Tila sijaitsee vilkkaalla ja näkyvällä paikalla Herttoniemessä, mikä tekee siitä helposti saavutettavan. Pihalla on autopaikkoja saatavilla, joten pysäköinti on vaivatonta.
Tilat ovat muunneltavia, ja omistajalla on valmius kehittää niitä vuokralaisen tarpeiden mukaan.
Tervetuloa tutustumaan, varaathan välittäjältä oman esittelyaikasi. Voit kysyä meiltä myös muita sopivia vaihtoehtoja, kauttamme löydät juuri Teidän tarpeisiinne sopivat tilat. Palvelumme on tilanhakijalle veloitukseton!
Vapautuu
Kysy
Ota yhteyttä
Tuloskiinteistöt Oy
Rikhardinkatu 2 B 5, 00130 Helsinki
Näytä puhelinnumero
(09) 6841 620
Jorma Ryynänen
Commercial Real Estate Advisor LKV, LVV
Näytä puhelinnumero
+358 40 708 4064
Otto Ahtola
Commercial Real Estate Advisor
Näytä puhelinnumero
+358 40 042 2830
Pyydä lisätietoa
