Vuokrataan toimistotilat - Espoo
Ahventie 4, Haukilahti, 02170 Espoo #10817924
Vuokrataan valoisaa toimistotilaa Haukilahdessa Länsiväylän varrella. Tilasta on avarat näköalat ja se on muokattavissa vuokralaisen tarpeiden mukaan. Talossa on vastaanottopalvelu, lounasravintola, neuvottelutilat sekä edustus- ja saunaosasto. Reilusti pysäköintitilaa myös vieraille. Ota yhteyttä ja sovi esittely, vuokrauspalvelumme on tilanhakijoille maksuton
Osoite
Ahventie 4, 02170 Espoo
Tilatyyppi
Toimistotilaa
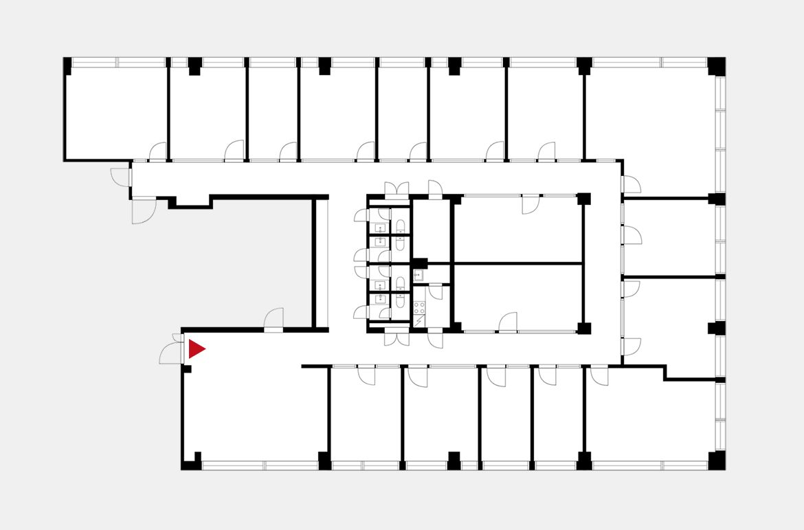
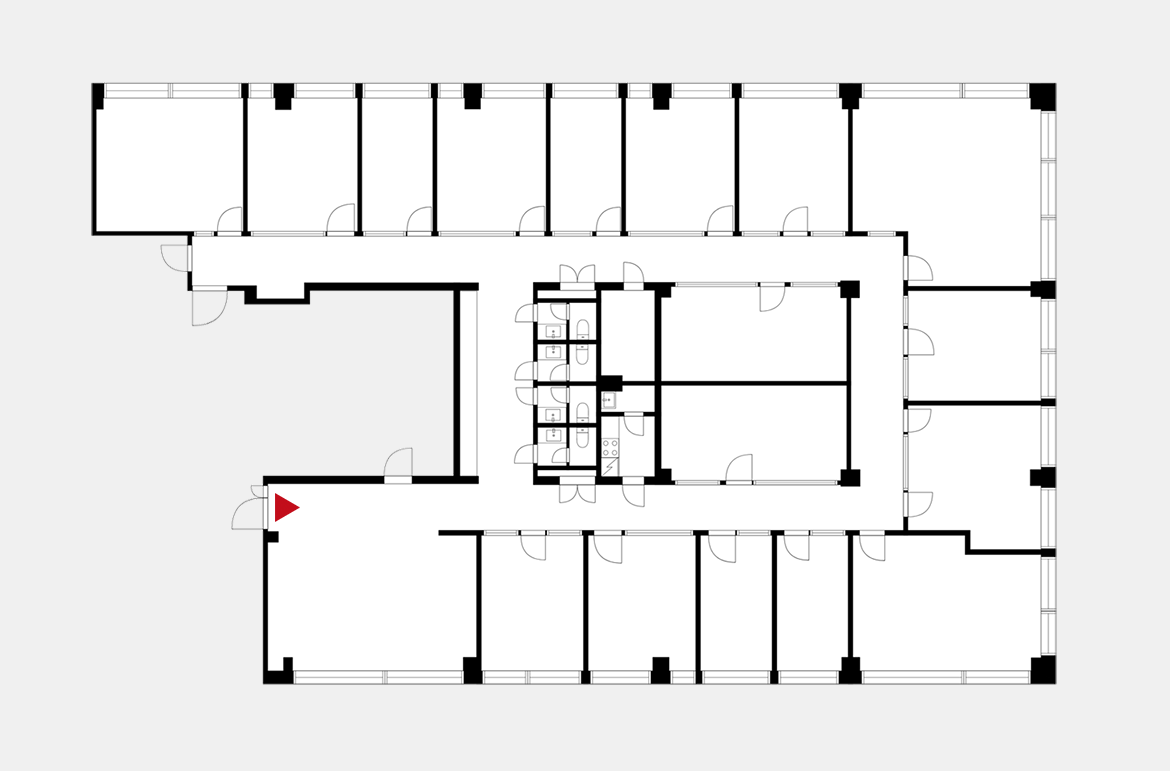
432 m2
Pohjapiirros
Kiinteistö
AHTI BUSINESS PARK
Pysäköinti
Halli- ja pihapysäköintitilaa runsaasti.
Kulkuyhteydet
Länsiväylä, Espoon julkinen liikenne.
Vapautuu
Heti
Kerros
5 / 6
Energiatehokkuusluokka
Ei lain edellyttämää energiatodistusta
Näkyvällä paikalla
Hissi
Ota yhteyttä
Senaatin Notariaatti Oy LKV
Lämmittäjänkatu 4 A
FIN-00880 Helsinki
Tel:
Näytä puhelinnumero
+358 9 7745 100
Pyydä lisätietoa
