Vuokrataan toimistotilat - Espoo
Vaisalantie 2, A-Talo, Otaniemi, 02130 Espoo #10817903
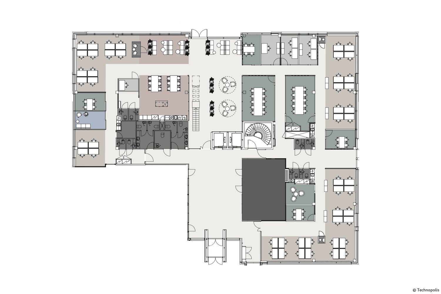
Vuokrataan Technopolis Otaniemessä Espoossa näyttävä kaksikerroksinen 1380 m² toimitila, jonka sisääntulo ei jää keneltäkään huomaamatta. Tämä Innopoli 3 A-talossa sijaitseva ensimmäisen ja toisen kerroksen toimistokokonaisuus on yhdistetty sisäportaikolla. Tilassa on monipuolisesti erilaisia työtä tukevia tiloja ja suuri keittiöalue, ja siinä on myös oma iso terassi. Toimitilassa on ilmastointi, joka takaa miellyttävän lämpötilan vuoden ympäri. Sovituskuvasta näkee tarkemman työpistemäärän ja tilan toiminnot.
Tila on vuokrattavissa myös kalustettuna, lisäksi saatavilla työtilan suunnittelu- ja muuttopalvelut helpottamaan muuttoa. Ota yhteyttä ja tule tutustumaan paikan päälle.
Technopolis Otaniemi sijaitsee lähellä Aalto-yliopiston metroasemaa, pikaraitiotien ja bussireittien varrella. Lisäksi Suomen vilkkain liikenneväylä Kehä I kulkee aivan kampuksen vierestä. Parkkipaikkoja on erittäin hyvin saatavilla autoilijoiden tarpeisiin.
Technopolis Otaniemen kampuksen monipuolisten palveluiden ansiosta sinä voit keskittyä liiketoimintaasi. Palveluihin kuuluvat ystävällinen aulapalvelu, monipuolinen valikoima kokoustiloja, useita erinomaisia ravintoloita ja useampi hyvin varusteltu kuntosali. Lisäksi kampukselta löytyy kampaamoita, hammasklinikka, eläinlääkäriasema ja kaksi autopesulaa.
Technopolis
Elektroniikkatie 8 FIN-90590 Oulu
Näytä puhelinnumero
046 712 0000
Heta Lindman
Näytä puhelinnumero
050 336 5815
Hanna Peltola
Näytä puhelinnumero
050 514 3746
Nina Torkkeli
Näytä puhelinnumero
040 532 9787
Technopolis on työympäristöjen asiantuntija. Tarjoamme joustavia ja tehokkaita toimitiloja sekä niihin liittyviä palveluita. Hoidamme kaiken työtilojen suunnittelusta sekä aula- ja kokouspalveluista ravintoloihin ja siivoukseen. Asiakaskokemus ja sen kehittäminen ovat toimintamme ytimessä. Meillä on 14 kampusta, joissa toimii 1200 asiakasyritystä ja niiden 35 000 työntekijää neljässä maassa Euroopassa.
https://technopolisglobal.com/fi