Vuokrataan toimistotilat - Lahti
Askonkatu 9, 15100 Lahti #10817762
Askotalon korkeat ja valoisat entiset teollisuustilat ovat helposti muunneltavissa ja niistä saa mukavasti räätälöityä persoonallisia työympäristöjä. Ota yhteyttä ja sovi esittely, vuokrauspalvelumme on tilanhakijoille maksuton.
Osoite
Askonkatu 9, 15100 Lahti
Tilatyyppi
Toimistotilaa
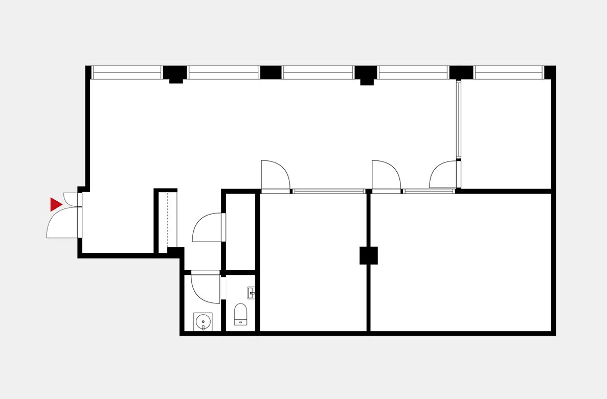
108 m2
Tilajako
Jaettavissa
Pohjapiirros
Sijainti
Entinen teollisuusalue ja nykyään rouhean urbaani Askonalue sijaitsee kilometrin päässä rautatieasemalta ja keskustasta.
Palvelut
Lahden Askonalue on vireä yrityskeskittymä, jossa toimii useita asiantuntija- ja palveluyrityksiä, logistiikka- ja varastokäyttäjiä, tuotantoyrityksiä ja lounasravintoloita.
Vapautuu
Heti
Kerros
1
Jaettavissa
Ota yhteyttä
Senaatin Notariaatti Oy LKV
Lämmittäjänkatu 4 A
FIN-00880 Helsinki
Tel:
Näytä puhelinnumero
+358 9 7745 100
Pyydä lisätietoa
