Vuokrataan liiketilat, tuotantotilat, varastotilat - Jyväskylä
Savelankatu 3, 40700 Jyväskylä #10817622
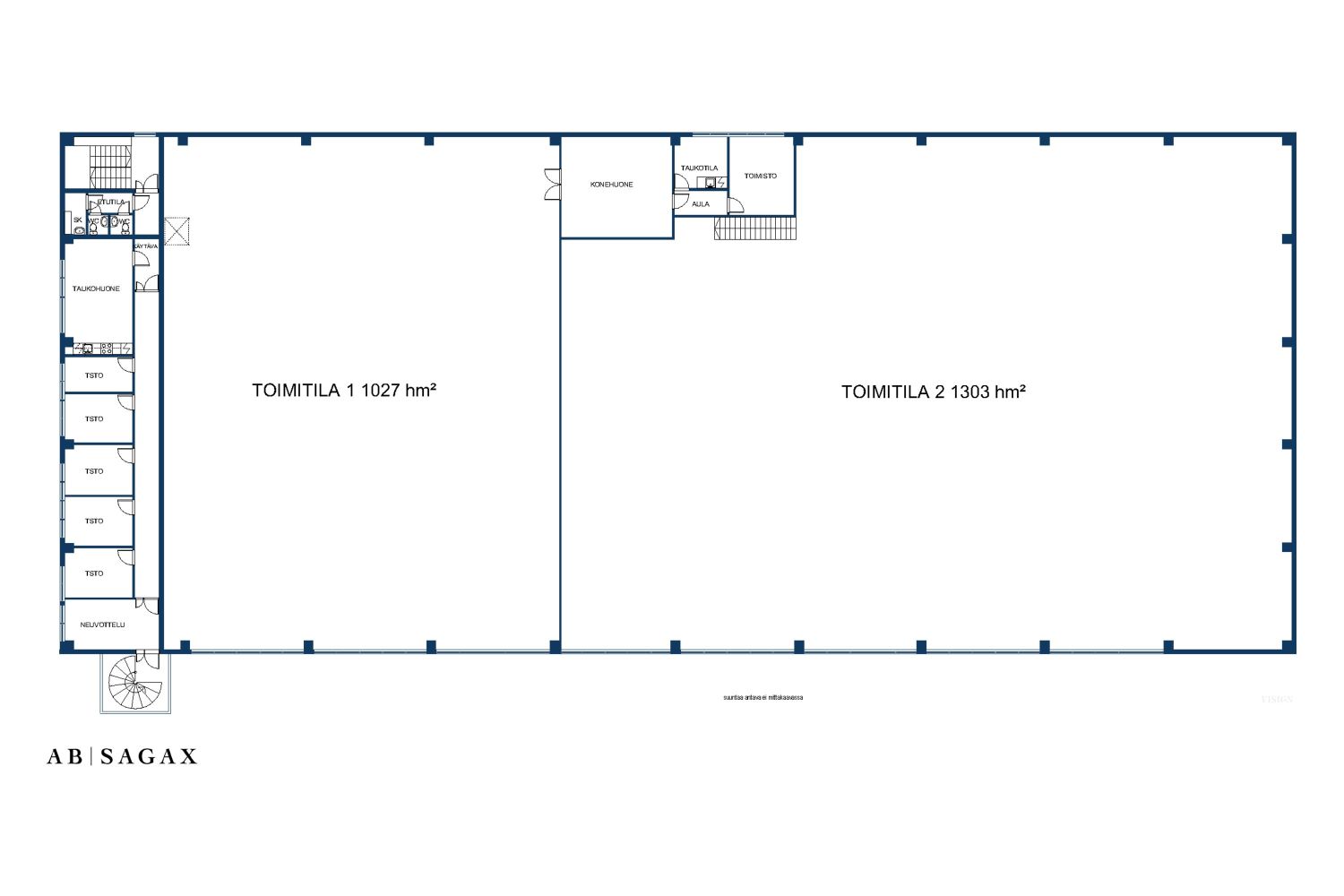
Etsitkö tilaa, jossa voit laajentaa tuotantoasi tai aloittaa uuden liiketoiminnan Jyväskylässä? Jyväskylän Savelan alueelle on valmistumassa tämä 2331 m2 kokoinen tuotanto ja varastokäyttöön soveltuva kiinteistö, joka on jaettavissa tarvittaessa muutamalle käyttäjälle, n. 1020m2 ja 1303m2 Kohde on vielä rakennusvaiheessa ja tässä onkin oiva tilaisuus päästä vaikuttamaan vielä ratkaisuihin. Arvioitu valmistumisen aikataulu on 2025 lopulla.
Osoite
Savelankatu 3, 40700 Jyväskylä
Tilatyyppi
Liiketilaa
1023 - 2331 m2
Tuotantotilaa
1023 - 2331 m2
Varastotilaa
1023 - 2331 m2
Yhteensä
1023 - 2331 m2
Tilajako
Jaettavissa
Jaettavissa 1023m2 ja 1303 m2 kokoisiksi tiloiksi.
Pohjapiirros
Tila soveltuu
Autokorjaamo
Kiinteistö
Kiinteistöstä löytyy modernia varastointia, tukkukauppaa ja tuotantoa tukevat perusratkaisut.
- Vapaakorkeus 8 m
- Lattiankantavuus 5000kg/m2
- Isot nosto-ovet
- Modernit energiaratkaisut ja Verygood tason BREEM sertifikaatti.
- Käytännölliset toimisto ja sosiaalitilat
Alueen yrityskeskittymässä toimii monenlaisia palveluita tukevia yrityksiä päivittäistavarakaupoista erikoistarvikekauppoihin. Lounasravintola ja kuntosali tarjoavat mukavat puitteet työntekijöille.
Liikenneyhteydet ovat erinomaiset. Kiinteistölle on vaivatonta saapua niin omalla autolla kuin julkisillakin kulkuneuvoilla – linja-autopysäkit ovat vain 200 metrin päässä. Lisäksi alueen hyvät pyöräilyreitit tekevät työmatkapyöräilystä helppoa ja mukavaa. Kiinteistön piha-alueella on runsaasti pysäköintitilaa sekä työntekijöille että asiakkaille, mikä tekee logistiikasta ja päivittäisestä toiminnasta sujuvaa.
- Vapaakorkeus 8 m
- Lattiankantavuus 5000kg/m2
- Isot nosto-ovet
- Modernit energiaratkaisut ja Verygood tason BREEM sertifikaatti.
- Käytännölliset toimisto ja sosiaalitilat
Alueen yrityskeskittymässä toimii monenlaisia palveluita tukevia yrityksiä päivittäistavarakaupoista erikoistarvikekauppoihin. Lounasravintola ja kuntosali tarjoavat mukavat puitteet työntekijöille.
Liikenneyhteydet ovat erinomaiset. Kiinteistölle on vaivatonta saapua niin omalla autolla kuin julkisillakin kulkuneuvoilla – linja-autopysäkit ovat vain 200 metrin päässä. Lisäksi alueen hyvät pyöräilyreitit tekevät työmatkapyöräilystä helppoa ja mukavaa. Kiinteistön piha-alueella on runsaasti pysäköintitilaa sekä työntekijöille että asiakkaille, mikä tekee logistiikasta ja päivittäisestä toiminnasta sujuvaa.
Vapautuu
Sopimuksen mukaan
Katutasossa
Näkyvällä paikalla
Jaettavissa
Siltanosturi
Ota yhteyttä
MAP Tilat Oy
Mika Hermaala
Näytä puhelinnumero
040 192 1313
mika.hermaala@maptilat.fi
Energiakuja 3, 00180 Helsinki
Pyydä lisätietoa
