Vuokrataan toimistotilat - Helsinki
Aleksanterinkatu 19, Keskusta, 00100 Helsinki #10817558
Korkea ja valoisa 170 m² toimisto ydinkeskustan arvokiinteistössä.
Osoite
Aleksanterinkatu 19, 00100 Helsinki
Tilatyyppi
Toimistotilaa
170 m2
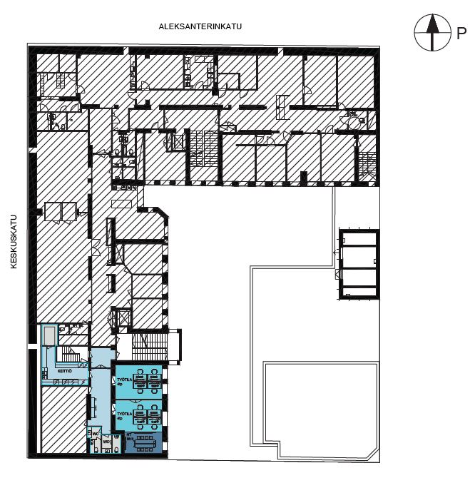
Pohjapiirros
Kiinteistö
Kuudennen kerroksen toimisto historiallisessa arvokiinteistössä. Muutamasta huoneesta koostuva tila, jossa suuri keittiö omalla kylmiöllä.
Kiinteistöllä upea sijainti Aleksanterinkadun ja Keskuskadun kulmassa ja itse tila sijaintee talon Keskuskadun puoleisessa osassa. Ikkunoista sisäpihanäkymät. Sisäänkäynti toimistoon osoitteesta Keskuskatu 4
Aleksanterikatu 19 arvokiinteistössä omaleimaisinta ovat korkeat huoneet ja vetovoimainen sijainti keskellä vilkkainta Helsinkiä.
Talo on valmistunut vuonna 1898. Sen on suunnitelleet arkkitehdit Grahn, Hedman ja Wasastjerna, joiden käsialaa ovat monet muutkin eteläisen Helsingin kauneimmista taloista.
Talo sijaitsee käytännössä keskellä Helsingin vilkkainta julkisen liikenteen solmukohtaa. Muun muassa Rautatieasema eli junat, metro, linja-autot ja raitiovaunut ovat vain kadun ylityksen päässä.
Läheltä löytyy useita eri pysäköinti-mahdollisuuksia kuten Aimopark | Stockmann, EuroPark | P-Eliel ja P-Forum.
Ilmoituksen valokuvat ovat yleiskuvia kiinteistön eri tiloista.
Kiinteistöllä upea sijainti Aleksanterinkadun ja Keskuskadun kulmassa ja itse tila sijaintee talon Keskuskadun puoleisessa osassa. Ikkunoista sisäpihanäkymät. Sisäänkäynti toimistoon osoitteesta Keskuskatu 4
Aleksanterikatu 19 arvokiinteistössä omaleimaisinta ovat korkeat huoneet ja vetovoimainen sijainti keskellä vilkkainta Helsinkiä.
Talo on valmistunut vuonna 1898. Sen on suunnitelleet arkkitehdit Grahn, Hedman ja Wasastjerna, joiden käsialaa ovat monet muutkin eteläisen Helsingin kauneimmista taloista.
Talo sijaitsee käytännössä keskellä Helsingin vilkkainta julkisen liikenteen solmukohtaa. Muun muassa Rautatieasema eli junat, metro, linja-autot ja raitiovaunut ovat vain kadun ylityksen päässä.
Läheltä löytyy useita eri pysäköinti-mahdollisuuksia kuten Aimopark | Stockmann, EuroPark | P-Eliel ja P-Forum.
Ilmoituksen valokuvat ovat yleiskuvia kiinteistön eri tiloista.
Vapautuu
Heti
Rakennusvuosi
1898
Kerros
6 / 7
Energiatehokkuusluokka
F2007
Näkyvällä paikalla
Hissi
Ota yhteyttä
ScanReal Oy LKV
Opus Business Park
Hitsaajankatu 24
00810 Helsinki
info@scanreal.fi
Puh:
Näytä puhelinnumero
020 730 8830
Sopivat toimitilat yhdellä otolla!
Kartoitamme toimitilatarpeesi ja etsimme yrityksellesi parhaiten sopivat vapaat toimitilat. Koska vuokranantajat maksavat palvelumme, on tämä yrityksellesi veloituksetonta.
OTA YHTEYTTÄ - SOVI NÄYTTÖ!
Kaikki kohteemme eivät ole netissä, kerro tilatarpeesi niin kartoitamme vaihtoehdot.
Palvelumme on tilanhakijalle ilmainen
Pyydä lisätietoa
