Vuokrataan toimistotilat - Helsinki
Lemuntie 7, Vallila, 00510 Helsinki #10817498
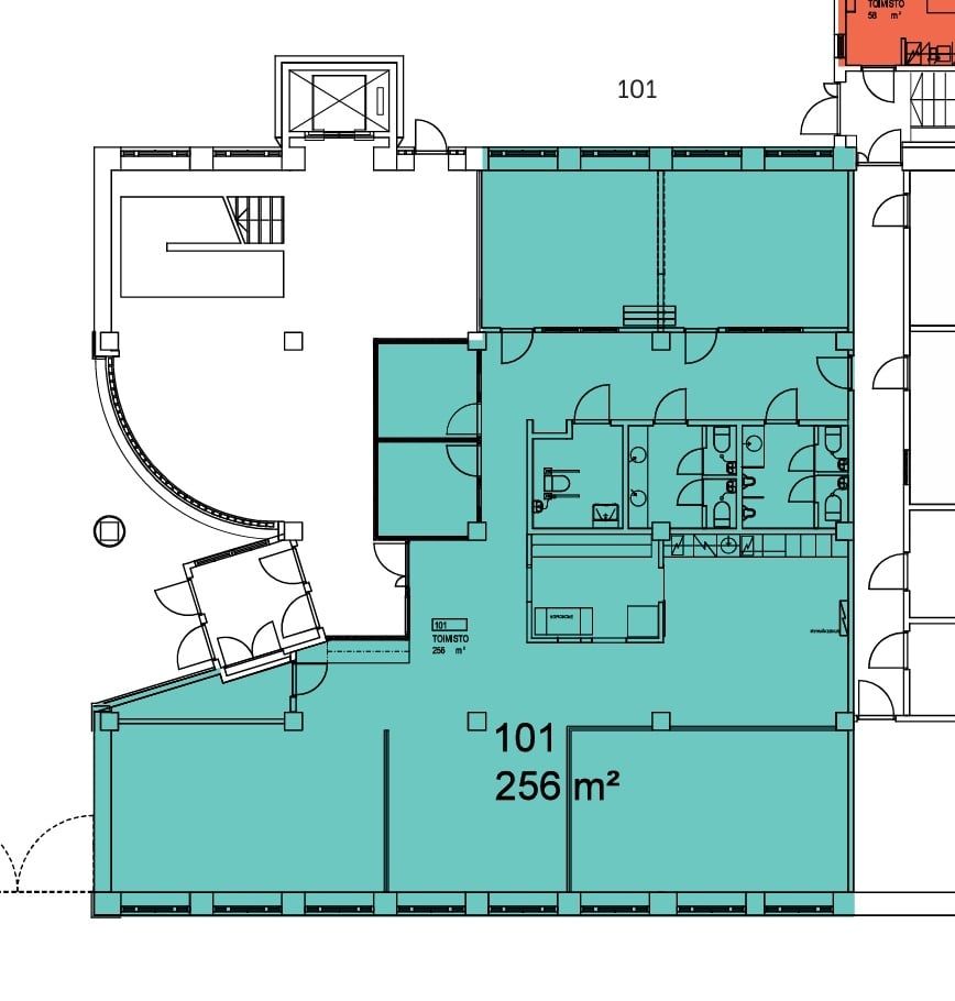
Katutason toimisto erinomaisella sijainnilla Vallilassa. Tilassa on avokonttoria, työhuoneita ja oma keittiö sekä wc:t. Vallilan Akseli & Elina on dynaaminen toimitilakokonaisuus, jossa on laajat palvelut. Historian havinaa huokuvissa tiloissa on ripaus letkeää loftia sekä modernimpaa toimistofiilistä. Akselin & Elinan tiloissa yhdistyvät kiehtovalla tavalla mennyt, nykyisyys ja tuleva. Akseli & Elinan BREEAM-luokitus on Very Good.
Me Croisettella autamme teitä löytämään teille parhaat tilat! Olemme puolueettomia asiantuntijoita ja tunnemme toimitilamarkkinat, talot sekä tilat vankalla kokemuksella. Meillä on välityksessä kaikki toimitilat ja tiedämme niiden alustavat vuokratasot.
Tehtävämme on tehdä toimitilahaustanne onnistunut ja helppo. Saamme palkkiomme kiinteistönomistajalta, joten sinulle palvelumme on täysin maksuton.
Hissi
Croisette Real Estate Partner
Erottajankatu 5 A 6, 00130 Helsinki
Näytä puhelinnumero
+358 400 585 857
Croisette Vuokraus
Näytä puhelinnumero
+358400585857
