Vuokrataan toimistotilat - Helsinki
Mikonkatu 9, Keskusta, 00100 Helsinki #10817492
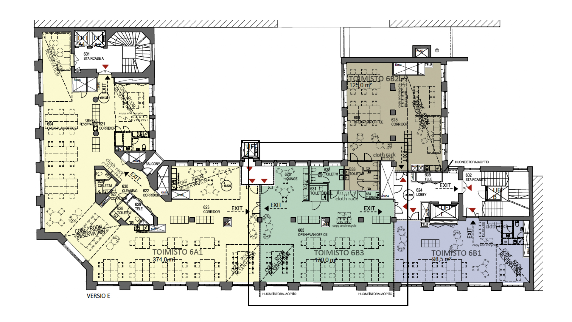
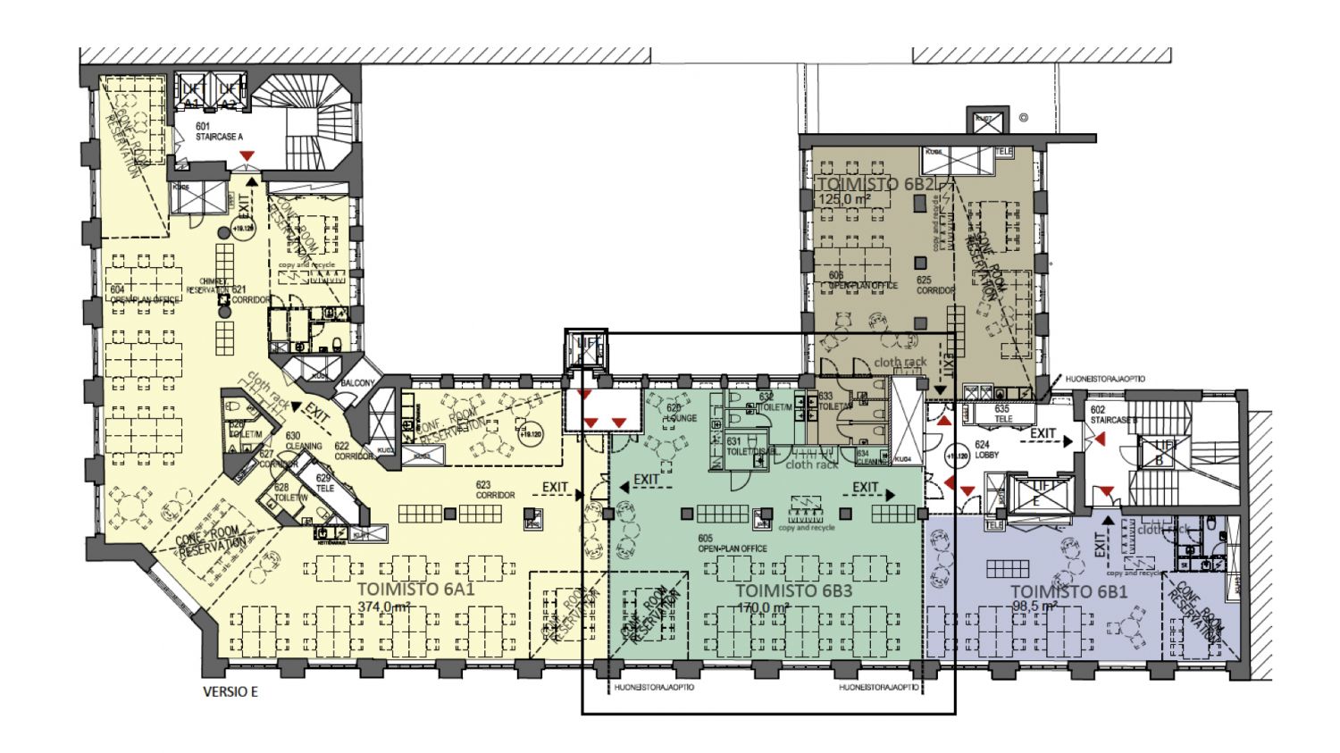
Kuudennen kerroksen tyylikäs, pääosin avotilasta koostuva 170 m² toimisto, aivan Helsingin ydinkeskustasta.
Osoite
Mikonkatu 9, 00100 Helsinki
Tilatyyppi
Toimistotilaa
170 m2
Pohjapiirros
Kiinteistö
Remontoitu 170 m² yksityistoimisto Helsingin paraatipaikalta. Valoisaa avotilaa, erillinen neuvotteluhuone ja valoisa avokeittiönurkkaus.
Jyhkeä funkkishelmi sijaitsee erinomaisella paikalla keskellä Helsinkiä, vilkkaan kävelykadun vieressä WTC Plazan ja Ateneumin naapurissa. Mikonkatua kulkevalla raitiovaunulinja 7:lla pääsee kätevästi Kamppiin, ja rautatieasemalle on vain noin 150 metriä. Ydinkeskustan monipuoliset palvelut ovat lähellä. Lähin pysäköintihalli on P-Kluuvin uudistettu pysäköintilaitos.
Epicenter tarjoaa innovatiivisen yhteisön digitaalisuuteen ja teknologioihin keskittyneille yrityksille, jotka hakevat yhteistoiminnallista, talon palvelut sisältävää toimitilaa ja monipuolisia verkostoitumismahdollisuuksia. Tarjoamme erilaisia jäsenyyksiä yritysten ja yrittäjien lähi-, etä- ja hybridityön tarpeisiin inspiroivassa ympäristössä.
Epicenter Helsingin pulssi sykkii kiinteistön kahdeksassa kerroksessa, joissa on erikokoisten yritysten toimistoja, kokoushuoneita, yhteisöllisiä taukotiloja ja oman talon lounasravintola. Lisäksi Epicenterin monipuolisista avoimen työskentelyn tiloista on mahdollista vuokrata henkilökohtainen työpiste lyhyeksi tai pidemmäksi aikaa. Talon oma podcaststudio, hiljaisen työskentelyn tilat, Smartblockit ja oma, upea 250 henkilön tapahtumatila takaavat kattavat puitteet kokonaisvaltaisia palveluja arvostaville yrityksille ja yrittäjille.
Jyhkeä funkkishelmi sijaitsee erinomaisella paikalla keskellä Helsinkiä, vilkkaan kävelykadun vieressä WTC Plazan ja Ateneumin naapurissa. Mikonkatua kulkevalla raitiovaunulinja 7:lla pääsee kätevästi Kamppiin, ja rautatieasemalle on vain noin 150 metriä. Ydinkeskustan monipuoliset palvelut ovat lähellä. Lähin pysäköintihalli on P-Kluuvin uudistettu pysäköintilaitos.
Epicenter tarjoaa innovatiivisen yhteisön digitaalisuuteen ja teknologioihin keskittyneille yrityksille, jotka hakevat yhteistoiminnallista, talon palvelut sisältävää toimitilaa ja monipuolisia verkostoitumismahdollisuuksia. Tarjoamme erilaisia jäsenyyksiä yritysten ja yrittäjien lähi-, etä- ja hybridityön tarpeisiin inspiroivassa ympäristössä.
Epicenter Helsingin pulssi sykkii kiinteistön kahdeksassa kerroksessa, joissa on erikokoisten yritysten toimistoja, kokoushuoneita, yhteisöllisiä taukotiloja ja oman talon lounasravintola. Lisäksi Epicenterin monipuolisista avoimen työskentelyn tiloista on mahdollista vuokrata henkilökohtainen työpiste lyhyeksi tai pidemmäksi aikaa. Talon oma podcaststudio, hiljaisen työskentelyn tilat, Smartblockit ja oma, upea 250 henkilön tapahtumatila takaavat kattavat puitteet kokonaisvaltaisia palveluja arvostaville yrityksille ja yrittäjille.
Vapautuu
Heti
Rakennusvuosi
1929
Saneerausvuosi
2018
Kerros
6 / 8
Energiatehokkuusluokka
Ei lain edellyttämää energiatodistusta
Näkyvällä paikalla
Ota yhteyttä
ScanReal Oy LKV
Opus Business Park
Hitsaajankatu 24
00810 Helsinki
info@scanreal.fi
Puh:
Näytä puhelinnumero
020 730 8830
Sopivat toimitilat yhdellä otolla!
Kartoitamme toimitilatarpeesi ja etsimme yrityksellesi parhaiten sopivat vapaat toimitilat. Koska vuokranantajat maksavat palvelumme, on tämä yrityksellesi veloituksetonta.
Palvelumme on tilanhakijalle ilmainen
Pyydä lisätietoa
