Vuokrataan toimistotilat - Espoo
Piispanportti 11, Matinkylä, 02240 Espoo #10817476
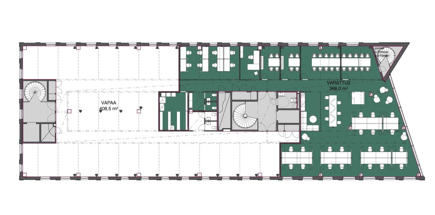
Tämä 408m2 valoisa ja avara toimistotila sijaitsee The Loft Housen 4.kerroksessa. Kyseistä toimistotilaa saa helposti muokattua oman näköiseksi loft-toimistoksi ja uudella käyttäjällä on mahdollista vaikuttaa tilan loppuviimeistelyyn, sillä mm. keittiötä ja väliseiniä ei ole vielä rakennettu. Tilan ikkunat läpäisevät runsaasti luonnonvaloa ja tunnelma tilassa on industriaalinen ja loft-henkinen.
Kiinteistöstä löytyy erinomaisia palveluita vaihteleviin tarpeisiin. Vuokralaisten käytettävissä ovat mm. palveleva aula, kahvio pienine eväineen ja lounaineen, kuntosali, pyöräparkki, suihku- ja pukuhuonetilat, vuokrattavat kokoushuoneet ja edustavat aula ja lounge tilat. Kiinteistön 2-tasoisessa parkkihallissa saa näppärästi parkkeerattua autonsa ja sähköautoille löytyy sähköautonlatauspisteet.
Lisätietoa numerosta 044 0954001/Jukka tai 020 7290 710 ja lisää kohteita osoitteessa premises.fi.
Kohteella ei ole lain edellyttämää energiatodistusta tai energialuokka ei tiedossa.Kerros: 5
CRE PREMISES
Puh. Näytä puhelinnumero 020 7290 710
Vantaankoskentie 14
01670 VANTAA
