Vuokrataan toimistotilat - Helsinki
Porkkalankatu 7, Ruoholahti, 00180 Helsinki #10817424
Valoisaa toimistotilaa Ruoholahdesta
Osoite
Porkkalankatu 7, 00180 Helsinki
Tilatyyppi
Toimistotilaa
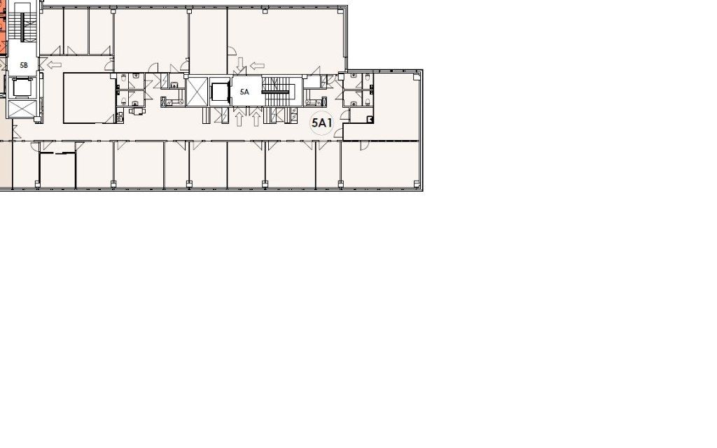
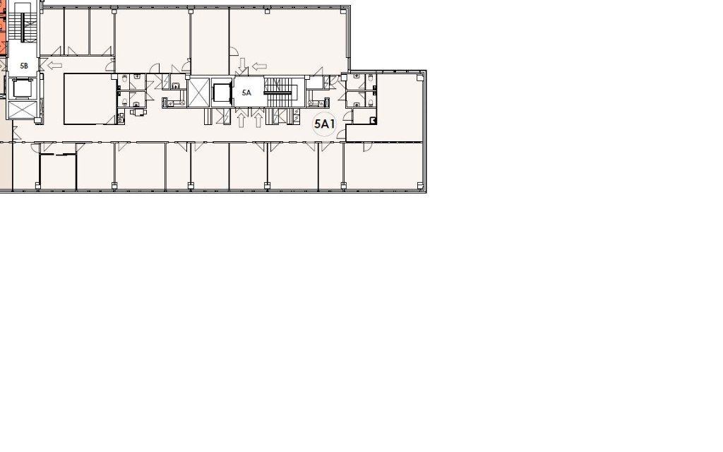
545 m2
Pysäköinti
Hallissa
Muuta
Vuokrataan valoisa ja tehokas 545 m2 toimisto Ruoholahdesta. Vuokralainen pääsee vaikuttamaan pintamateriaaleihin ja tilan pohjaratkaisuun!
Kiinteistö Salmisaaren Liiketalo on keskeisellä sijainnilla Ruoholahden ytimessä. Ruoholahden Metroasema on vain 7 minuutin kävelymatkan päässä. Oman auton käyttäjiä palvelee viereisen Kauppakeskus Ruoholahden vuokrattavat autopaikat ja kiinteistön parkkihallin autopaikat. Kiinteistön välittömässä läheisyydessä kävelymatkan päässä on Kauppakeskus Ruoholahti marketteineen, ravintoloineen ja muine palveluineen.
Kiinteistö sijaitsee kätevästi keskustan palvelujen tuntumassa, mutta on silti hinnaltaan huokeampi.
Sisäkuvat ovat havainnekuvia.
Tervetuloa tutustumaan, varaathan välittäjältä oman esittelyaikasi. Voit kysyä meiltä myös muita sopivia vaihtoehtoja, kauttamme löydät juuri teidän tarpeisiinne sopivat tilat. Palvelumme on tilanhakijalle veloitukseton!
Kiinteistö Salmisaaren Liiketalo on keskeisellä sijainnilla Ruoholahden ytimessä. Ruoholahden Metroasema on vain 7 minuutin kävelymatkan päässä. Oman auton käyttäjiä palvelee viereisen Kauppakeskus Ruoholahden vuokrattavat autopaikat ja kiinteistön parkkihallin autopaikat. Kiinteistön välittömässä läheisyydessä kävelymatkan päässä on Kauppakeskus Ruoholahti marketteineen, ravintoloineen ja muine palveluineen.
Kiinteistö sijaitsee kätevästi keskustan palvelujen tuntumassa, mutta on silti hinnaltaan huokeampi.
Sisäkuvat ovat havainnekuvia.
Tervetuloa tutustumaan, varaathan välittäjältä oman esittelyaikasi. Voit kysyä meiltä myös muita sopivia vaihtoehtoja, kauttamme löydät juuri teidän tarpeisiinne sopivat tilat. Palvelumme on tilanhakijalle veloitukseton!
Vapautuu
Kysy
Rakennusvuosi
1987
Kerros
5
Ota yhteyttä
Tuloskiinteistöt Oy
Rikhardinkatu 2 B 5, 00130 Helsinki
Näytä puhelinnumero
(09) 6841 620
Nina Meyke
Commercial Real Estate Advisor
Näytä puhelinnumero
+358 50 466 1519
Jorma Ryynänen
Commercial Real Estate Advisor LKV, LVV
Näytä puhelinnumero
+358 40 708 4064
Pyydä lisätietoa
