Vuokrataan toimistotilat - Vantaa
Äyritie 12 B, Veromies, 01510 Vantaa #10817369
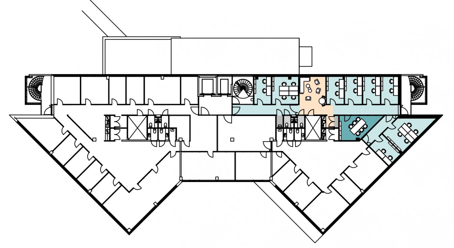
Vuokrattavana siistiä, valoisaa ja tehokasta toimistotilaa.
Osoite
Äyritie 12 B, 01510 Vantaa
Tilatyyppi
Toimistotilaa
201,5 m2
Kiinteistö
Vuokrattavana siistiä, valoisaa ja tehokasta toimistotilaa. Toimistossa on kuusi toimistohuonetta, kaksi tiimihuonetta ja yksi neuvotteluhuone. Tilasta voidaan suunnitella asiakkaalle sopiva kokonaisuus.
Sijainti
Aviapolis, Vantaa
Ympäristö
Aviapoliksen monipuoliset palvelut; mm. Kauppakeskus Jumbo ja Flamingo.
Pysäköinti
Kiinteistön pihalta/parkkihallista on vuokrattavissa autopaikkoja.
Palvelut
-Aulapalvelu
-Henkilöstöravintola
-Vuokrattavia neuvottelutiloja
-Saunaosasto
-Kuntosali
-Henkilöstöravintola
-Vuokrattavia neuvottelutiloja
-Saunaosasto
-Kuntosali
Kulkuyhteydet
-Bussipysäkki 400 m.
-Juna-asema 1,3 km.
-Lentoasema 2,6 km.
-Juna-asema 1,3 km.
-Lentoasema 2,6 km.
Vapautuu
Heti
Kerros
7
Energiatehokkuusluokka
Ei lain edellyttämää energiatodistusta
Näkyvällä paikalla
Hissi
Ota yhteyttä
REALIUM OY LKV
Tammasaarenkatu 1, 00180 Helsinki
Vaihde:
Näytä puhelinnumero
010 326 346
Tuomo Mäkelä
tuomo.makela@realium.fi
p.
Näytä puhelinnumero
044 050 1158
Joel Keto
joel.keto@realium.fi
p.
Näytä puhelinnumero
045 317 0330
KAIKKI TILAVAIHTOEHDOT KERRALLA!
SOITA - MEILAA JA TILAA NÄYTTÖ!
Ilmainen palvelu tilanhakijoille.
Kartoitamme parhaat tilavaihtoehdot.
Kaikki kohteet eivät ole netissä.
Pyydä lisätietoa
