Vuokrataan toimistotilat - Helsinki
Pasilanraitio 5, Länsi-Pasila, 00240 Helsinki #10817343
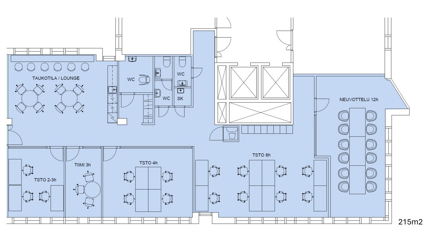
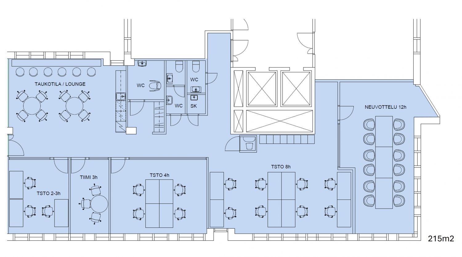
Pieni toimisto, joka remontoidaan käyttäjän tarpeiden mukaisesti. Tilassa työhuoneita, avotila ja neuvotteluhuone sekä keittiö.
Ylimmässä kerroksessa on saunaosasto, jossa kaksi erikokoista kokoustilaa 10/16 henkilölle. Vuokralaisten henkilökunnan käytettävissä on veloitukseton kuntosali pukuhuoneineen.
Pasilanraitio 5 sijaitsee loistavasti toimivien liikenneyhteyksien varrella. Kävelymatka Pasilan juna-asemalle on noin 400 m, raitiovaunu- ja bussipysäkit sijaitsevat aivan kiinteistön vieressä.
Kiinteistön omassa autohallissa on 33 autopaikkaa ja talon välittömässä läheisyydessä on vieraspysäköintiin soveltuvia maksullisia pysäköintipaikkoja. Lisää pysäköintitilaa on vuokrattavissa pysäköintioikeuksina Länsi-Pasilan Autopaikat Oy:n P1-hallista (Palkkatilanportti). Polkupyörille löytyy telineet kiinteistön autohallista.
Tällä hetkellä Pasilan alue kokonaisuudessaan kehittyy ja uudistuu voimakkaasti. Lähitulevaisuudessa Pasilasta tulee entistä merkittävämpi alue niin liikenteen solmukohtana kuin työpaikkojen, asuntojen sekä palveluiden sijaintipaikkana.
Lisätiedot ja kohde-esittelyt 020 7290 710, lisää kohteita premises.fi
Kohteella ei ole lain edellyttämää energiatodistusta tai energialuokka ei tiedossa.Kerros: 2
CRE PREMISES
Puh. Näytä puhelinnumero 020 7290 710
Vantaankoskentie 14
01670 VANTAA
