Vuokrataan toimistotilat - Helsinki
Leppäsuonkatu 9, Etu-Töölö, 00100 Helsinki #10817312
Toimistotilaa Helsingistä
Osoite
Leppäsuonkatu 9, 00100 Helsinki
Tilatyyppi
Toimistotilaa
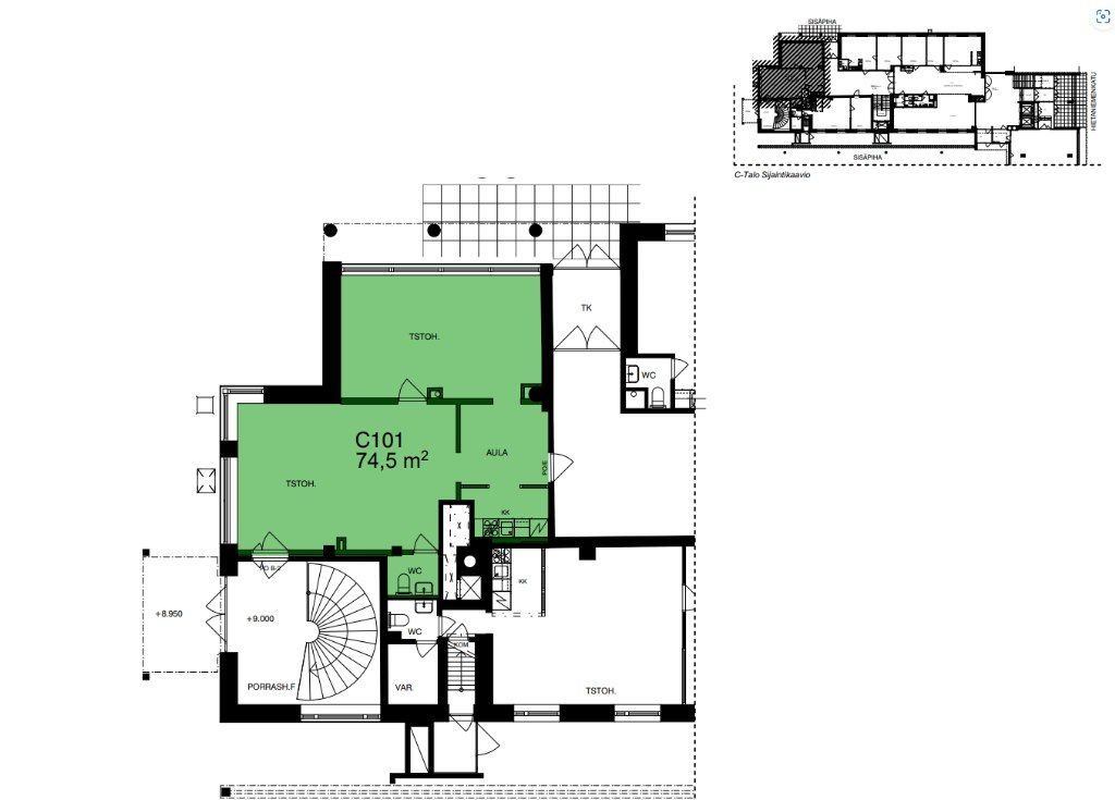
74 m2
Muuta
Vuokrattavana 74 m² toimistotila Helsingin Etu-Töölössä.
Tila sijaitsee ensimmäisessä kerroksessa Domus Academica -rakennuksessa, erinomaisella sijainnilla ja hyvien kulkuyhteyksien varrella.
Alueella on monipuoliset palvelut, mikä tekee sijainnista erityisen toimivan yrityksen tarpeisiin. Tila soveltuu joustavasti erilaisiin toimistokäyttöihin ja tarjoaa miellyttävän työympäristön.
Tervetuloa tutustumaan, varaathan välittäjältä oman esittelyaikasi. Voit kysyä meiltä myös muita sopivia vaihtoehtoja, kauttamme löydät juuri Teidän tarpeisiinne sopivat tilat.
Palvelumme on tilanhakijalle veloitukseton!
Tila sijaitsee ensimmäisessä kerroksessa Domus Academica -rakennuksessa, erinomaisella sijainnilla ja hyvien kulkuyhteyksien varrella.
Alueella on monipuoliset palvelut, mikä tekee sijainnista erityisen toimivan yrityksen tarpeisiin. Tila soveltuu joustavasti erilaisiin toimistokäyttöihin ja tarjoaa miellyttävän työympäristön.
Tervetuloa tutustumaan, varaathan välittäjältä oman esittelyaikasi. Voit kysyä meiltä myös muita sopivia vaihtoehtoja, kauttamme löydät juuri Teidän tarpeisiinne sopivat tilat.
Palvelumme on tilanhakijalle veloitukseton!
Vapautuu
Kysy
Kerros
1
Ota yhteyttä
Tuloskiinteistöt Oy
Rikhardinkatu 2 B 5, 00130 Helsinki
Näytä puhelinnumero
(09) 6841 620
Jorma Ryynänen
Commercial Real Estate Advisor LKV, LVV
Näytä puhelinnumero
+358 40 708 4064
Nina Meyke
Commercial Real Estate Advisor
Näytä puhelinnumero
+358 50 466 1519
Pyydä lisätietoa
