Vuokrataan toimistotilat - Helsinki
Huopalahdentie 24, Munkkivuori, 00350 Helsinki #10817294
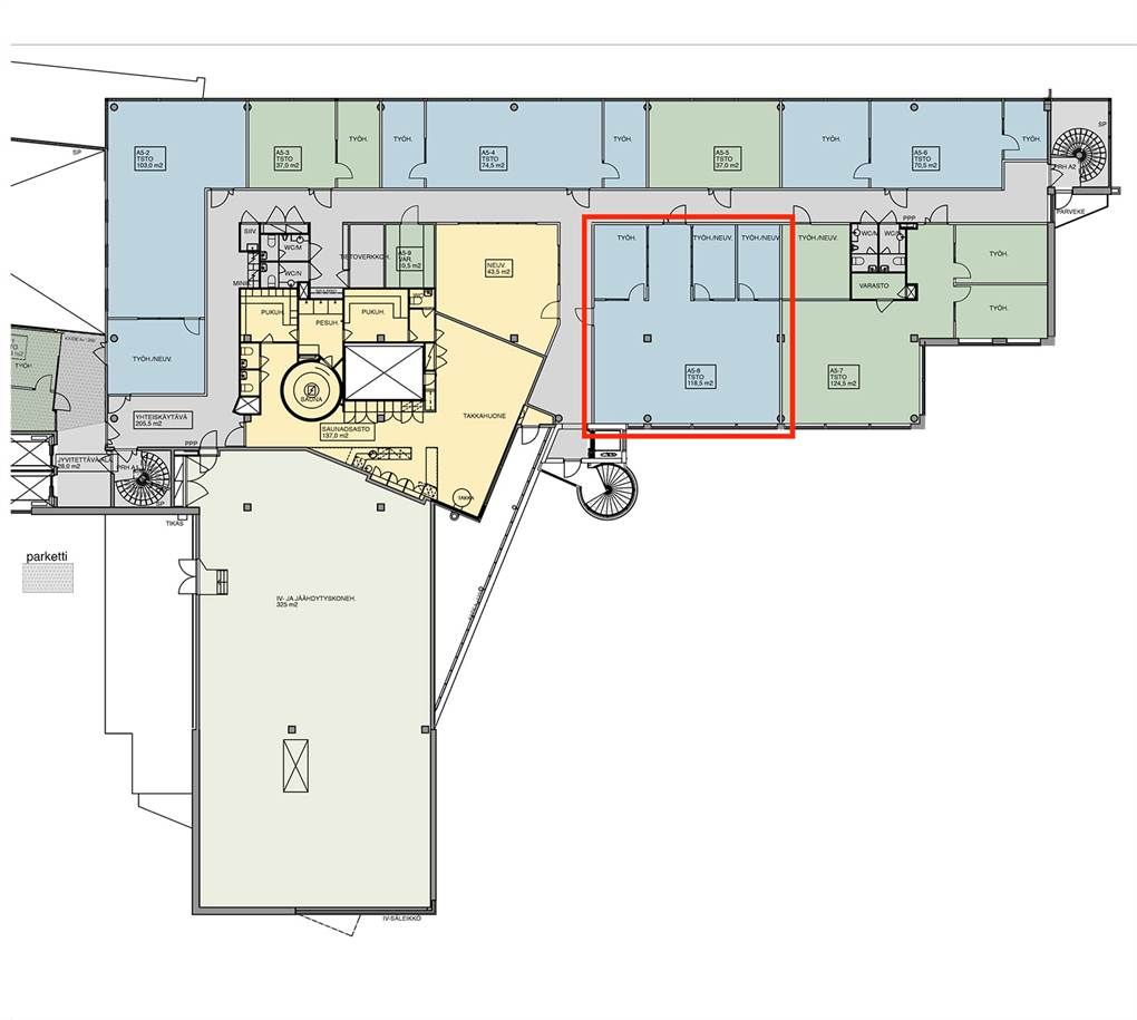
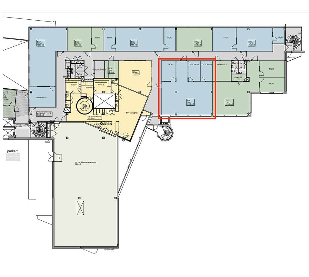
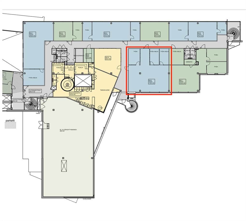
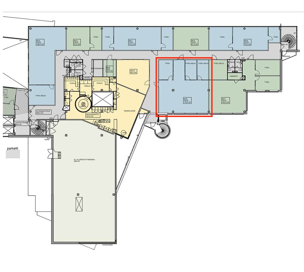
Tämä viidennessä kerroksessa sijaitseva toimistotila koostuu avotoimistosta sekä kolmesta erillisestä työhuoneesta, jotka soveltuvat sekä rauhalliseen työskentelyyn että neuvottelutiloiksi. Lisäksi tilan käyttäjillä on mahdollisuus järjestää tilaisuuksia samassa kerroksessa sijaitsevassa Huudin saunatilassa ja suuremmissa neuvotteluhuoneissa. Yhteiskäytössä olevat wc-tilat sijaitsevat kätevästi aivan toimiston vieressä.
Kahdesta osasta koostuva Huudi sijaitsee Munkkivuoren ostoskeskuksen, loistavien liikenneyhteyksien ja metsäisen luonnon tuntumassa. Yli 10.000 neliön kokonaisuus tarjoaa monipuolisesti erilaisia tiloja isommalle ja pienemmälle käyttäjälle laajoin palveluin. Kiinteistön palveluihin kuuluvat mm. näyttävä aula vastaanottoineen, lounasravintola, kuntosali, vuokrattavat edustus- ja kokoustilat sekä sauna. Julkiset kulkuyhteydet ovat hyvät ja tuleva Raide-Jokeri kulkee myös läheltä parantaen julkisia yhteyksiä entisestään. Pysäköintipaikat henkilöstölle löytyy pihalta tai hallista ja vieraillekin löytyy pihalta paikkoja.
Me Croisettella autamme teitä löytämään teille parhaat tilat! Olemme puolueettomia asiantuntijoita ja tunnemme toimitilamarkkinat, talot sekä tilat vankalla kokemuksella. Meillä on välityksessä kaikki toimitilat ja tiedämme niiden alustavat vuokratasot.
Tehtävämme on tehdä toimitilahaustanne onnistunut ja helppo. Saamme palkkiomme kiinteistönomistajalta, joten sinulle palvelumme on täysin maksuton.
Hissi
Croisette Real Estate Partner
Erottajankatu 5 A 6, 00130 Helsinki
Näytä puhelinnumero
+358 400 585 857
Croisette Vuokraus
Näytä puhelinnumero
+358400585857
