Vuokrataan toimistotilat - Helsinki
Kaisaniemenkatu 2B, Kluuvi, 00100 Helsinki #10817286
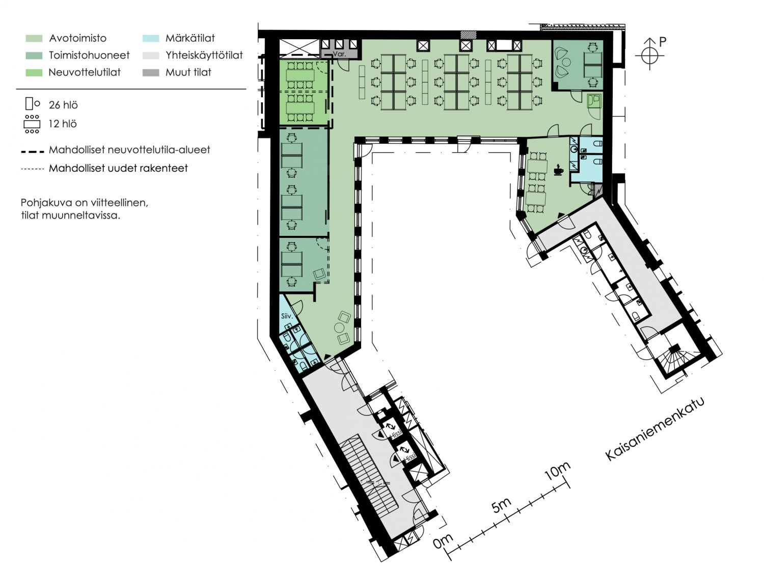
Tehokasta toimistotilaa, keskeisellä, mutta rauhallisella sijainnilla. Näkymät sisäpihalle. Kiinteistössä on tehty putkiremontti vuoden 2025 aikana ja tämän yhteydessä uusittiin samalla kaikkien tilojen wc-pinnat sekä kalusteet.
Osoite
Kaisaniemenkatu 2B, 00100 Helsinki
Tilatyyppi
Toimistotilaa
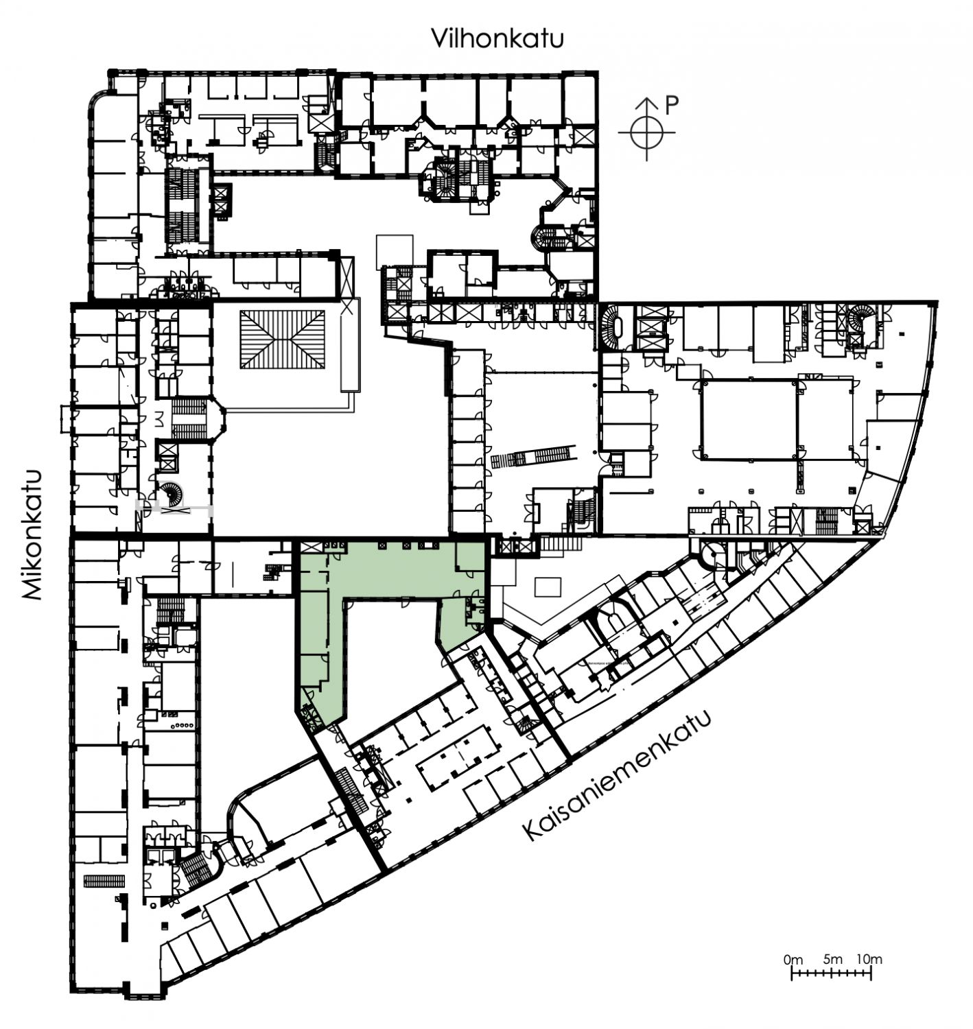
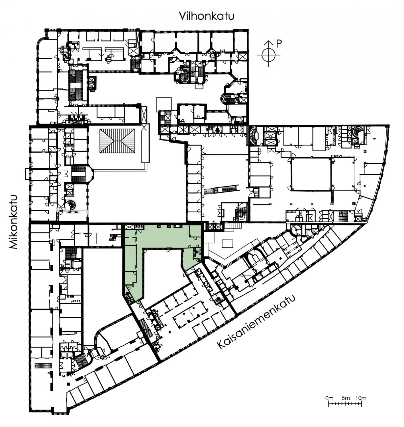
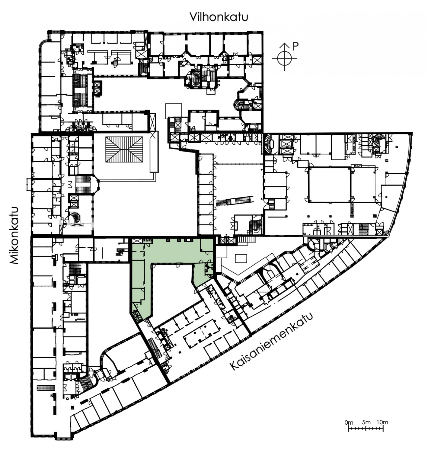
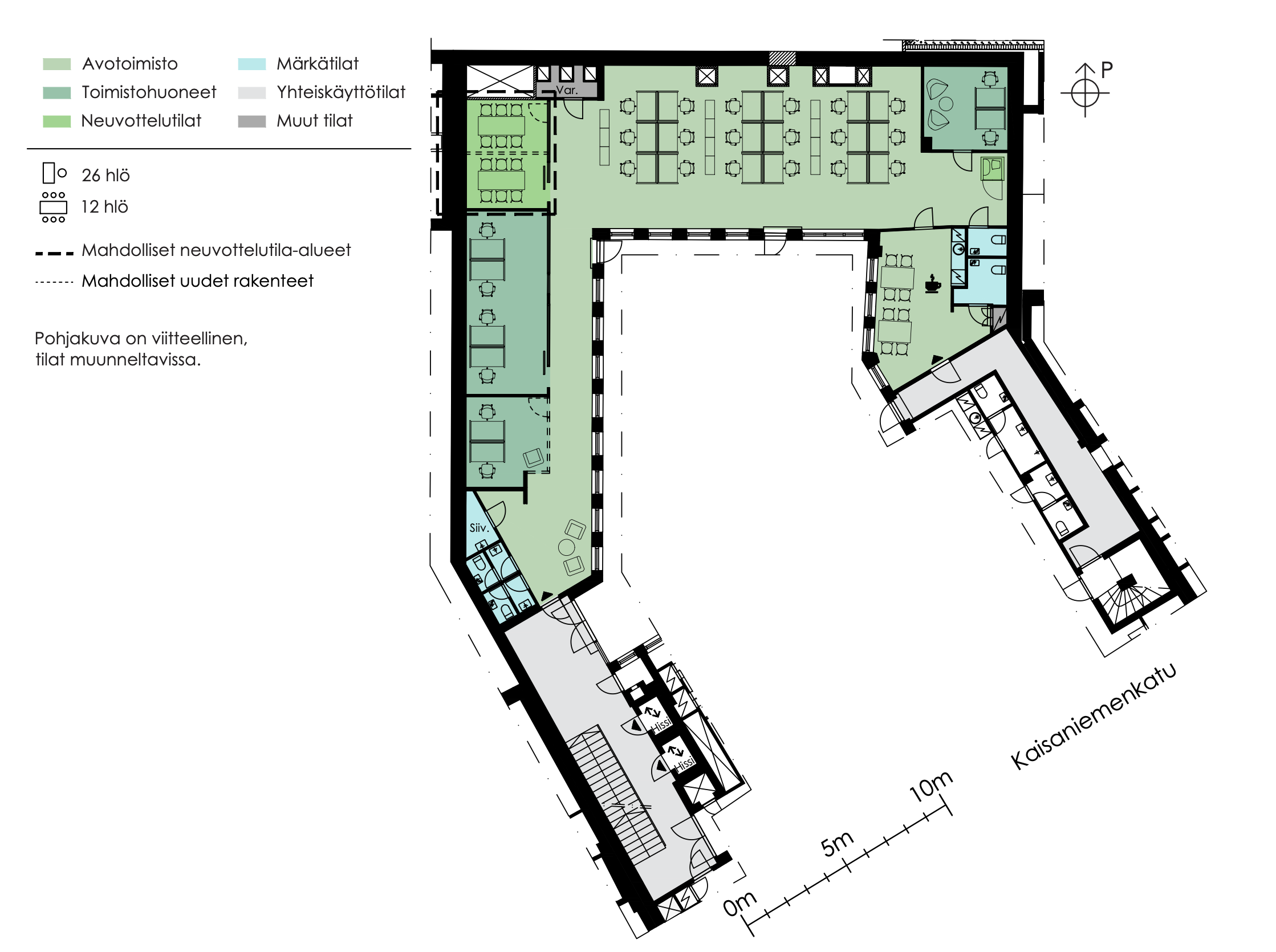
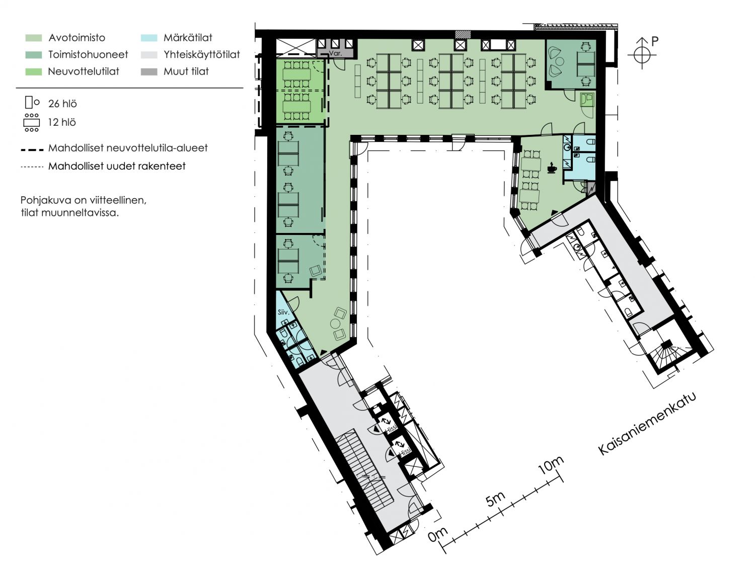
281 m2
Pohjapiirros
Kiinteistö
Valoisaa, monipuolista ja muuntelukelpoista toimitilaa Fennia-korttelissa, aivan Helsingin ydinkeskustassa.
Vuonna 1938 valmistunut Kaisaniemenkatu 2b on merkittävä osa Helsingin elokuvahistoriaa. Kiinteistö on toiminut valmistumisestaan saakka liiketalona, jonka ensimmäisten toimijoiden joukossa oli muun muassa elokuvateatteri Bio Metropol. Bio Metropol oli osa Helsingin vilkasta elokuvakulttuuria, ja sen historiaan mahtuu monia muutoksia eri vuosikymmenten aikana. Metropol tunnettiin myöhemmin nimillä Boston ja Formia ennen kuin siitä tuli Finnkinon Kinopalatsi.
Tänä päivänä Kaisaniemenkatu 2b on käytössä modernina toimisto- ja liikekiinteistönä. Kiinteistö sijaitsee Rautatientorin vieressä, Helsingin yliopiston metroaseman yläpuolella, minkä ansiosta kiinteistölle on erinomaiset julkisen liikenteen yhteydet ympäri pääkaupunkiseutua. Myös kaikki Helsingin keskustan ravintolat ja palvelut ovat kävelyetäisyydellä.
Kiinteistössä on toimistotilaa viidessä ylimmässä kerroksessa. Elokuvateatteri toimii kahdessa ensimmäisessä kerroksessa. Kiinteistön tilat ovat valoisat ja helposti muunneltavissa yrityksen tarpeiden mukaisesti. Kiinteistössä on tehty putkiremontti vuoden 2025 aikana ja tämän yhteydessä uusittiin samalla kaikkien tilojen wc-pinnat sekä kalusteet.
Kaikille Fennia-korttelin kiinteistöille on myönnetty BREEAM In-Use Excellent -tason ympäristösertifikaatti ja koko kortteli toimii 100 % päästöttömällä energialla, kuten tuulisähköllä ja uusiutuvalla kaukolämmöllä.
Vuonna 1938 valmistunut Kaisaniemenkatu 2b on merkittävä osa Helsingin elokuvahistoriaa. Kiinteistö on toiminut valmistumisestaan saakka liiketalona, jonka ensimmäisten toimijoiden joukossa oli muun muassa elokuvateatteri Bio Metropol. Bio Metropol oli osa Helsingin vilkasta elokuvakulttuuria, ja sen historiaan mahtuu monia muutoksia eri vuosikymmenten aikana. Metropol tunnettiin myöhemmin nimillä Boston ja Formia ennen kuin siitä tuli Finnkinon Kinopalatsi.
Tänä päivänä Kaisaniemenkatu 2b on käytössä modernina toimisto- ja liikekiinteistönä. Kiinteistö sijaitsee Rautatientorin vieressä, Helsingin yliopiston metroaseman yläpuolella, minkä ansiosta kiinteistölle on erinomaiset julkisen liikenteen yhteydet ympäri pääkaupunkiseutua. Myös kaikki Helsingin keskustan ravintolat ja palvelut ovat kävelyetäisyydellä.
Kiinteistössä on toimistotilaa viidessä ylimmässä kerroksessa. Elokuvateatteri toimii kahdessa ensimmäisessä kerroksessa. Kiinteistön tilat ovat valoisat ja helposti muunneltavissa yrityksen tarpeiden mukaisesti. Kiinteistössä on tehty putkiremontti vuoden 2025 aikana ja tämän yhteydessä uusittiin samalla kaikkien tilojen wc-pinnat sekä kalusteet.
Kaikille Fennia-korttelin kiinteistöille on myönnetty BREEAM In-Use Excellent -tason ympäristösertifikaatti ja koko kortteli toimii 100 % päästöttömällä energialla, kuten tuulisähköllä ja uusiutuvalla kaukolämmöllä.
Sijainti
Kiinteistön sijainti on loistava. Sen vieressä sijaitsevat rautatieasema juna- ja linja-autoyhteyksineen ja suoraan kiinteistön alapuolella on Helsingin yliopiston metroasema. Kiinteistöstä on lyhyt matka myös raitiovaunupysäkeille.
Pysäköinti
Autopaikat P-Eliel ja P-Kluuvi
Palvelut
Fennia-korttelissa on mittava määrä ravintoloita ja muita palveluita. Keskeinen sijainti ydinkeskustassa takaa sen, että kaikki kaupalliset ja yrityspalvelut sijaitsevat lyhyen kävelymatkan etäisyydellä. Työmatkapyöräilijöita varten löytyy pyörävarasto sekä sosiaalitilat.
Kulkuyhteydet
Lähimmälle bussipysäkille 300 m
Lähimmälle juna-asemalle 300 m
Lähimmälle metroasemalle 150 m
Lähimmälle raitiovaunupysäkille 100 m
Lentokentälle 30 min
Lähimmälle juna-asemalle 300 m
Lähimmälle metroasemalle 150 m
Lähimmälle raitiovaunupysäkille 100 m
Lentokentälle 30 min
Vapautuu
Kysy
Rakennusvuosi
1938
Kerros
3
Energiatehokkuusluokka
B2018 (liiketilat) C2018 (toimistot)
Ympäristöluokitus
BREEAM In-Use Excellent,GRESB Global Sector Leader 2025
Ota yhteyttä
Sponda Oy
Yrjönkatu 29C, 00100 Helsinki
Näytä puhelinnumero
020 43131
Janika Tikkakoski
Leasing Manager
Näytä puhelinnumero
+358 40 589 2752
Sponda Oy
https://www.sponda.fiPyydä lisätietoa
