Vuokrataan toimistotilat - Helsinki
Kansakoulukatu 3, Kamppi, 00100 Helsinki #10817282
Tyylikäs 267m² toimisto historiallisesti merkittävästä rakennuksesta Helsingin keskustasta.
Osoite
Kansakoulukatu 3, 00100 Helsinki
Tilatyyppi
Toimistotilaa
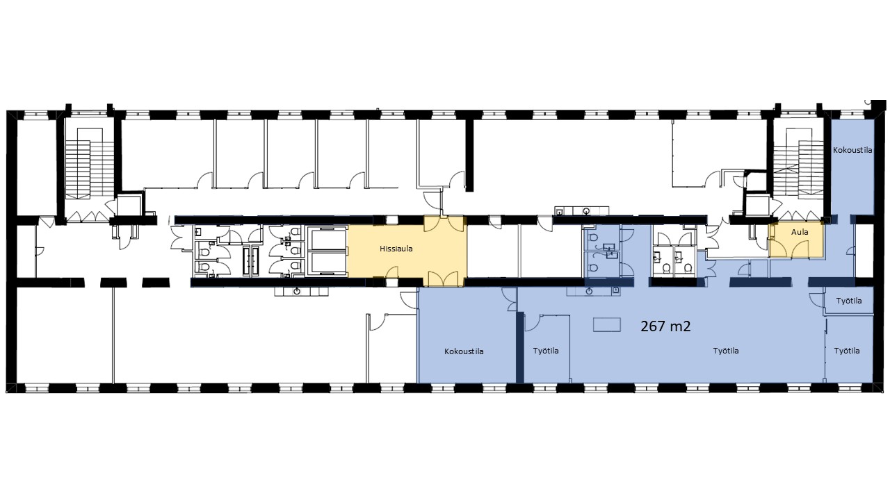
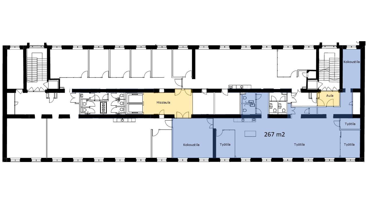
267 m2
Pohjapiirros
Kiinteistö
Elinvoimainen KOO3-innovaatiokeskus on uuden ajan toimistokonsepti, jonne tavoitellaan ensisijaisesti innovatiivisia ja ajan hermolla olevia yrityksiä.
Vastaanottoa hoitaa Innovation Home, jonka kautta on mahdollista hankkia lisäpalveluja ja tapahtumatilaa sekä joustavia neuvotteluhuoneita ja työpisteitä.
Helsingin kaupunki on alun perin rakentanut tämän kuusikerroksisen rakennuksen vuonna 1931 yleiseksi ja tyttöjen ammattikouluksi sekä kirjapainokouluksi.
Kuusikerroksisessa rakennuksessa oli leveä keskikäytävä, jonka molemmilla puolilla oli luokkahuoneita. Kadunpuoleinen julkisivu on muurattu Santamäen tiilillä ja ensimmäisen kerroksen ikkunoita päällystää kuvanveistäjä Gunnar Finnen kullatut, pyöreät reliefit eli kohokuvat.
1980-luvulla rakennus toimi väliaikaisesti taidemuseona Ateneumin peruskorjauksen ajan. Tämän jälkeen rakennus muutettiin kaupungin virastotaloksi ja sisäpihan kellarikerrokset rakennettiin.
Vastaanottoa hoitaa Innovation Home, jonka kautta on mahdollista hankkia lisäpalveluja ja tapahtumatilaa sekä joustavia neuvotteluhuoneita ja työpisteitä.
Helsingin kaupunki on alun perin rakentanut tämän kuusikerroksisen rakennuksen vuonna 1931 yleiseksi ja tyttöjen ammattikouluksi sekä kirjapainokouluksi.
Kuusikerroksisessa rakennuksessa oli leveä keskikäytävä, jonka molemmilla puolilla oli luokkahuoneita. Kadunpuoleinen julkisivu on muurattu Santamäen tiilillä ja ensimmäisen kerroksen ikkunoita päällystää kuvanveistäjä Gunnar Finnen kullatut, pyöreät reliefit eli kohokuvat.
1980-luvulla rakennus toimi väliaikaisesti taidemuseona Ateneumin peruskorjauksen ajan. Tämän jälkeen rakennus muutettiin kaupungin virastotaloksi ja sisäpihan kellarikerrokset rakennettiin.
Vapautuu
Heti
Rakennusvuosi
1931
Saneerausvuosi
2022
Kerros
3 / 7
Energiatehokkuusluokka
Ei lain edellyttämää energiatodistusta
Näkyvällä paikalla
Hissi
Ota yhteyttä
ScanReal Oy LKV
Opus Business Park
Hitsaajankatu 24
00810 Helsinki
info@scanreal.fi
Puh:
Näytä puhelinnumero
020 730 8830
Sopivat toimitilat yhdellä otolla!
Kartoitamme toimitilatarpeesi ja etsimme yrityksellesi parhaiten sopivat vapaat toimitilat. Koska vuokranantajat maksavat palvelumme, on tämä yrityksellesi veloituksetonta.
OTA YHTEYTTÄ - SOVI NÄYTTÖ!
Kaikki kohteemme eivät ole netissä, kerro tilatarpeesi niin kartoitamme vaihtoehdot.
Palvelumme on tilanhakijalle ilmainen
Pyydä lisätietoa
