Vuokrataan toimistotilat - Helsinki
Elimäenkatu 25-27, Vallila, 00510 Helsinki #10817251
Vuokrattavana 3. kerroksen modernia, valoisaa toimistotilaa.
Osoite
Elimäenkatu 25-27, 00510 Helsinki
Tilatyyppi
Toimistotilaa
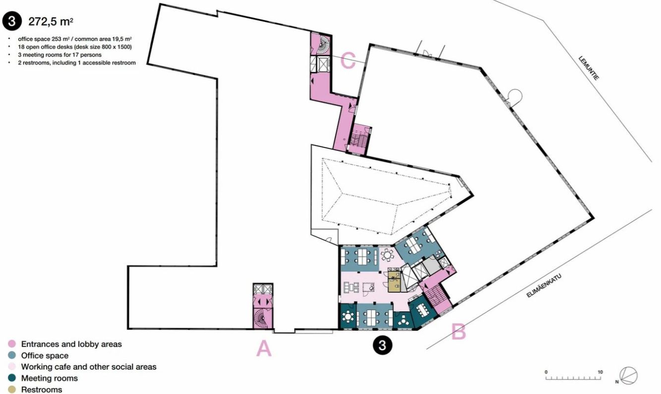
272,5 m2
Tilajako
Jaettavissa
Yhdistettävissä
Kiinteistö
Vuokrattavana 3. kerroksen modernia, valoisaa toimistotilaa. Tila on yhdistettävissä kerroksen muihin vapaisiin tiloihin. Toimisto räätälöidään vuokralaisen tarpeiden ja toivomusten mukaan.
Sijainti
Vallila, Helsinki
Palvelut
-Aulapalvelut
-Lounasravintola
-Saunaosasto
-Lounasravintola
-Saunaosasto
Kulkuyhteydet
-Raitiovaunu
-Bussi
-Oma auto
-Bussi
-Oma auto
Vapautuu
Heti
Kerros
3
Energiatehokkuusluokka
Ei lain edellyttämää energiatodistusta
Näkyvällä paikalla
Jaettavissa
Hissi
Ota yhteyttä
REALIUM OY LKV
Tammasaarenkatu 1, 00180 Helsinki
Vaihde:
Näytä puhelinnumero
010 326 346
Tuomo Mäkelä
tuomo.makela@realium.fi
p.
Näytä puhelinnumero
044 050 1158
Joel Keto
joel.keto@realium.fi
p.
Näytä puhelinnumero
045 317 0330
KAIKKI TILAVAIHTOEHDOT KERRALLA!
SOITA - MEILAA JA TILAA NÄYTTÖ!
Ilmainen palvelu tilanhakijoille.
Kartoitamme parhaat tilavaihtoehdot.
Kaikki kohteet eivät ole netissä.
Pyydä lisätietoa
