Vuokrataan toimistotilat - Helsinki
Kaisaniemenkatu 1, Kaisaniemi, 00100 Helsinki #10817229
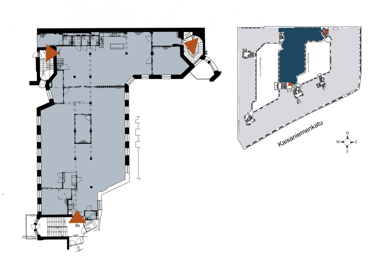
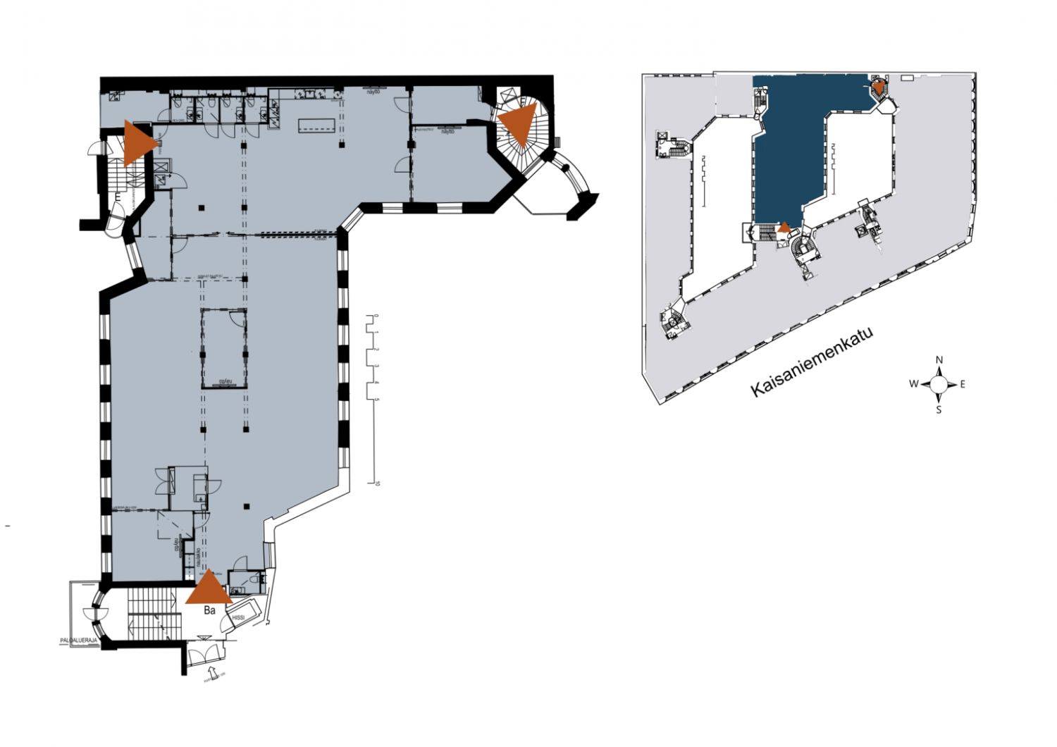
Laadukas toimistotila muuntojoustavalla pohjaratkaisulla. Tila koostuu avokonttorista sekä työ- ja neuvottelutiloista. Tyylikäs keittiö ja omat wc-tilat sujuvoittavat päivän kulkua. Mikonkatu 13-Kaisaniemenkatu 1 on yksi Helsingin keskustan tunnetuimmista rakennuksista. Tämä talo sijaitsee paraatipaikalla laajan palvelutarjonnan ympäröimänä päärautatieaseman tuntumassa. Laadukkaat ja muuntojoustavat tilat taipuvat monenlaisten yritysten tarpeisiin. Kiinteistöllä on moderni ja tilava pyörävarasto, jonka yhteydestä löytyvät myös uudet pukeutumis- ja pesutilat.
Me Croisettella autamme teitä löytämään teille parhaat tilat! Olemme puolueettomia asiantuntijoita ja tunnemme toimitilamarkkinat, talot sekä tilat vankalla kokemuksella. Meillä on välityksessä kaikki toimitilat ja tiedämme niiden alustavat vuokratasot.
Tehtävämme on tehdä toimitilahaustanne onnistunut ja helppo. Saamme palkkiomme kiinteistönomistajalta, joten sinulle palvelumme on täysin maksuton.
Hissi
Croisette Real Estate Partner
Erottajankatu 5 A 6, 00130 Helsinki
Näytä puhelinnumero
+358 400 585 857
Croisette Vuokraus
Näytä puhelinnumero
+358400585857
