Vuokrataan toimistotilat, liiketilat, tuotantotilat, varastotilat - Lempäälä
Kaipionsivu 3, 37570 Lempäälä #10817227
Vuokrattavana kesällä 2025 vapautuva 194m2 5-metriä korkean nosto-ovellisen varastotilan ja toimistotilan yhdistelmä Lempäälästä. Hyvien yhteyksien varrelta.
Osoite
Kaipionsivu 3, 37570 Lempäälä
Tilatyyppi
Toimistotilaa
86,5 m2
Liiketilaa
194 m2
Tuotantotilaa
107,5 m2
Varastotilaa
107,5 m2
Yhteensä
194 m2
Kiinteistö
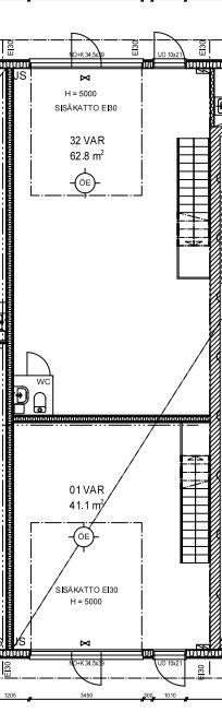
Tämä tila soveltuu monipuoliseen käyttöön ja se muodostuu kahdesta yhdistetystä tilasta. Liiketila 1 on kooltaan 77,1m2 ja liiketila 32 on neliöiltään 117,2m2 suuruinen, yhdistettynä ne muodostavat 194m2 kokonaisuuden. Tilojen 1 kerrokset on toteutettu tällä hetkellä esittelyyn, varastointiin ja työskentelyyn soveltuvaksi tilaksi (yhteensä 107 m2) ja yläkerrasta löytyy toimistokäyttöön soveltuvaa tilaa mikä on jaettu kahdeksi huoneeksi. (86m2) Tiloista löytyy myös oma minikeittiö, suihku ja 2 kappaletta wc-tiloja. Tiloihin kulku on mahdollista kiinteistön molemmista päädyistä. Lastaamista ja purkamista helpottaa 2 kappaletta isoja sähköisiä nosto-ovia.
Tilat on kattavasti varusteltu ja niistä löytyy mm.
- Varaston vapaakorkeus n. 5 metriä
- Internet-yhteys
- Koneellinen poistoilmanvaihto
- Sähköinen nosto-ovi
- Epoksipinnoitettu lattia 1 kerroksen tiloista
- Wc-tilat ja suihku
- Voimavirta pistokkeet
- Koodilukko
- Piha-alueen kameravalvonta
- Akustiikka levyt katossa
- Parannellut eristykset
Tilat on kattavasti varusteltu ja niistä löytyy mm.
- Varaston vapaakorkeus n. 5 metriä
- Internet-yhteys
- Koneellinen poistoilmanvaihto
- Sähköinen nosto-ovi
- Epoksipinnoitettu lattia 1 kerroksen tiloista
- Wc-tilat ja suihku
- Voimavirta pistokkeet
- Koodilukko
- Piha-alueen kameravalvonta
- Akustiikka levyt katossa
- Parannellut eristykset
Sijainti
Kohde sijaitsee loistavien kulkuyhteyksien varressa aivan Helsinki - Tampere moottoritien välittömässä läheisyydessä. Lisäksi kävelymatkan päästä löytyy myös linja-autopysäkit.
Pysäköinti
Tilan käyttöön on varattu 4 kpl pysäköintipaikkoja
Palvelut
Kiinteistön lähialueelta löytyy kattavasti erikois- ja päivittäistavarakaupan palveluita. Ideaparkkiin on vain 400 metrin matka.
Vapautuu
01.06.2025
Rakennusvuosi
2018
Kerros
1 / 2
Katutasossa
Näkyvällä paikalla
Ota yhteyttä
MAP Tilat Oy
Mika Hermaala
mika.hermaala@maptilat.fi
Näytä puhelinnumero
040 192 1313
Energiakuja 3, 00180 Helsinki
Maarit Helander
maarit.helander@maptilat.fi
Näytä puhelinnumero
044 593 8661
Pyydä lisätietoa
