Vuokrataan toimistotilat - Helsinki
Runeberginkatu 5, Kamppi, 00100 Helsinki #10817141
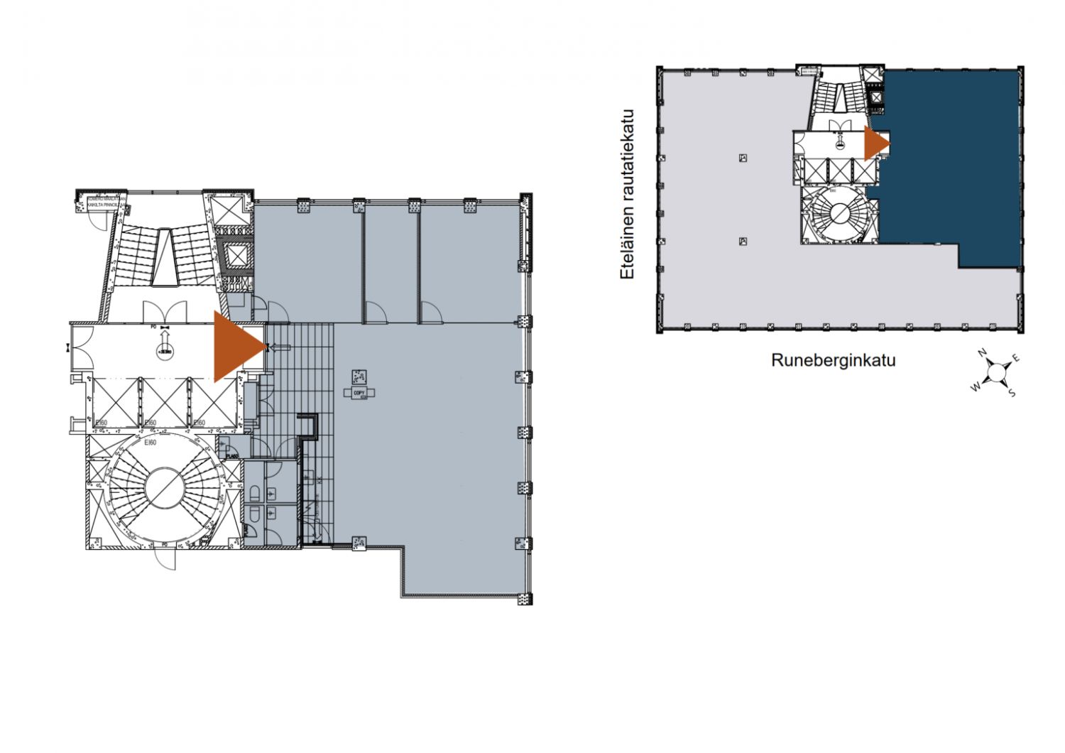
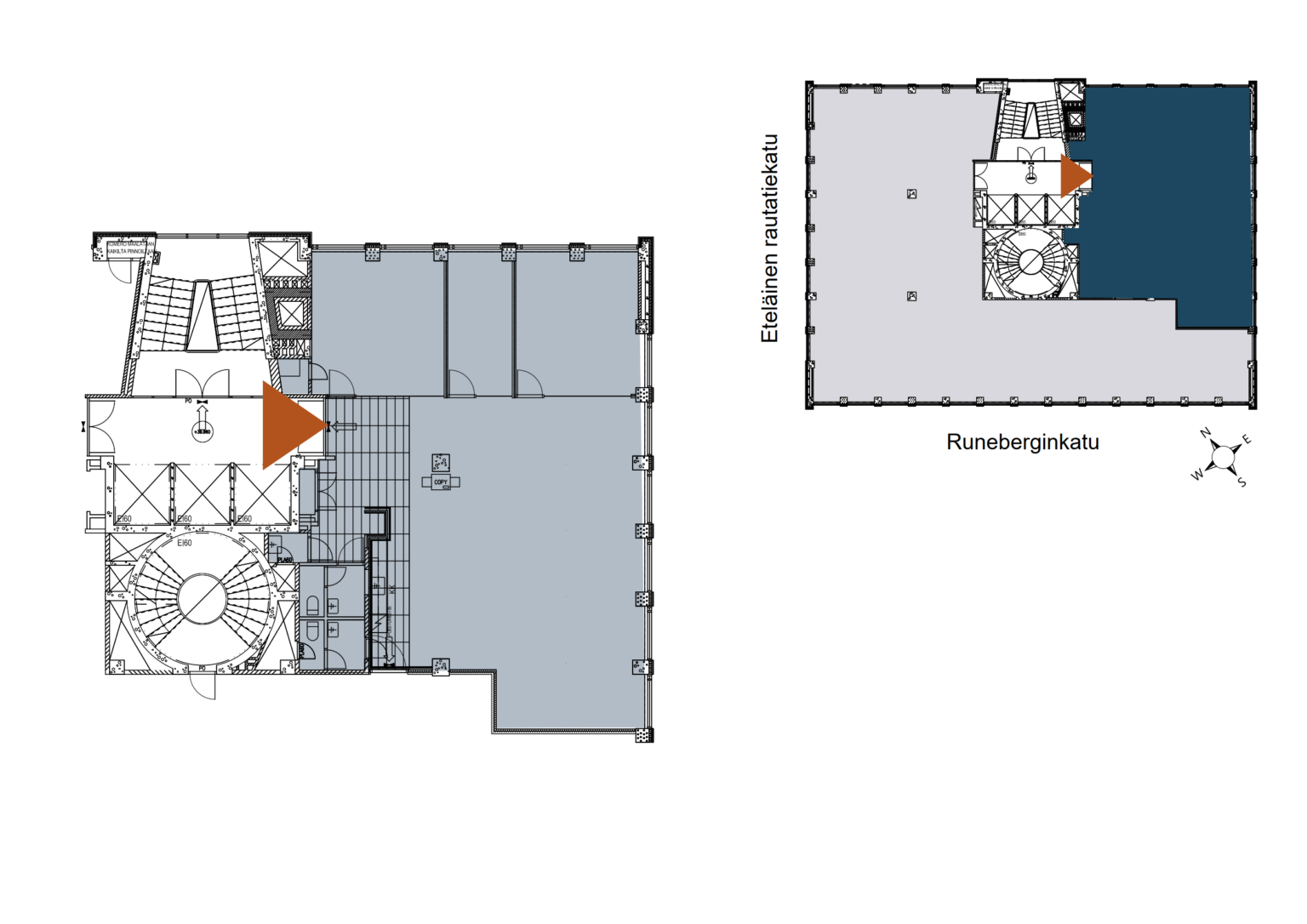
Upea yhdeksännen kerroksen toimisto Helsingin ydinkeskustassa. Tämä tila koostuu avokonttorista, kahdesta työhuoneesta sekä neuvottelutilasta. Lisäksi tilassa on oma keittiö sekä wc:t.
Autotalokorttelin vuonna 1958 valmistunut Runskivuori-toimistotalo sijaitsee erinomaisella paikalla Kampissa, Helsingin ydinkeskustassa. Kiinteistön julkisivua ja yleisiä tiloja on kunnostettu talon henkeä ja arkkitehtuuria kunnioittaen. Nyt kiinteistö tarjoaa laadukasta toimitilaa yhdessätoista kerroksessa. Toimistokerroksista on suora hissiyhteys autohalliin, ja pyöräilijöitä palvelevat pyöräparkki sekä suihkutilat.
Me Croisettella autamme teitä löytämään teille parhaat tilat! Olemme puolueettomia asiantuntijoita ja tunnemme toimitilamarkkinat, talot sekä tilat vankalla kokemuksella. Meillä on välityksessä kaikki toimitilat ja tiedämme niiden alustavat vuokratasot.
Tehtävämme on tehdä toimitilahaustanne onnistunut ja helppo. Saamme palkkiomme kiinteistönomistajalta, joten sinulle palvelumme on täysin maksuton.
Hissi
Croisette Real Estate Partner
Erottajankatu 5 A 6, 00130 Helsinki
Näytä puhelinnumero
+358 400 585 857
Croisette Vuokraus
Näytä puhelinnumero
+358400585857
