Vuokrataan toimistotilat - Tampere
Hatanpään Valtatie 11, Ratina, 33100 Tampere #10816961
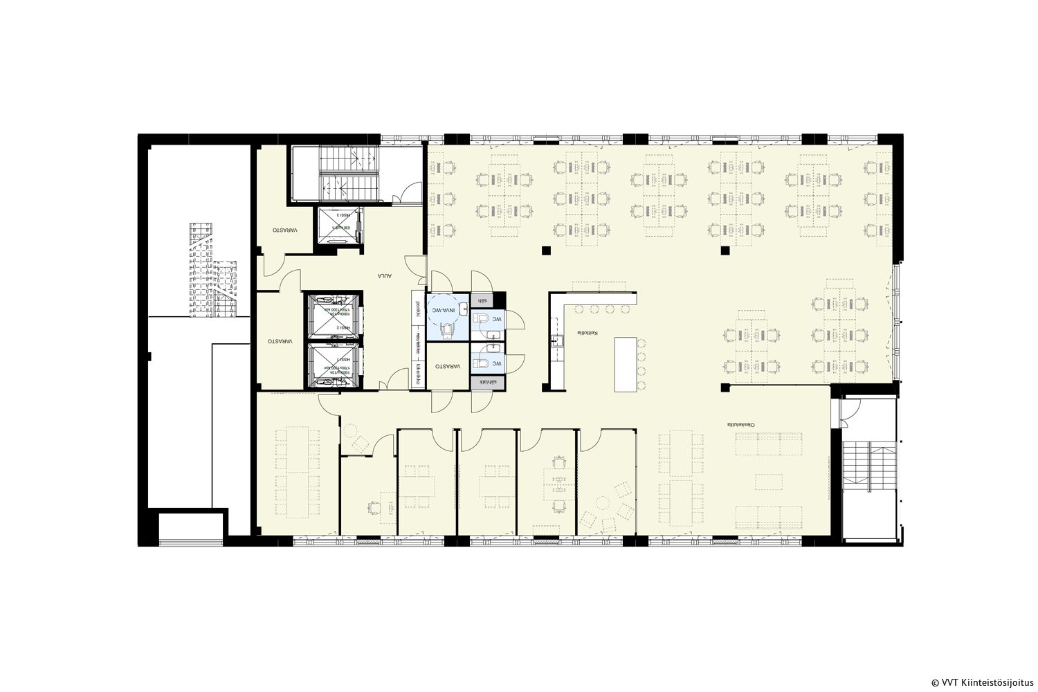
Vuokrattavissa 7. kerroksesta toimisto noin 30-40 henkilölle. Toimistoista löytyy tällä hetkellä avoalueita, työ- ja neuvotteluhuoneita, keittiö ja wc-tilat, mutta tila on tarvittaessa varsin muuntojoustava. Tilasuunnittelu yhdessä tulevan käyttäjän kanssa.
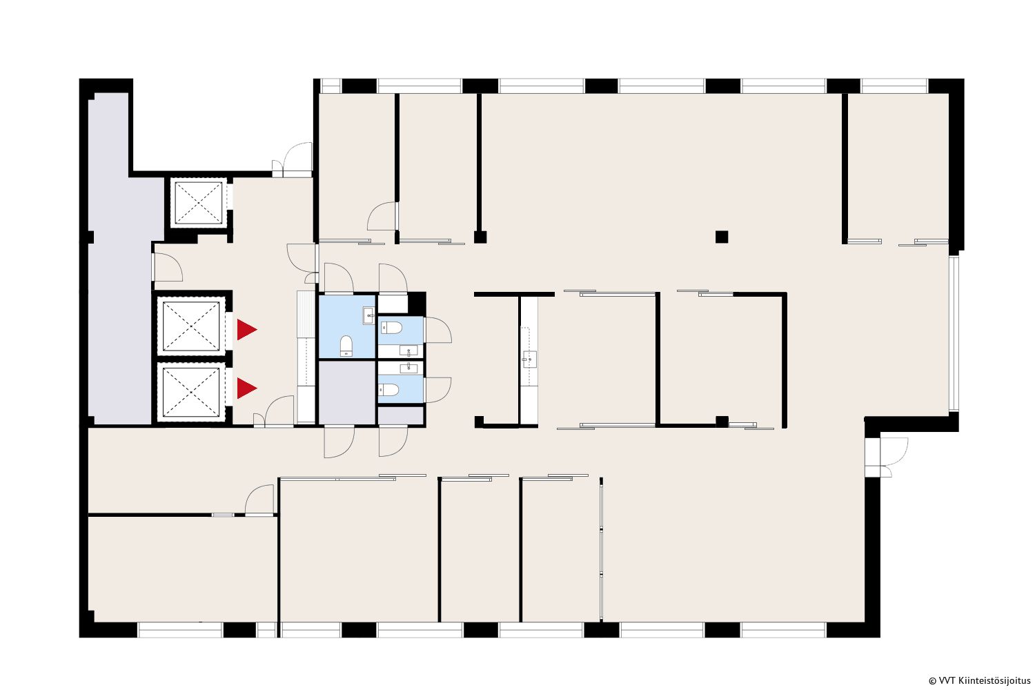
Tilailmoituksessa käytetyt kuvat ovat mallikuvia muista tiloista sekä havainnekuvia siitä, millaiseksi tilat on mahdollista muokata. Liitteenä tilan nykypohja sekä esimerkkipohja mahdollisesta tilasovituksesta.
Ratinankaari kiinteistö sijaitsee aivan Ratinan kauppakeskuksen vieressä, joten kaikki keskustan palvelut ovat käden ulottuvilla. LEED Gold -ympäristösertifioidun rakennuksen laadukkaat palvelut, kuten aulapalvelut, viihtyisä lounasravintola ja tarvittaessa vuokrattavat neuvottelutilat, tekevät työympäristöstäsi entistä sujuvamman ja tehokkaamman.
VVT Kiinteistösijoitus Oy
Eteläesplanadi 8, 00130 Helsinki
Juho Ihanamäki
Näytä puhelinnumero
040 529 3212
Jan Olin
Näytä puhelinnumero
050 420 1170
VVT Kiinteistösijoitus on suomalaisten institutionaalisten sijoittajien omistama vastuullinen kiinteistösijoitusyhtiö, joka tarjoaa vuokralle kaiken tyyppisiä toimitiloja eri puolilta Suomea.
http://vvtkiinteistosijoitus.fi