Vuokrataan toimistotilat, liiketilat, näyttelytilat - Turku
Hämeenkatu 26 B, 20700 Turku #10816940
Siistiä toimisto-/liiketilaa *Oma kiinteistö *Sijainti *Parkkipaikkoja *Jokimaisemat
Osoite
Hämeenkatu 26 B, 20700 Turku
Tilatyyppi
Toimistotilaa
340 m2
Liiketilaa
340 m2
Näyttelytilaa
340 m2
Yhteensä
340 m2
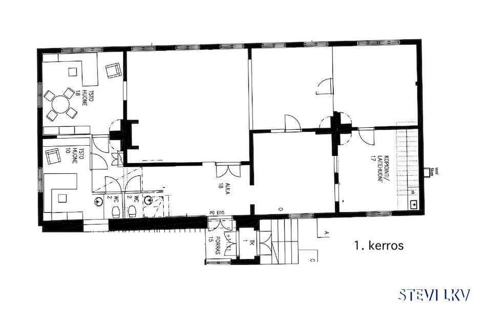
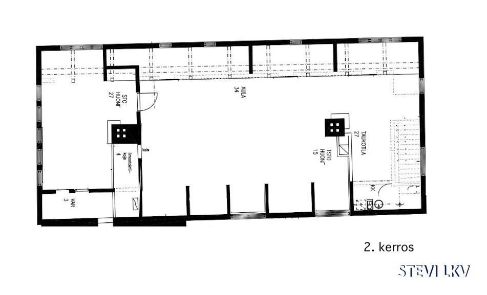
Pohjapiirros
Vuokra
3900 €/kk + alv
Vuokraan sisältyy vesi, lämpö
Kiinteistö
Uniikit tilat 1832 rakennetussa ja tyylikkäästi uusitut tilat seuraavalle toimijalle.
Tiloissa on ollut IT-toimijoita, sopii hyvin toimistokäyttöön.
Loisto SIJAINTI, näkyvä paikka ja tiloista upeat maisemat Jokirantaan ja Rettigin palatsin suuntaan.
Avotilaa, yksittäisiä huoneita ja neukkareita. Korkeita huoneita. Lisäksi keittiöt, suihku & wc:t.
Oma kokonainen talo. Uusittu ja tyylikästä tilaa.
Tiloissa on koneellinen ilmanvaihto ja viilennykseen on ilmalämpöpumppuja . Paljon ikkunoita & lisäksi kattoikkunoita.
Heti vapaana (kerro koska tila tarve alkaa).
Kokonaisuudessaan tiloja noin 340m2.
6-8 autolle on mahdollista saada hallipaikat, lisäksi Toriparkki on lähellä.
Kiinteistöön tulee valokuitu, ja keskusta-alueen 5G-verkko toimii moitteettomasti, eikä kuitua välttämättä tarvitse lainkaan ottaa käyttöön.
Linja-autot menevät talon edestä, Kauppatorille 400m Kirjastosiltaa pitkin. Loistava saavutettavuus julkisilla ja henkilöautoilla. Keskustan lounaspaikat ovat vieressä.
Vuokraa 3900€/kk + alv.
Lämmitys ja vesi sisältyvät vuokraan.
Sähkö on kulutuksen mukaan.
Vuokraan lisätään alv.
Vuokranantaja vastaa kiinteistä osista ja rakennus on remontoitu kauttaaltaan vastaamaan tämän päivän tarpeita.
Ole yhteydessä, kysy lisää ja käydään porukassa katsomassa.
Toimitila terveisin,
Stefan Virtanen
Kiinteistönvälittäjä | LKV | LVV | KTM | Yrittäjä
stefan@stevilkv.com | 0400 999 900
www.stevilkv.com
Tiloissa on ollut IT-toimijoita, sopii hyvin toimistokäyttöön.
Loisto SIJAINTI, näkyvä paikka ja tiloista upeat maisemat Jokirantaan ja Rettigin palatsin suuntaan.
Avotilaa, yksittäisiä huoneita ja neukkareita. Korkeita huoneita. Lisäksi keittiöt, suihku & wc:t.
Oma kokonainen talo. Uusittu ja tyylikästä tilaa.
Tiloissa on koneellinen ilmanvaihto ja viilennykseen on ilmalämpöpumppuja . Paljon ikkunoita & lisäksi kattoikkunoita.
Heti vapaana (kerro koska tila tarve alkaa).
Kokonaisuudessaan tiloja noin 340m2.
6-8 autolle on mahdollista saada hallipaikat, lisäksi Toriparkki on lähellä.
Kiinteistöön tulee valokuitu, ja keskusta-alueen 5G-verkko toimii moitteettomasti, eikä kuitua välttämättä tarvitse lainkaan ottaa käyttöön.
Linja-autot menevät talon edestä, Kauppatorille 400m Kirjastosiltaa pitkin. Loistava saavutettavuus julkisilla ja henkilöautoilla. Keskustan lounaspaikat ovat vieressä.
Vuokraa 3900€/kk + alv.
Lämmitys ja vesi sisältyvät vuokraan.
Sähkö on kulutuksen mukaan.
Vuokraan lisätään alv.
Vuokranantaja vastaa kiinteistä osista ja rakennus on remontoitu kauttaaltaan vastaamaan tämän päivän tarpeita.
Ole yhteydessä, kysy lisää ja käydään porukassa katsomassa.
Toimitila terveisin,
Stefan Virtanen
Kiinteistönvälittäjä | LKV | LVV | KTM | Yrittäjä
stefan@stevilkv.com | 0400 999 900
www.stevilkv.com
Sijainti
Keskusta, Jokiranta. Kauppatori 400m
Ympäristö
Liiketoimintaa & asutusta
Pysäköinti
Parkkihallipaikkoja saatavilla ja lisäksi Toriparkki
Palvelut
Keskustan palvelut
Kulkuyhteydet
Loistavat. Linja-autot kulkevat edestä & pysäkit lähellä. Hyvä saavutettavuus
Muuta
Kysy lisää Stevi puh. 0400 9999 00 / stefan@stevilkv.com
Vapautuu
Heti
Kerros
1 / 2
Katutasossa
Näkyvällä paikalla
Ota yhteyttä
Stevi LKV | Kiinteistönvälitys & Vuokravälitys
Stefan Virtanen
LKV, KTM, Yrittäjä
Näytä puhelinnumero
0400 999 900
stefan@stevilkv.com
Reipasta palvelua ja hyvää konsultointia.
Soita tai laita spostia ja kerro tila tarpeesi; tämä on ilmainen palvelu tilaa etsivälle (vuokranantaja maksaa palkkion).
Toimitilojen myynti & vuokraus.
Pyydä lisätietoa
