Vuokrataan liiketilat - Jyväskylä
Kauppakeskus Tawast, Kauppakatu 33, Keskusta, 40100 Jyväskylä #10816885
Huippupaikalla sijaitseva liiketila Jyväskylän kaupallisessa ytimessä
Osoite
Kauppakatu 33, 40100 Jyväskylä
Tilatyyppi
Liiketilaa
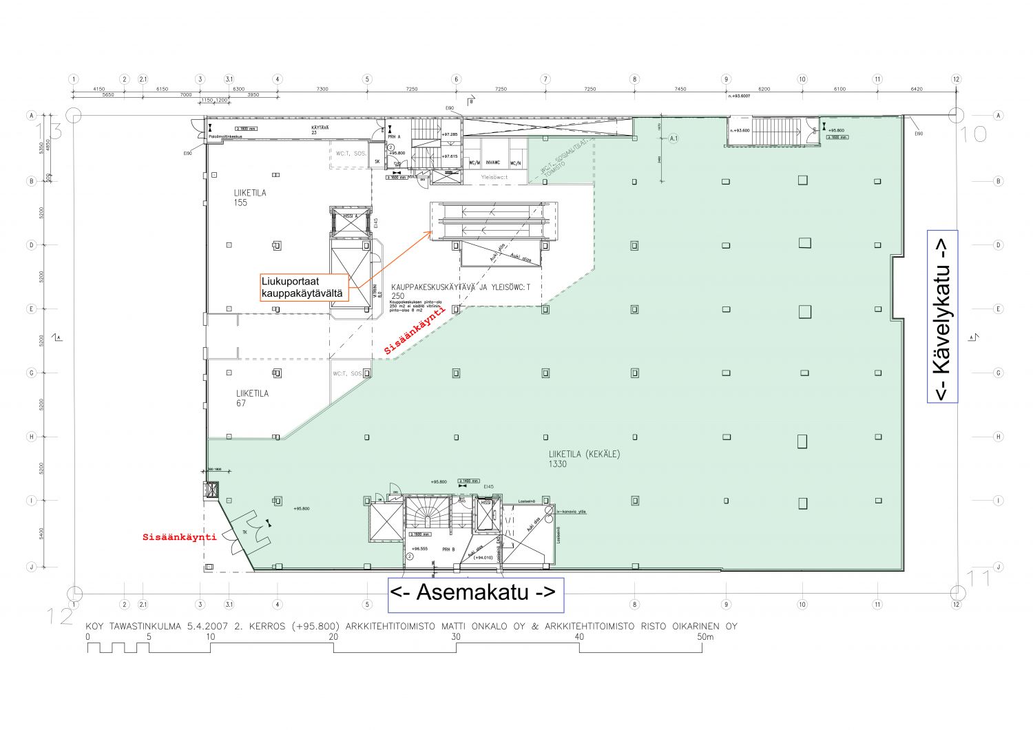
1330 m2
Muuta
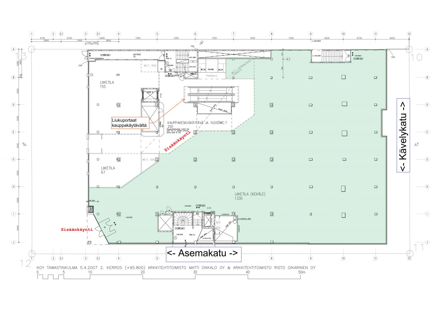
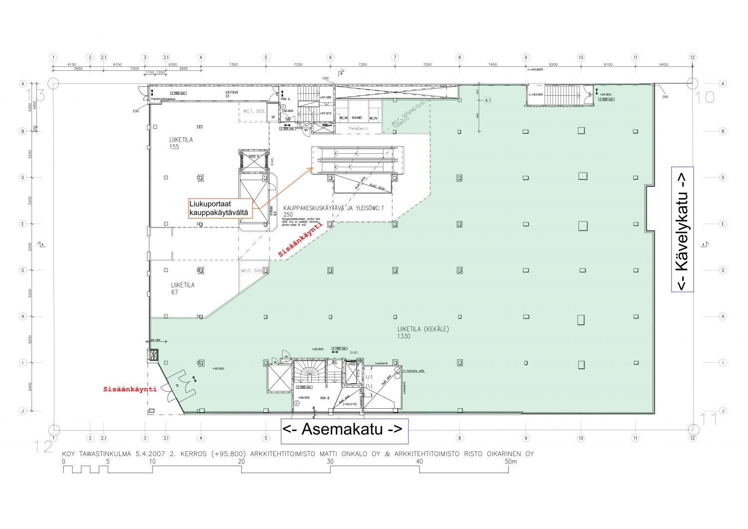
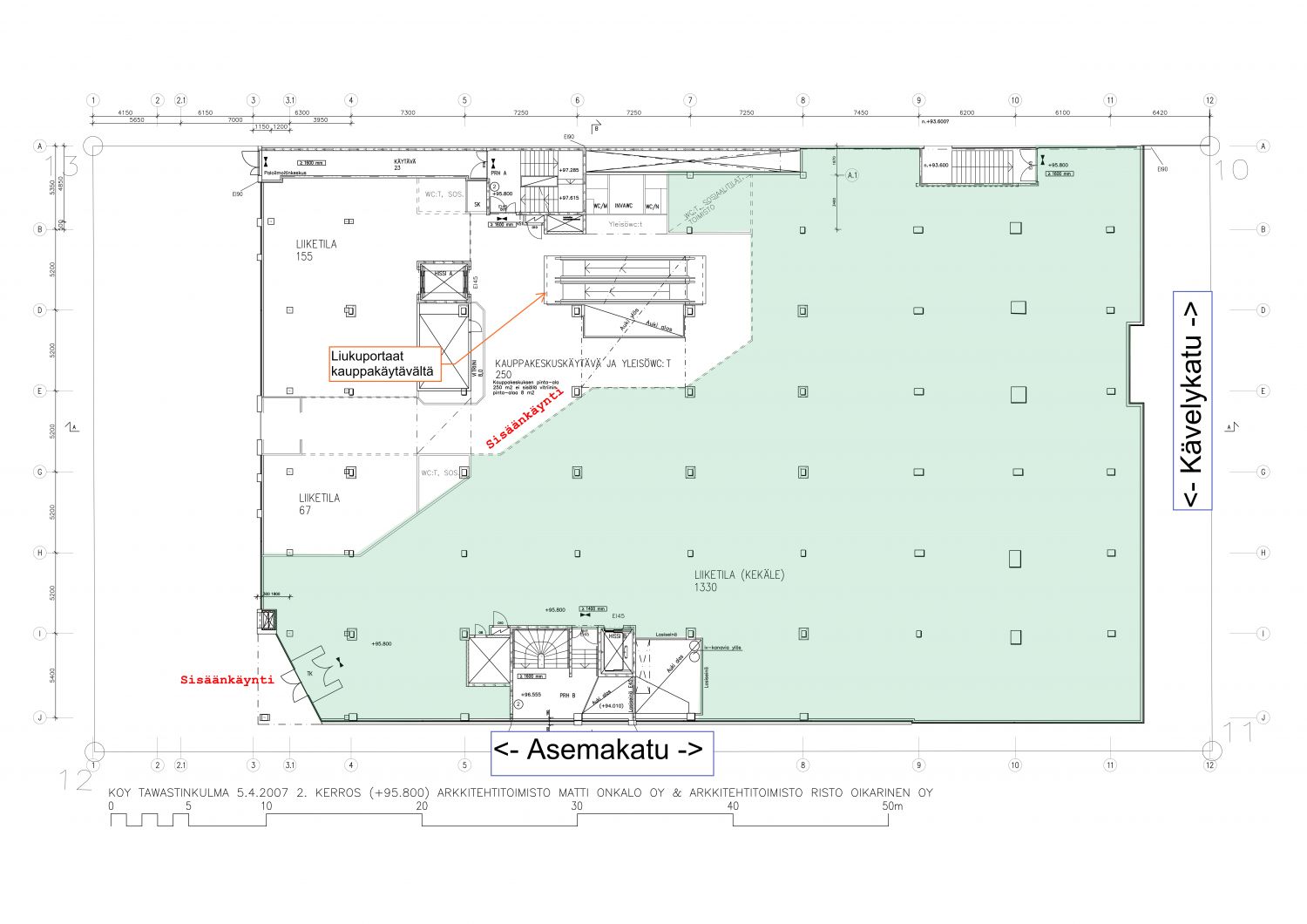
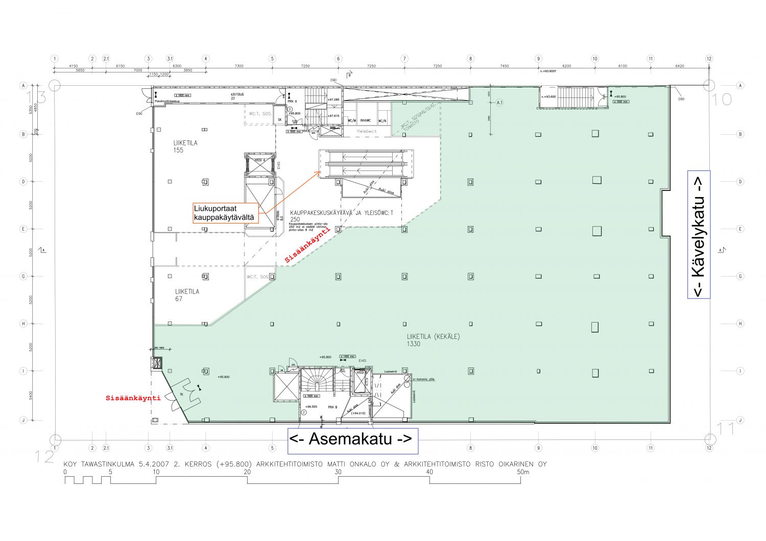
Loppukesästä 2025 vapautuu liiketila Kauppakeskus Tawastista - tilaan on kaksi sisäänkäyntiä. Kauppakeskuksen sisältä sekä oma näyttävä liukuovin varustettu sisäänkäynti Asemakadun ja Kauppalaispihan kulmasta.
Tila on avoin ja helposti moneen liiketoimintaan hyödynnettävä. Valmiit sosiaali- ja taukotilat sekä sisäinen hissiyhteys henkilökunnalle kiinteistön autohallista. Liiketilaa palvelee koneellinen ilmanvaihto jonka lisäksi tilassa erillisjäähdytys.
Tilaa kiertää suuret ikkunat joista näyttävin julkisivu Kävelykadun suuntaan.
Tila sijaitsee Asemakadun puolelta katutasossa ja Kävelykadun puolelta toisessa kerroksessa.
Ota yhteyttä näyttöä varten!
Tila on avoin ja helposti moneen liiketoimintaan hyödynnettävä. Valmiit sosiaali- ja taukotilat sekä sisäinen hissiyhteys henkilökunnalle kiinteistön autohallista. Liiketilaa palvelee koneellinen ilmanvaihto jonka lisäksi tilassa erillisjäähdytys.
Tilaa kiertää suuret ikkunat joista näyttävin julkisivu Kävelykadun suuntaan.
Tila sijaitsee Asemakadun puolelta katutasossa ja Kävelykadun puolelta toisessa kerroksessa.
Ota yhteyttä näyttöä varten!
Vapautuu
01.09.2025
Ota yhteyttä
Infonia Oy
Kauppakatu 18 A, 40100 Jyväskylä
Näytä puhelinnumero
+358 407579731
Mikko Hirvi
Näytä puhelinnumero
+358 407579731
Pyydä lisätietoa
