Vuokrataan toimistotilat - Helsinki
Kasarmikatu 23 a, Keskusta, 00130 Helsinki #10816884
Rakennuksen kuvaus:
Kasarmikatu 23 on kaunis arvokiinteistö, Esplanadin välittömässä läheisyydessä. Kiinteistön julkisivu on uniikki, fasadi on rakennettu vuonna 1908. Kiinteistön katutasossa sijaitsee ravintola Gillet, sisäpihan baareineen. Piharakennukseen on rakennettu myös kokoustilat. Alueella hyvät ja monipuoliset palvelut, pysäköintimahdollisuus on Q-Park Kasarmitori, johon on sisäänajo Fabianinkadulta.
Tilan kuvaus:
Täysin remontoitu ja muuttovalmis toimisto, joka tarvittaessa vuokrattavissa kalustettunakin. Tilassa on oma upea sauna!
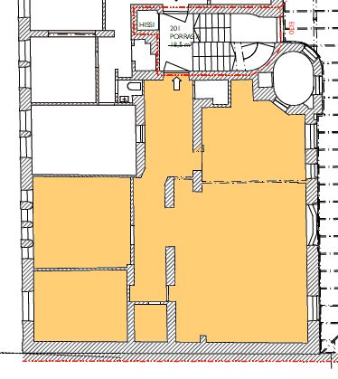
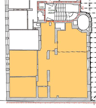
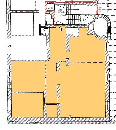
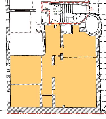
Kerros: 2
Osoite
Kasarmikatu 23 a, 00130 Helsinki
Tilatyyppi
Toimistotilaa
160 m2
Vapautuu
Heti vapaa
Ota yhteyttä
Pyydä lisätietoa
