Vuokrataan toimistotilat - Helsinki
Bulevardi 7, Kamppi, keskusta, 00120 Helsinki #10816880
Rakennuksen kuvaus:
Tasokkaasti saneerattu Bulevardi 7 on vuonna 1939 valmistunut Oiva Kallion suunnittelema funktionalismia edustava kiinteistö. Kiinteistö on kaksiosainen, ja Bulevardin sekä sisäpihan puoleiset osat yhdistyvät toisiinsa alempien kerrosten kautta. Kolmannesta kerroksesta alkaen talot ovat irrallisia. Kiinteistö sijaitsee loistavalla sijainnilla Bulevardin alkupäässä, vain lyhyen kävelymatkan päässä rautatieasemalta. Ratikkalinja kulkee suoraan talon edessä.
Tilan kuvaus:
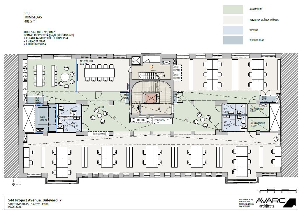
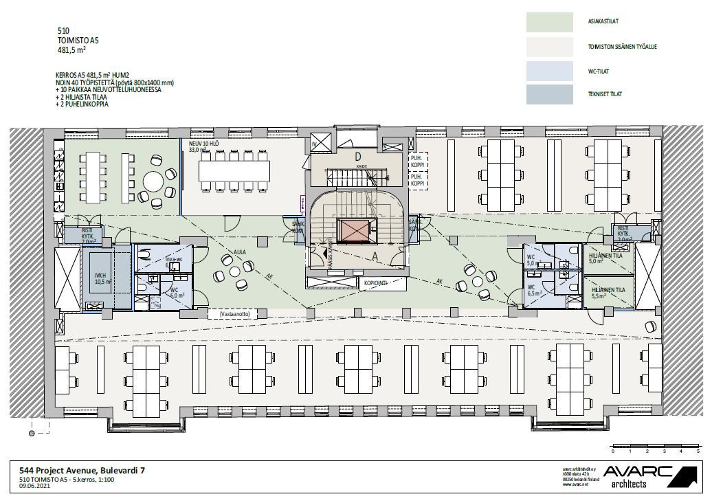
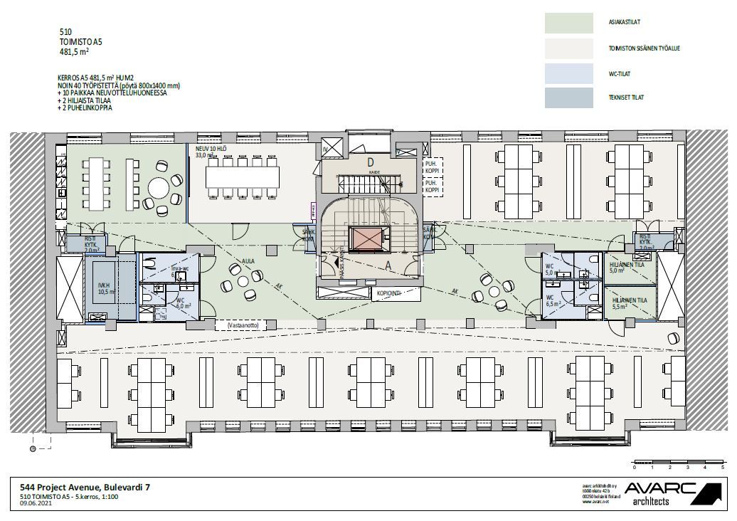
Bulevardin varrelta vuokrattavana tasokkaasti saneerattua toimistotilaa. Viides kerros, josta upeat katunäkymät. Pohjakuvassa oleva koko kerroksen n. 480 m2 tila on jaettavissa 256 m2 ja 228 m2 kokonaisuuksiin.
Kerros: 5
