Vuokrataan toimistotilat - Espoo
Hevosenkenkä 3, Leppävaara, 02600 Espoo #10816875
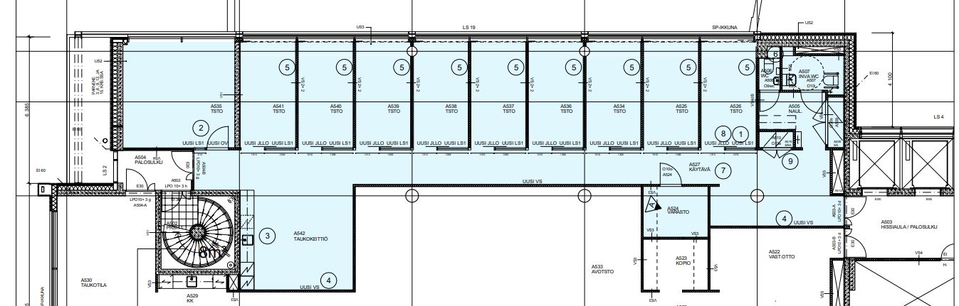
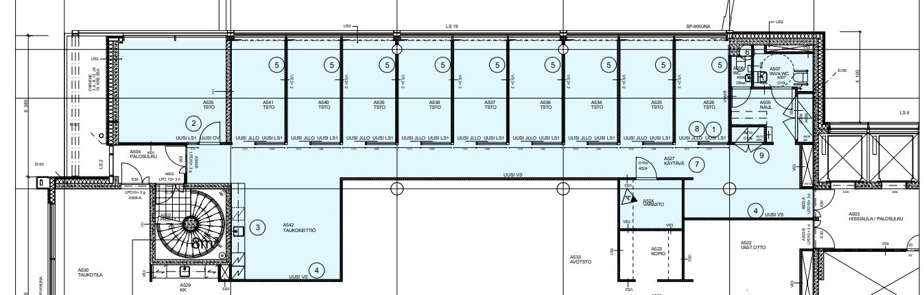
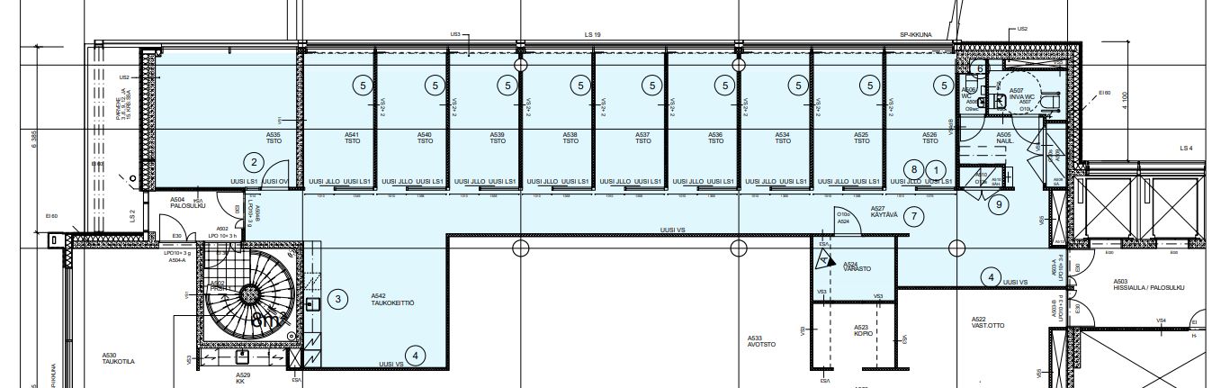
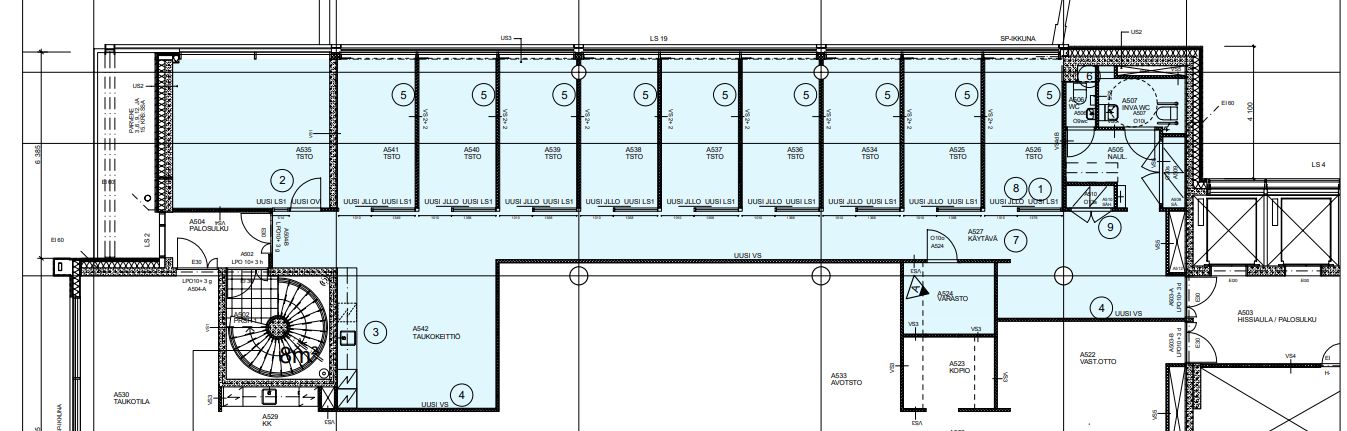
Rakennuksen kuvaus:
Kauppakeskus Sellon ja Leppävaaran aseman vieressä sijaitsee Panorama Tower ? 17-kerroksinen toimistotorni ja alueen maamerkki. Panorama Tower on moderni toimistokohde, jonka torniosan lisäksi kattaa kaksi matalampaa 7-kerroksista rakennusta. Laadukkaat toimistotilat kruunautuvat hienoilla maisemilla ja tilat ovat yksilöitävissä vuokralaiselle. Palveluihin lukeutuu aula, edustussauna catering, postitus sekä kulunvalvonta ja Sellopark tarjoaa parkkitilaa. Yhteydet ovat hyvät juna-aseman ja Kehä 1:n kyljessä.
Tilan kuvaus:
Vapaana modernia toimistotilaa Panorama Towerin 5. kerroksessa aivan Leppävaaran juna-aseman vieressä. Tämä tila koostuu yhdeksästä yhden hengen toimistohuoneesta, neuvottelutilasta ja keittiöstä.
Kerros: 5
