Vuokrataan toimistotilat - Kangasala
Hampuntie 1, 36220 Kangasala #10816760
Osoite
Hampuntie 1, 36220 Kangasala
Tilatyyppi
Toimistotilaa
40 - 612 m2
Tilajako
Jaettavissa
Muuta
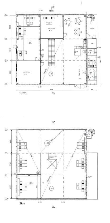
Vuokrataan noin 612 m2 toimitila Kangasalta Kallion alueelta.
Vuonna 2018 rakennettu siisti ja nykyaikainen tilakokonaisuus.
Tilat ovat kahdessa kerroksessa.
1. kerros, noin 355 m2.
Avotilaa, 2 kpl neuvotteluhuoneita, keittiö ja taukotilat sekä 2 kpl wc /suihkutilat.
2. kerros, noin 257 m2.
Avotilaa ja erillinen toimistohuone.
Tiloihin on mahdollista tehdä muutostöitä ja ottaa esim. osa katutasokerroksen tiloista varastokäyttöön. Julkisivuun on mahdollista lisätä nosto-ovia.
Tiloja on mahdollista jakaa ja vuokrata pienemmissä osissa esim. 40 m2, 74 m2 ja 257 m2.
Autopaikkoja vuokrattavissa piha-alueelta.
Lounasravintola lähietäisyydellä.
Kysy lisää ja sovi esittely!
Sami Saraste
Myyntipäällikkö, LKV
sami.saraste@catella.com
050 3014 455
Tilanhakijalle palvelumme ovat maksuttomia.
Catella Property Oy on valtakunnallinen toimitilojen vuokraukseen ja myyntiin keskittynyt kiinteistönvälitysyritys.
Kysy paikallisilta ammattitaitoisilta välittäjiltämme myös muita välityksessämme olevia toimitilakohteita.
Välittäjiemme yhteystiedot ja lisää välitettäviä tilakohteita verkkosivuillamme: www.toimitilat.catella.fi.
Ota yhteyttä!
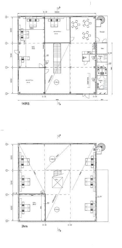
Vuonna 2018 rakennettu siisti ja nykyaikainen tilakokonaisuus.
Tilat ovat kahdessa kerroksessa.
1. kerros, noin 355 m2.
Avotilaa, 2 kpl neuvotteluhuoneita, keittiö ja taukotilat sekä 2 kpl wc /suihkutilat.
2. kerros, noin 257 m2.
Avotilaa ja erillinen toimistohuone.
Tiloihin on mahdollista tehdä muutostöitä ja ottaa esim. osa katutasokerroksen tiloista varastokäyttöön. Julkisivuun on mahdollista lisätä nosto-ovia.
Tiloja on mahdollista jakaa ja vuokrata pienemmissä osissa esim. 40 m2, 74 m2 ja 257 m2.
Autopaikkoja vuokrattavissa piha-alueelta.
Lounasravintola lähietäisyydellä.
Kysy lisää ja sovi esittely!
Sami Saraste
Myyntipäällikkö, LKV
sami.saraste@catella.com
050 3014 455
Tilanhakijalle palvelumme ovat maksuttomia.
Catella Property Oy on valtakunnallinen toimitilojen vuokraukseen ja myyntiin keskittynyt kiinteistönvälitysyritys.
Kysy paikallisilta ammattitaitoisilta välittäjiltämme myös muita välityksessämme olevia toimitilakohteita.
Välittäjiemme yhteystiedot ja lisää välitettäviä tilakohteita verkkosivuillamme: www.toimitilat.catella.fi.
Ota yhteyttä!
Vapautuu
Vapaa
Kerros
1. - 2.
Jaettavissa
Ota yhteyttä
Catella Property Oy
Hämeenkatu 13b A, 33100 Tampere
Näytä puhelinnumero
010 5220 100
Sami Saraste
Näytä puhelinnumero
050 3014 455
Pyydä lisätietoa
