Vuokrataan liiketilat, muut tilat - Helsinki
Salomonkatu 17, Kamppi, 00100 Helsinki #10816750
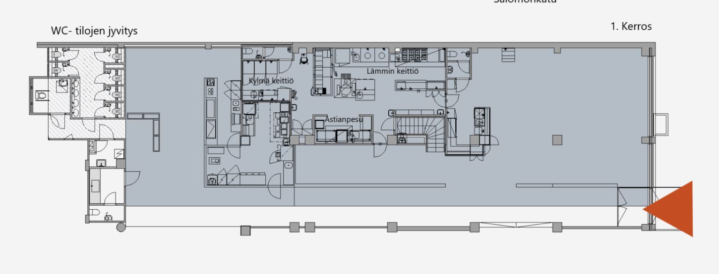
Ravintola tila vapautumassa aivan Helsingin keskustasta.
Osoite
Salomonkatu 17, 00100 Helsinki
Tilatyyppi
Liiketilaa
400 m2
Muuta tilaa
400 m2
Yhteensä
400 m2
Muuta
noin 400m2 ravintola tila vapautumassa.
Katutason liiketila josta isot ikkunat kadulle.
Tilaan on oma sisäänkäynti.
asiakaspaikkoja 120-140 henkilölle.
Sovi esittelystä; Jari Holmberg tai jari.holmberg@fennomen.fi
Katutason liiketila josta isot ikkunat kadulle.
Tilaan on oma sisäänkäynti.
asiakaspaikkoja 120-140 henkilölle.
Sovi esittelystä; Jari Holmberg tai jari.holmberg@fennomen.fi
Vapautuu
Heti
Ota yhteyttä
Pyydä lisätietoa
