Vuokrataan liiketilat - Helsinki
Mannerheimintie 3, Keskusta, 00100 Helsinki #10816726
Nyt vapaana Helsingin parhailta paikoilta liiketilaa!
Osoite
Mannerheimintie 3, 00100 Helsinki
Tilatyyppi
Liiketilaa
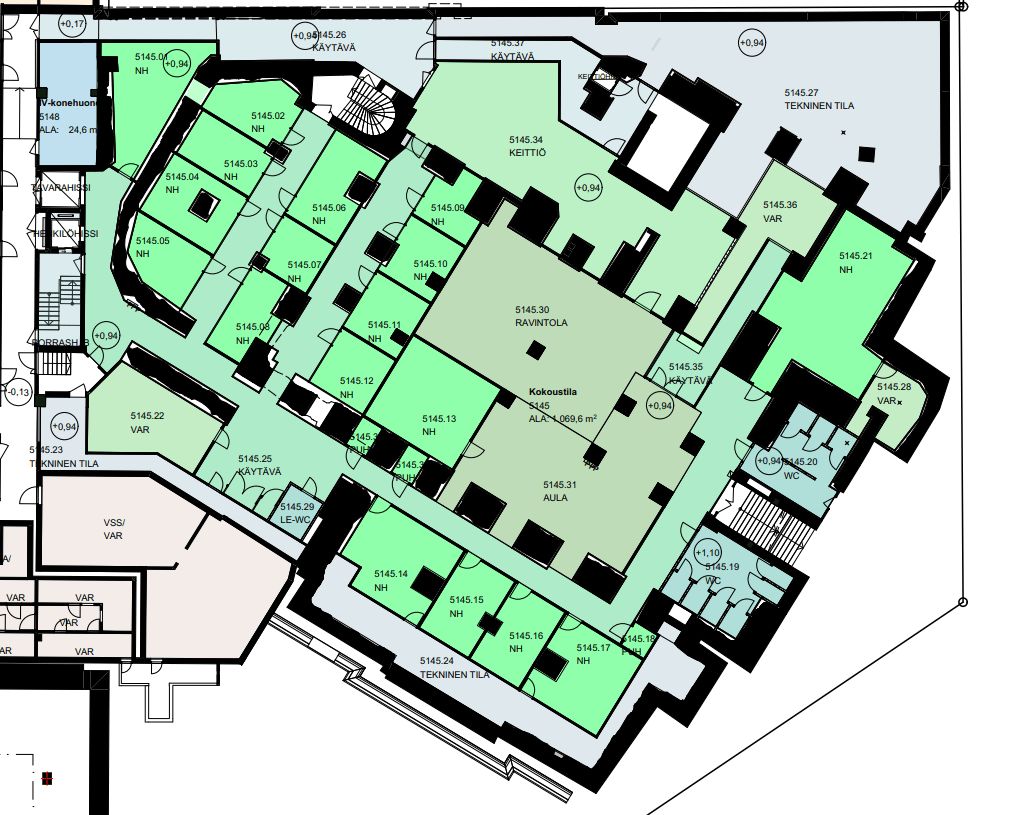
1070 m2
Vuokra
Hintatiedot pyydettäessä!
Kiinteistö
Vuokrattavana 1070 m2 liiketilaa keskellä Kaivopihaa.
Tämä valoisa ja moderni liiketila tarjoaa monipuoliset mahdollisuudet eri toimialoille.
Ota yhteyttä ja sovitaan näyttö!
Tämä valoisa ja moderni liiketila tarjoaa monipuoliset mahdollisuudet eri toimialoille.
Ota yhteyttä ja sovitaan näyttö!
Sijainti
Liiketila sijaitsee Helsingin sydämessä, Kaivopihan vilkkaalla alueella, Mannerheimintien varrella. Kohde tarjoaa erinomaisen näkyvyyden ja tavoitettavuuden niin jalankulkijoille kuin joukkoliikenteen käyttäjille. Alueella liikkuu päivittäin tuhansia asiakkaita, ja ympäristöstä löytyy useita toimistoja, liiketiloja ja palveluita, jotka houkuttelevat asiakasvirtaa.
Vapautuu
Heti
Katutasossa
Näkyvällä paikalla
Ota yhteyttä
Arvo Premises Oy
Joakim Kukkonen
Osakas, Toimitilavälittäjä
Näytä puhelinnumero
040 555 8106
Seppo Pakarinen
Osakas, Kiinteistönvälittäjä. LKV, YKV, AKA
Näytä puhelinnumero
040-703 8000
Pyydä lisätietoa
