Vuokrataan toimistotilat - Helsinki
Kaivokatu 10, Keskusta, 00100 Helsinki #10816722
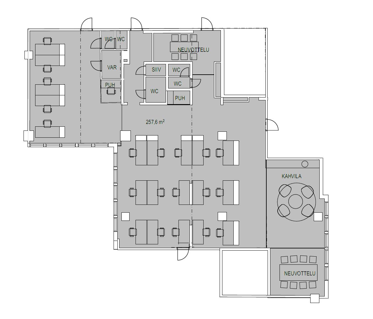
Toimivaa ja siistiä avotoimistotilaa Helsingin ydinkeskustasta.
Osoite
Kaivokatu 10, 00100 Helsinki
Tilatyyppi
Toimistotilaa
257,5 m2
Vuokra
Hintatiedot pyydettäessä!
Vuokraan sisältyy lämpö
Kiinteistö
Kaivokadun Kaivotalon 3. kerroksessa sijaitseva 257,5 m² kokoinen tila tarjoaa modernin ja käytännöllisen ratkaisun yrityksesi tarpeisiin.
Ota yhteyttä ja kysy lisää!
Ota yhteyttä ja kysy lisää!
Sijainti
Kaivotalo sijaitsee keskeisellä paikalla Helsingin keskustassa, aivan rautatieaseman, metroaseman ja kattavien palveluiden äärellä. Tilat soveltuvat erinomaisesti yrityksille, jotka arvostavat saavutettavuutta ja kaupungin sykettä.
Vapautuu
Heti
Näkyvällä paikalla
Ota yhteyttä
Arvo Premises Oy
Joakim Kukkonen
Osakas, Toimitilavälittäjä
Näytä puhelinnumero
040 555 8106
Seppo Pakarinen
Osakas, Kiinteistönvälittäjä. LKV, YKV, AKA
Näytä puhelinnumero
040-703 8000
Pyydä lisätietoa
